8.2

Виртуальный тур

Смотреть все фото
БЕЗ КОМИССИИ ID: 1190760 Рейтинг9.0 КлассА

Москва, улица Правды, 26

Савёловская → 629 м
~ 6 мин
Арендная плата в месяц 2 702 700 ₽ 32 400 ₽/м² в год С учётом НДС

Презентация по предложению

Собираете информацию? Получите подробную презентацию в удобном формате!

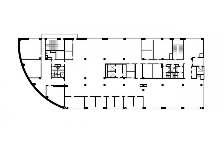
Площадь 1 000 м²
Состояние Под отделку
Планировка Смешанная
Этаж 11

Описание

Преимущества
  • Класс А
  • Пешком от метро
  • Кондиционирование и вентиляция
  • Свой паркинг
  • Несколько провайдеров связи
  • Развитая инфраструктура
Предлагаем в долгосрочную аренду офисный блок класса А площадью 1000 квадратных метров в недавно отреконструированном бизнес-центре "Северное сияние".

Москва, САО, улица Правды, 26

Удобное расположение здания для всех видов транспорта:
- Автомобиль: близость транспортных магистралей, таких как Третье Транспортное Кольцо, Бутырская улица и других.
- Возможность аренды парковочных мест.
- Ближайшее метро: от метро "Савёловская" всего 6 мин пешком

Офис класса А:
- Помещение без отделки
- Вентиляция: Приточно-вытяжная вентиляция
- Кондиционирование: центральное
- Презентабельный центральный рецепшн
- Круглосуточная охрана и видеонаблюдение
- Развитая инфраструктура внутри здания

Возможность заключения контракта в соответствии с 44ФЗ по госзакупкам.

Если предложение предварительно Вам подходит:

1. Мы отправим Вам подробную презентацию с планировкой и фотографиями в течение 10 минут после звонка, чтобы Вы могли поделиться информацией с руководством или с коллегами.
2. Задайте любые вопросы менеджеру по телефону, готовы обсуждать любые предложения по финансовым условиям договора аренды.
3.

Вы можете позвонить нам в любое время. Мы ответим на Ваши вопросы по будням до 19:00, а поздно вечером или в выходные сможем передать Ваш контакт нашему менеджеру.

Коммерческие условия

Арендная плата 2 456 980 ₽
Ставка арендной платы 32 400 ₽ м²/год
Эксплуатационные расходы Включены в ставку
Налоги С учётом НДС
Тип договора Прямая аренда
Срок договора Долгосрочный
Размер платежей 1 месяц
Обеспечительный платеж 3 месяц
Статус Сдан

О бизнес-центре

Класс А
Этажность 15
Лифты Есть
Общая площадь 38 000 м²
Год постройки 1980
Паркинг Подземный
Вентиляция приточно-вытяжная
Кондиционирование центральное
Телекоммуникации Интернет/Телефония

Расположение

Подробная презентацию по предложению

Собираете информацию? Получите подробную презентацию в удобном формате, чтобы обсудить вариант с коллегами или переслать руководству!

Похожие предложения в других зданиях

БЕЗ КОМИССИИ ID: 1324697 Рейтинг7.2 КлассB

Москва, 5-я улица Ямского Поля, 7 к2

Белорусская → 1.07 км
~ 13 мин
Арендная плата в месяц 2 300 049 ₽ 30 100 ₽/м² в год С учётом НДС
Характеристики 918 м² 1 - 3 этаж Готово к въезду
Преимущества
  • Класс B
  • Пешком от метро
  • Кондиционирование и вентиляция
  • Свой паркинг
  • Несколько провайдеров связи
  • Развитая инфраструктура

Предлагаем в долгосрочную аренду офисный блок класса B площадью 918 квадратных метров в историческом недавно отреконструированном бизнес-центре... подробнее

Презентация по предложению

Собираете информацию? Получите подробную презентацию в удобном формате!

БЕЗ КОМИССИИ ID: 1380373 Рейтинг7.4 КлассB+

Москва, 3-я улица Ямского Поля, 32

Белорусская → 1.07 км
~ 11 мин
Арендная плата в месяц 2 777 795 ₽ 33 300 ₽/м² в год С учётом НДС
Характеристики 1 002 м² 3 - 8 этаж Готово к въезду
Преимущества
  • Класс B+
  • Пешком от метро
  • Кондиционирование и вентиляция
  • Свой паркинг

Сдается в долгосрочную аренду офисный блок класса B+ площадью 1002 квадратных метров в бизнес-центре... подробнее

Презентация по предложению

Собираете информацию? Получите подробную презентацию в удобном формате!

БЕЗ КОМИССИИ ID: 1375232 Рейтинг7.6 КлассB

Москва, Вятская улица, 35 с4

Савеловская → 817 м
~ 8 мин
Арендная плата в месяц 3 271 125 ₽ 39 600 ₽/м² в год С учётом НДС
Характеристики 990 м² 2 этаж Готово к въезду
Преимущества
  • Класс B
  • Пешком от метро
  • Кондиционирование и вентиляция
  • Свой паркинг
  • Развитая инфраструктура

Сдается в долгосрочную аренду офисное помещение класса B площадью 990 кв.м в бизнес-центре "Вятка"... подробнее

Презентация по предложению

Собираете информацию? Получите подробную презентацию в удобном формате!

БЕЗ КОМИССИИ ID: 1375231 Рейтинг7.6 КлассB

Москва, Вятская улица, 35 с4

Савеловская → 817 м
~ 8 мин
Арендная плата в месяц 3 142 263 ₽ 39 600 ₽/м² в год С учётом НДС
Характеристики 951 м² 3 этаж Готово к въезду
Преимущества
  • Класс B
  • Пешком от метро
  • Кондиционирование и вентиляция
  • Свой паркинг
  • Развитая инфраструктура

Предлагаем в прямую аренду помещение под офис класса B общей площадью 951 кв. метров в бизнес-центре "Вятка"... подробнее

Презентация по предложению

Собираете информацию? Получите подробную презентацию в удобном формате!

БЕЗ КОМИССИИ ID: 1321540 Рейтинг7.8 КлассB

Москва, Большая Новодмитровская улица, 23 с1

Савеловская → 805 м
~ 8 мин
Арендная плата в месяц 2 333 333 ₽ 28 000 ₽/м² в год С учётом НДС
Характеристики 1 000 м² 2 этаж Готово к въезду
Преимущества
  • Класс B
  • Пешком от метро
  • Кондиционирование и вентиляция
  • Свой паркинг
  • Развитая инфраструктура

Предлагаем в прямую аренду офисное помещение класса B площадью 1000 квадратных метров в историческом недавно отреконструированном бизнес-центре "Стрелецкая слобода"... подробнее

>

Виртуальный тур

Презентация по предложению

Собираете информацию? Получите подробную презентацию в удобном формате!

Посмотреть все похожие предложения
Отнеситесь рационально к процессу поиска нового офиса!

Просто ответьте на 3 вопроса, и наши специалисты сами предложат оптимальные варианты под ваш бюджет

.