Галерея бизнес-центра Art Residence

Контакты

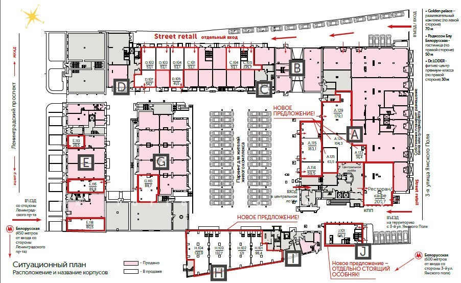
Адрес
Москва, 3-я улица Ямского Поля, 9
Телефон для связи
Получите подробную презентацию

Подробная презентация по офисным помещениям в
бизнес-центре «Art Residence» уже готова!

.