8.2

Виртуальный тур

Виртуальный тур

Виртуальный тур

Смотреть все фото
ВОЗМОЖНО ОСВОБОЖДЕНИЕ ID: 1231313 Рейтинг9.1 КлассА
Бизнес-центр «Атлантик»

Аренда офиса 1571 м²

Москва, улица Можайский Вал, 8

Киевская → 815 м
~ 8 мин
Арендная плата в месяц по запросу потенциального арендатора Срок освобождение в течение 3 месяцев

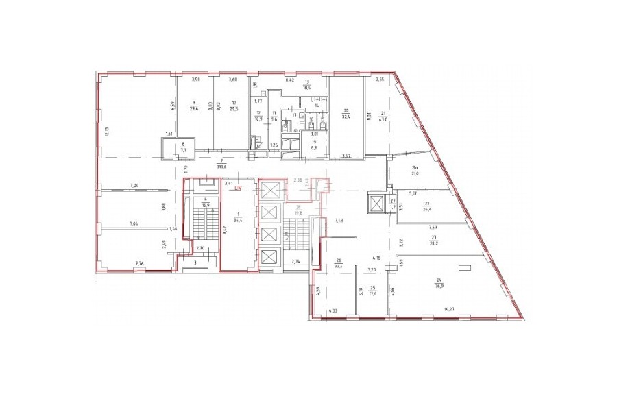
Информация по помещению

Ознакомьтесь с дополнительной информацией по помещению и коммерческим условиям!

Площадь 1 571 м²
Планировка Смешанная
Этаж 4 - 5

Описание

Преимущества
  • Класс А
  • Пешком от метро
  • Кондиционирование и вентиляция
  • Свой паркинг

Коммерческие условия

Арендная плата по запросу
Ставка арендной платы по запросу
Эксплуатационные расходы Включены в ставку
Налоги С учётом НДС
Тип договора Прямая аренда
Срок договора от 11 месяцев
Размер платежей 1 месяц
Обеспечительный платеж 1 месяц
Статус Сдан

О бизнес-центре

Класс А
Этажность 16
Лифты Есть
Общая площадь 13 500 м²
Год постройки 2014
Паркинг Подземный
Вентиляция приточно-вытяжная
Кондиционирование центральное
Телекоммуникации Интернет/Телефония

Расположение

Информация по помещению

Получите дополнительную информацию по помещению и коммерческом условиям!

Похожие предложения в других зданиях

БЕЗ КОМИССИИ ID: 79619 Рейтинг7.9 КлассА

Москва, площадь Киевского Вокзала, 2

Киевская → 107 м
~ 1 мин
Арендная плата в месяц 5 625 000 ₽ 45 000 ₽/м² в год С учётом НДС
Характеристики 1 500 м² 6 этаж Готово к въезду
Преимущества
  • Класс А
  • Пешком от метро
  • Кондиционирование и вентиляция
  • Свой паркинг
  • Развитая инфраструктура

Сдаем в долгосрочную прямую аренду офисный блок класса А общей площадью 1500 квадр. метров в бизнес-центре "Европейский"... подробнее

Презентация по предложению

Собираете информацию? Получите подробную презентацию в удобном формате!

БЕЗ КОМИССИИ ID: 216974 Рейтинг7.6 КлассB+

Москва, Бережковская набережная, 16А

Киевская → 1.03 км
~ 10 мин
Арендная плата в месяц 5 943 333 ₽ 40 000 ₽/м² в год С учётом НДС
Характеристики 1 783 м² 1 - 4 этаж Готово к въезду
Преимущества
  • Класс B+
  • Пешком от метро
  • Кондиционирование и вентиляция
  • Свой паркинг
  • Несколько провайдеров связи

Предлагаем в прямую аренду офисный блок класса B+ общей площадью 1783 квадратных метров в бизнес-центре "Риверсайд Стейшн"... подробнее

Презентация по предложению

Собираете информацию? Получите подробную презентацию в удобном формате!

БЕЗ КОМИССИИ ID: 210419 Рейтинг7.6 КлассB+

Москва, Бережковская набережная, 16А

Киевская → 1.03 км
~ 10 мин
Арендная плата в месяц 5 120 000 ₽ 40 000 ₽/м² в год С учётом НДС
Характеристики 1 536 м² 1 - 4 этаж Готово к въезду
Преимущества
  • Класс B+
  • Пешком от метро
  • Кондиционирование и вентиляция
  • Свой паркинг
  • Несколько провайдеров связи

Предлагается в прямую аренду офисный блок класса B+ общей площадью 1536 квадратных метров в бизнес-центре "Риверсайд Стейшн"... подробнее

Презентация по предложению

Собираете информацию? Получите подробную презентацию в удобном формате!

БЕЗ КОМИССИИ ID: 971122 Рейтинг7.6 КлассB+

Москва, Бережковская набережная, 16А

Киевская → 1.03 км
~ 10 мин
Арендная плата в месяц 4 583 333 ₽ 40 000 ₽/м² в год С учётом НДС
Характеристики 1 375 м² 1 - 3 этаж Готово к въезду
Преимущества
  • Класс B+
  • Пешком от метро
  • Кондиционирование и вентиляция
  • Свой паркинг
  • Несколько провайдеров связи

Предлагается в прямую аренду офисное помещение класса B+ общей площадью 1375 квадр. метров в бизнес-центре "Риверсайд Стейшн"... подробнее

Презентация по предложению

Собираете информацию? Получите подробную презентацию в удобном формате!

ВОЗМОЖНО ОСВОБОЖДЕНИЕ ID: 1286267 Рейтинг8.2 КлассА

Москва, Саввинская набережная, 11

Киевская → 1 км
~ 10 мин
Арендная плата в месяц 5 421 345 ₽ 44 300 ₽/м² в год С учётом НДС
Характеристики 1 469 м² 6 - 7 этаж Готово к въезду
Преимущества
  • Класс А
  • Пешком от метро
  • Кондиционирование и вентиляция
  • Свой паркинг

Предлагаем в долгосрочную аренду помещение под офис класса А общей площадью 1469 квадратных метров в бизнес-центре "Дом на Саввинской"... подробнее

Презентация по предложению

Собираете информацию? Получите подробную презентацию в удобном формате!

Посмотреть все похожие предложения
Отнеситесь рационально к процессу поиска нового офиса!

Просто ответьте на 3 вопроса, и наши специалисты сами предложат оптимальные варианты под ваш бюджет

.