8.2

Виртуальный тур

Смотреть все фото
БЕЗ КОМИССИИ ID: 1300080 Рейтинг8.3 КлассB+
Бизнес-центр «Авион»

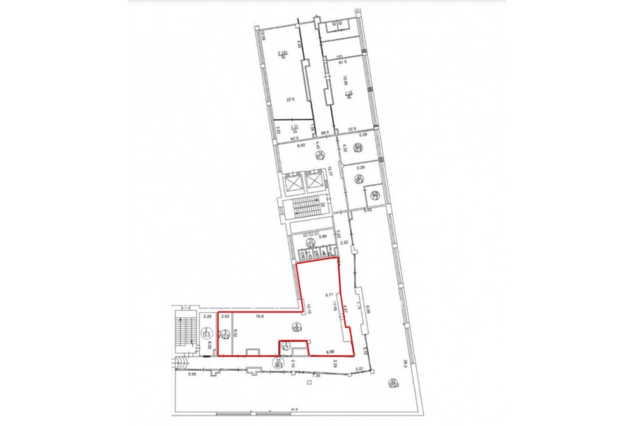
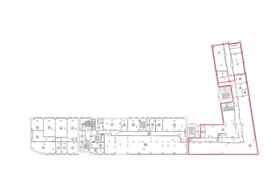
Аренда офиса 254 м²

Москва, Ленинградский проспект, 47 с2

Аэропорт → 321 м
~ 3 мин
Арендная плата в месяц 814 900 ₽ 38 500 ₽/м² в год С учётом НДС

Презентация по предложению

Собираете информацию? Получите подробную презентацию в удобном формате!

Площадь 254 м²
Состояние Готово к въезду
Планировка Смешанная
Этаж 5

Описание

Преимущества
  • Класс B+
  • Пешком от метро
  • Кондиционирование и вентиляция
  • Свой паркинг
  • Развитая инфраструктура
Предлагаем в прямую аренду помещение под офис класса B+ площадью 254 квадр. метров в бизнес-центре "Авион".

Москва, САО, Ленинградский проспект, 47 с2

Удобное расположение здания для всех видов транспорта:
- Автомобиль: близость транспортных магистралей, таких как Волоколамское шоссе, Ленинградское шоссе, Ленинградский проспект и других.
- Возможность аренды парковочных мест.
- Ближайшее метро: от метро "Аэропорт" всего 3 мин пешком

Офис класса B+:
- Помещение готово к въезду
- Вентиляция: Приточно-вытяжная вентиляция
- Кондиционирование: центральное
- Презентабельный центральный ресепшн
- Круглосуточная охрана и видеонаблюдение
- Развитая инфраструктура внутри здания


Если данное предложение подходит Вашему запросу:

1. Мы отправим Вам подробную презентацию с планировкой и фотографиями в течение 10 минут после звонка, чтобы Вы могли поделиться информацией с руководством или с коллегами.
2. Ответим на любые Ваши вопросы, готовы обсуждать любые предложения по коммерческим условиям аренды помещения.
3.

Звоните нам в любое время. По будням мы сможем ответить на Ваши вопросы до 19:00. В выходные или вечернее время мы передадим Ваш контакт нашему менеджеру по аренде.

Коммерческие условия

Арендная плата 740 830 ₽
Ставка арендной платы 38 500 ₽ м²/год
Эксплуатационные расходы Включены в ставку
Налоги С учётом НДС
Тип договора Прямая аренда
Срок договора от 11 месяцев
Размер платежей 1 месяц
Обеспечительный платеж 2 месяц
Статус Сдан

О бизнес-центре

Класс B+
Этажность 8
Лифты Есть
Общая площадь 19 000 м²
Год постройки 2005
Паркинг Наземный
Вентиляция приточно-вытяжная
Кондиционирование центральное
Телекоммуникации Интернет/Телефония

Расположение

Подробная презентацию по предложению

Собираете информацию? Получите подробную презентацию в удобном формате, чтобы обсудить вариант с коллегами или переслать руководству!

Похожие предложения в других зданиях

БЕЗ КОМИССИИ ID: 274074 Рейтинг8.9 КлассА

Москва, улица Викторенко, 5 с1

Аэропорт → 204 м
~ 2 мин
Арендная плата в месяц 762 500 ₽ 36 600 ₽/м² в год С учётом НДС
Характеристики 250 м² 19 этаж Готово к въезду
Преимущества
  • Класс А
  • Пешком от метро
  • Кондиционирование и вентиляция
  • Свой паркинг
  • Несколько провайдеров связи
  • Развитая инфраструктура

Сдается в долгосрочную прямую аренду помещение под офис класса А общей площадью 250 квадр. метров в бизнес-центре "Виктори Плаза"... подробнее

>

Виртуальный тур

Презентация по предложению

Собираете информацию? Получите подробную презентацию в удобном формате!

БЕЗ КОМИССИИ ID: 1246814 Рейтинг8.2 КлассB

Москва, Ленинградский проспект, 39 с14

Аэропорт → 579 м
~ 6 мин
Арендная плата в месяц 754 600 ₽ 37 000 ₽/м² в год С учётом НДС
Характеристики 245 м² 2 этаж Готово к въезду
Преимущества
  • Класс B
  • Пешком от метро
  • Кондиционирование и вентиляция
  • Свой паркинг
  • Развитая инфраструктура

Предлагаем в долгосрочную аренду офис класса B общей площадью 245 кв. метров в бизнес-центре... подробнее

Презентация по предложению

Собираете информацию? Получите подробную презентацию в удобном формате!

БЕЗ КОМИССИИ ID: 1326572 Рейтинг8.9 КлассА

Москва, улица Викторенко, 9 с1

Аэропорт → 711 м
~ 9 мин
Арендная плата в месяц 750 000 ₽ 40 000 ₽/м² в год Упрощённая система налогообложения
Характеристики 225 м² 1 этаж Готово к въезду
Преимущества
  • Класс А
  • Пешком от метро
  • Новое строительство
  • Кондиционирование и вентиляция
  • Свой паркинг

Предлагаем в прямую аренду офисный блок класса А общей площадью 225 квадр. метров в бизнес-центре "Прайм Тайм"... подробнее

Презентация по предложению

Собираете информацию? Получите подробную презентацию в удобном формате!

БЕЗ КОМИССИИ ID: 464538 Рейтинг8.3 КлассА

Москва, улица Авиаконструктора Микояна, 12

ЦСКА → 1.15 км
~ 11 мин
Арендная плата в месяц 957 000 ₽ 39 600 ₽/м² в год С учётом НДС
Характеристики 290 м² 1 - 2 этаж Готово к въезду
Преимущества
  • Класс А
  • Пешком от метро
  • Кондиционирование и вентиляция
  • Свой паркинг
  • Несколько провайдеров связи
  • Развитая инфраструктура

Предлагается в долгосрочную прямую аренду офисный блок класса А общей площадью 290 квадратных метров в бизнес-центре "Линкор"... подробнее

>

Виртуальный тур

Презентация по предложению

Собираете информацию? Получите подробную презентацию в удобном формате!

БЕЗ КОМИССИИ ID: 1282926 Рейтинг6.5 КлассB

Москва, Ленинградский проспект, 37 к3

Динамо → 996 м
~ 10 мин
Арендная плата в месяц 761 903 ₽ 32 700 ₽/м² в год С учётом НДС
Характеристики 280 м² 2 - 10 этаж Готово к въезду
Преимущества
  • Класс B
  • Пешком от метро
  • Кондиционирование и вентиляция

Сдается в прямую аренду офисный блок класса B общей площадью 280 кв. метров в бизнес-центре "Авиатор"... подробнее

Презентация по предложению

Собираете информацию? Получите подробную презентацию в удобном формате!

Посмотреть все похожие предложения
Отнеситесь рационально к процессу поиска нового офиса!

Просто ответьте на 3 вопроса, и наши специалисты сами предложат оптимальные варианты под ваш бюджет

.