8.2

Виртуальный тур

Смотреть все фото
БЕЗ КОМИССИИ ID: 464538 Рейтинг8.3 КлассА
Бизнес-центр «Линкор»

Аренда офиса 290 м²

Москва, улица Авиаконструктора Микояна, 12

ЦСКА → 1.15 км
~ 11 мин
Арендная плата в месяц 957 000 ₽ 39 600 ₽/м² в год С учётом НДС

Презентация по предложению

Собираете информацию? Получите подробную презентацию в удобном формате!

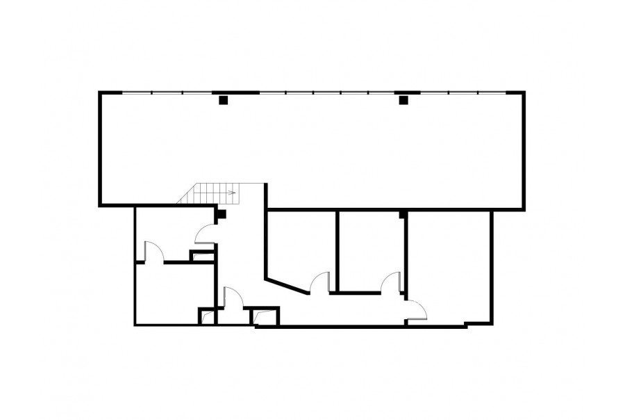
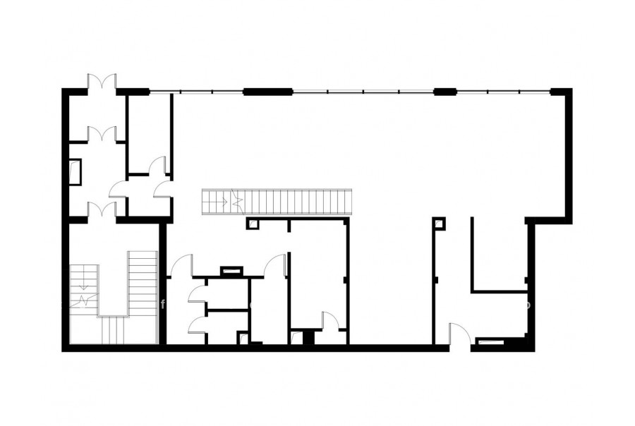
Площадь 290 м²
Состояние Готово к въезду
Планировка Кабинетная
Этаж 1 - 2

Описание

Преимущества
  • Класс А
  • Пешком от метро
  • Кондиционирование и вентиляция
  • Свой паркинг
  • Несколько провайдеров связи
  • Развитая инфраструктура
Предлагается в долгосрочную прямую аренду офисный блок класса А общей площадью 290 квадратных метров в бизнес-центре "Линкор".

Москва, САО, улица Авиаконструктора Микояна, 12

Удобная локация здания:
- Автомобиль: близость транспортных магистралей, таких как Ленинградский проспект, Ленинградское шоссе и других.
- Возможность аренды парковочных мест.
- Ближайшее метро: от метро "ЦСКА" всего 11 мин пешком

Офис класса А:
- Помещение готово к въезду
- Вентиляция: Приточно-вытяжная вентиляция
- Кондиционирование: центральное
- Презентабельный центральный ресепшн
- Круглосуточная охрана и видеонаблюдение
- Развитая инфраструктура внутри здания


Если данное предложение подходит Вашему запросу:

1. Мы подготовили презентацию с информацией о помещении, фотографиями и планировкой, чтобы Вы могли поделиться ей с коллегами или руководством. Попросите об этом нашего менеджера по телефону в объявлении.
2. Ответим на любые Ваши вопросы, готовы обсуждать любые предложения по коммерческим условиям аренды помещения.
3.

Звоните нам в любое время. По будням мы сможем ответить на Ваши вопросы до 19:00. В выходные или вечернее время мы передадим Ваш контакт нашему менеджеру по аренде.

Коммерческие условия

Арендная плата 500 010 ₽
Ставка арендной платы 39 600 ₽ м²/год
Эксплуатационные расходы Включены в ставку
Налоги С учётом НДС
Тип договора Прямая аренда
Срок договора от 11 месяцев
Размер платежей 1 месяц
Обеспечительный платеж 1 месяц
Статус Сдан

О бизнес-центре

Класс А
Этажность 15
Лифты Есть
Общая площадь 63 000 м²
Год постройки 2010
Паркинг Подземный
Вентиляция приточно-вытяжная
Кондиционирование центральное
Телекоммуникации Интернет/Телефония

Расположение

Подробная презентацию по предложению

Собираете информацию? Получите подробную презентацию в удобном формате, чтобы обсудить вариант с коллегами или переслать руководству!

Похожие предложения в других зданиях

БЕЗ КОМИССИИ ID: 1266465 Рейтинг8.9 КлассА

Москва, улица Викторенко, 9 с1

Аэропорт → 711 м
~ 9 мин
Арендная плата в месяц 1 190 255 ₽ 44 200 ₽/м² в год С учётом НДС
Характеристики 323 м² 23 этаж Готово к въезду
Преимущества
  • Класс А
  • Пешком от метро
  • Новое строительство
  • Кондиционирование и вентиляция
  • Свой паркинг

Сдается в долгосрочную аренду офис класса А площадью 323 квадратных метров в современном бизнес-центре "Прайм Тайм"... подробнее

Презентация по предложению

Собираете информацию? Получите подробную презентацию в удобном формате!

БЕЗ КОМИССИИ ID: 274074 Рейтинг8.9 КлассА

Москва, улица Викторенко, 5 с1

Аэропорт → 204 м
~ 2 мин
Арендная плата в месяц 762 500 ₽ 36 600 ₽/м² в год С учётом НДС
Характеристики 250 м² 19 этаж Готово к въезду
Преимущества
  • Класс А
  • Пешком от метро
  • Кондиционирование и вентиляция
  • Свой паркинг
  • Несколько провайдеров связи
  • Развитая инфраструктура

Сдается в долгосрочную прямую аренду помещение под офис класса А общей площадью 250 квадр. метров в бизнес-центре "Виктори Плаза"... подробнее

>

Виртуальный тур

Презентация по предложению

Собираете информацию? Получите подробную презентацию в удобном формате!

БЕЗ КОМИССИИ ID: 1319732 Рейтинг8.3 КлассB+

Москва, Ленинградский проспект, 47 с2

Аэропорт → 321 м
~ 3 мин
Арендная плата в месяц 966 667 ₽ 40 000 ₽/м² в год С учётом НДС
Характеристики 290 м² 4 этаж Готово к въезду
Преимущества
  • Класс B+
  • Пешком от метро
  • Кондиционирование и вентиляция
  • Свой паркинг
  • Развитая инфраструктура

Предлагаем в прямую аренду офисный блок класса B+ площадью 290 кв. метров в бизнес-центре "Авион"... подробнее

>

Виртуальный тур

Презентация по предложению

Собираете информацию? Получите подробную презентацию в удобном формате!

БЕЗ КОМИССИИ ID: 1300080 Рейтинг8.3 КлассB+

Москва, Ленинградский проспект, 47 с2

Аэропорт → 321 м
~ 3 мин
Арендная плата в месяц 814 917 ₽ 38 500 ₽/м² в год С учётом НДС
Характеристики 254 м² 5 этаж Готово к въезду
Преимущества
  • Класс B+
  • Пешком от метро
  • Кондиционирование и вентиляция
  • Свой паркинг
  • Развитая инфраструктура

Предлагаем в прямую аренду помещение под офис класса B+ площадью 254 квадр. метров в бизнес-центре "Авион"... подробнее

>

Виртуальный тур

Презентация по предложению

Собираете информацию? Получите подробную презентацию в удобном формате!

БЕЗ КОМИССИИ ID: 1375135 Рейтинг8.5 КлассА

Москва, Чапаевский переулок, 3

Аэропорт → 796 м
~ 8 мин
Арендная плата в месяц 1 100 000 ₽ 44 000 ₽/м² в год С учётом НДС
Характеристики 300 м² 7 этаж Готово к въезду
Преимущества
  • Класс А
  • Пешком от метро
  • Кондиционирование и вентиляция
  • Свой паркинг
  • Несколько провайдеров связи
  • Развитая инфраструктура

Сдается в аренду офис класса А общей площадью 300 кв. метров в жилом комплексе "Триумф-Палас"... подробнее

Презентация по предложению

Собираете информацию? Получите подробную презентацию в удобном формате!

Посмотреть все похожие предложения
Отнеситесь рационально к процессу поиска нового офиса!

Просто ответьте на 3 вопроса, и наши специалисты сами предложат оптимальные варианты под ваш бюджет

.