8.2

Виртуальный тур

Смотреть все фото
БЕЗ КОМИССИИ ID: 1054547 Рейтинг6.1 КлассB
Бизнес-центр «Бауманская 11»

Аренда офиса 444 м²

Москва, Бауманская улица, 11

Бауманская → 506 м
~ 5 мин
Арендная плата в месяц 1 565 100 ₽ 42 300 ₽/м² в год С учётом НДС

Презентация по предложению

Собираете информацию? Получите подробную презентацию в удобном формате!

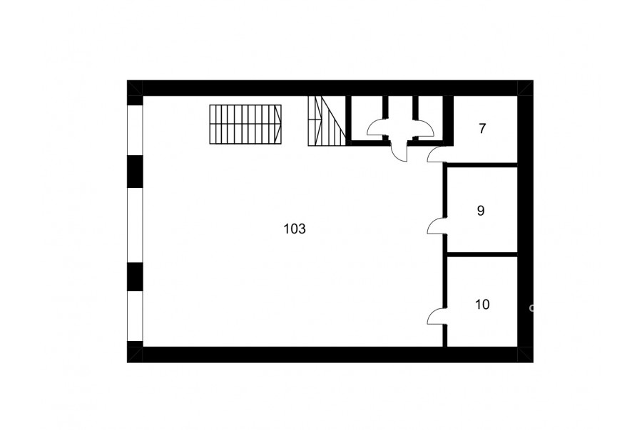
Площадь 444 м²
Состояние Готово к въезду
Планировка Смешанная
Этаж 1 - 3

Описание

Преимущества
  • Класс B
  • Пешком от метро
  • Кондиционирование и вентиляция
  • Свой паркинг
  • Несколько провайдеров связи
  • Развитая инфраструктура
Предлагается в долгосрочную прямую аренду помещение под офис класса B общей площадью 444 квадратных метров в бизнес-центре.

Москва, ЦАО, Бауманская улица, 11

Удобное расположение здания для всех видов транспорта:
- Автомобиль: близость транспортных магистралей, таких как Третье Транспортное Кольцо, Русаковская улица и других.
- Возможность аренды парковочных мест.
- Ближайшее метро: от метро "Бауманская" всего 5 мин пешком

Офис класса B:
- Помещение с отделкой, готово к въезду
- Развитая инфраструктура внутри здания


Что еще можно узнать о предложении:

1. Мы подготовили презентацию с информацией о помещении, фотографиями и планировкой, чтобы Вы могли поделиться ей с коллегами или руководством. Попросите об этом нашего менеджера по телефону в объявлении.
2. Мы готовы ответить на любые Ваши вопросы о помещении и коммерческих условиях аренды.
3.

Вы можете позвонить нам в любое время. Мы ответим на Ваши вопросы по будням до 19:00, а поздно вечером или в выходные сможем передать Ваш контакт нашему менеджеру.

Коммерческие условия

Арендная плата 851 000 ₽
Ставка арендной платы 42 300 ₽ м²/год
Эксплуатационные расходы Включены в ставку
Налоги С учётом НДС
Тип договора Прямая аренда
Срок договора от 11 месяцев
Размер платежей 1 месяц
Обеспечительный платеж 1 месяц
Статус Сдан

О бизнес-центре

Класс B
Этажность 3
Лифты Нет
Общая площадь 4 400 м²
Год постройки 2011
Паркинг Наземный
Вентиляция естественная
Кондиционирование отсутствует
Телекоммуникации Интернет/Телефония

Расположение

Подробная презентацию по предложению

Собираете информацию? Получите подробную презентацию в удобном формате, чтобы обсудить вариант с коллегами или переслать руководству!

Похожие предложения в других зданиях

БЕЗ КОМИССИИ ID: 1378588 Рейтинг8.3 КлассА

Москва, Нижняя Красносельская улица, 39 с1

Бауманская → 425 м
~ 4 мин
Арендная плата в месяц 1 579 333 ₽ 46 000 ₽/м² в год С учётом НДС
Характеристики 412 м² 2 этаж Готово к въезду
Преимущества
  • Класс А
  • Пешком от метро
  • Кондиционирование и вентиляция
  • Свой паркинг
  • Развитая инфраструктура

Предлагается в долгосрочную аренду помещение под офис класса А общей площадью 412 квадр. метров в бизнес-центре "PALLAU-NK"... подробнее

Презентация по предложению

Собираете информацию? Получите подробную презентацию в удобном формате!

БЕЗ КОМИССИИ ID: 303800 Рейтинг7.9 КлассB+

Москва, набережная Академика Туполева, 15 к2

Бауманская → 1.26 км
~ 13 мин
Арендная плата в месяц 1 390 800 ₽ 36 600 ₽/м² в год С учётом НДС
Характеристики 456 м² 1 этаж Готово к въезду
Преимущества
  • Класс B+
  • Пешком от метро
  • Кондиционирование и вентиляция
  • Свой паркинг
  • Развитая инфраструктура

Сдается в долгосрочную аренду офисный блок класса B+ площадью 456 квадратных метров в бизнес-центре "Туполев Плаза"... подробнее

>

Виртуальный тур

Презентация по предложению

Собираете информацию? Получите подробную презентацию в удобном формате!

БЕЗ КОМИССИИ ID: 742575 Рейтинг8.4 КлассB+

Москва, Каланчёвская улица, 13

Красные Ворота → 232 м
~ 2 мин
Арендная плата в месяц 1 227 792 ₽ 37 300 ₽/м² в год С учётом НДС
Характеристики 395 м² 5 этаж Готово к въезду
Преимущества
  • Класс B+
  • Пешком от метро
  • Кондиционирование и вентиляция
  • Развитая инфраструктура

Предлагается в долгосрочную прямую аренду офисное помещение класса B+ площадью 395 кв. метров в бизнес-центре... подробнее

>

Виртуальный тур

Презентация по предложению

Собираете информацию? Получите подробную презентацию в удобном формате!

БЕЗ КОМИССИИ ID: 1295575 Рейтинг9.0 КлассB

Москва, Садовая-Черногрязская улица, 10

Красные Ворота → 358 м
~ 4 мин
Арендная плата в месяц 1 470 003 ₽ 40 100 ₽/м² в год С учётом НДС
Характеристики 440 м² 1 - 2 этаж Под отделку
Преимущества
  • Класс B
  • Пешком от метро
  • Кондиционирование и вентиляция
  • Свой паркинг
  • Развитая инфраструктура

Предлагаем в долгосрочную прямую аренду офисный блок класса B общей площадью 440 кв. метров в недавно отреконструированном бизнес-центре... подробнее

Презентация по предложению

Собираете информацию? Получите подробную презентацию в удобном формате!

БЕЗ КОМИССИИ ID: 1298002 Рейтинг9.2 КлассА

Москва, Садовая-Спасская улица, 28

Красные Ворота → 101 м
~ 1 мин
Арендная плата в месяц 1 783 688 ₽ 47 200 ₽/м² в год С учётом НДС
Характеристики 453 м² 2 этаж Готово к въезду
Преимущества
  • Класс А
  • Пешком от метро
  • Кондиционирование и вентиляция
  • Свой паркинг

Предлагается в долгосрочную прямую аренду офис класса А общей площадью 453 квадратных метров в бизнес-центре... подробнее

>

Виртуальный тур

Презентация по предложению

Собираете информацию? Получите подробную презентацию в удобном формате!

Посмотреть все похожие предложения
Отнеситесь рационально к процессу поиска нового офиса!

Просто ответьте на 3 вопроса, и наши специалисты сами предложат оптимальные варианты под ваш бюджет

.