8.2
Смотреть все фото
ВОЗМОЖНО ОСВОБОЖДЕНИЕ ID: 924612 Рейтинг8.1 КлассА

Москва, Садовая-Кудринская улица, 32 с1

Маяковская → 581 м
~ 6 мин
Арендная плата в месяц по запросу потенциального арендатора Срок освобождение в течение 3 месяцев

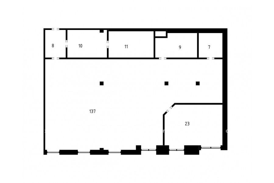
Информация по помещению

Ознакомьтесь с дополнительной информацией по помещению и коммерческим условиям!

Площадь 774 м²
Планировка Смешанная
Этаж 4 - 5

Описание

Преимущества
  • Класс А
  • Пешком от метро
  • Кондиционирование и вентиляция
  • Свой паркинг
  • Развитая инфраструктура

Коммерческие условия

Арендная плата по запросу
Ставка арендной платы по запросу
Эксплуатационные расходы Включены в ставку
Налоги С учётом НДС
Тип договора Прямая аренда
Срок договора от 11 месяцев
Размер платежей 1 месяц
Обеспечительный платеж 2 месяц
Статус Сдан

О бизнес-центре

Класс А
Этажность 7
Лифты Есть
Общая площадь 6 863 м²
Год постройки 2005
Паркинг Подземный
Вентиляция приточно-вытяжная
Кондиционирование центральное
Телекоммуникации Интернет/Телефония

Расположение

Информация по помещению

Получите дополнительную информацию по помещению и коммерческом условиям!

Похожие предложения в других зданиях

БЕЗ КОМИССИИ ID: 1302502 Рейтинг5.8 КлассB

Москва, Большая Садовая улица, 4 с1

Маяковская → 540 м
~ 5 мин
Арендная плата в месяц 3 000 004 ₽ 42 400 ₽/м² в год С учётом НДС
Характеристики 850 м² -1 - 2 этаж Готово к въезду
Преимущества
  • Класс B
  • Пешком от метро
  • Свой паркинг

Предлагается в долгосрочную аренду офисное помещение класса B общей площадью 850 квадратных метров в историческом бизнес-центре... подробнее

Презентация по предложению

Собираете информацию? Получите подробную презентацию в удобном формате!

БЕЗ КОМИССИИ ID: 162704 Рейтинг9.2 КлассА

Москва, улица Гашека, 6

Маяковская → 645 м
~ 6 мин
Арендная плата в месяц 2 467 500 ₽ 42 000 ₽/м² в год С учётом НДС
Характеристики 705 м² 8 этаж Готово к въезду
Преимущества
  • Класс А
  • Пешком от метро
  • Кондиционирование и вентиляция
  • Свой паркинг
  • Несколько провайдеров связи
  • Развитая инфраструктура

Сдаем в прямую аренду офис класса А площадью 705 квадр. метров в бизнес-центре "Дукат Плейс III"... подробнее

Презентация по предложению

Собираете информацию? Получите подробную презентацию в удобном формате!

БЕЗ КОМИССИИ ID: 1296415 Рейтинг8.8 КлассА

Москва, Гранатный переулок, 12

Баррикадная → 757 м
~ 8 мин
Арендная плата в месяц 2 833 333 ₽ 50 000 ₽/м² в год С учётом НДС
Характеристики 680 м² 3 этаж Готово к въезду
Преимущества
  • Класс А
  • Пешком от метро
  • Кондиционирование и вентиляция
  • Свой паркинг

Предлагается в прямую аренду офисный блок класса А общей площадью 680 квадратных метров в недавно отреконструированном бизнес-центре... подробнее

>

Виртуальный тур

Презентация по предложению

Собираете информацию? Получите подробную презентацию в удобном формате!

БЕЗ КОМИССИИ ID: 1209264 Рейтинг9.0 КлассА

Москва, 1-я Брестская улица, 29

Маяковская → 394 м
~ 4 мин
Арендная плата в месяц 2 553 833 ₽ 38 500 ₽/м² в год С учётом НДС
Характеристики 796 м² 4 этаж Готово к въезду
Преимущества
  • Класс А
  • Пешком от метро
  • Кондиционирование и вентиляция
  • Свой паркинг
  • Несколько провайдеров связи

Сдается в прямую аренду офис класса А площадью 796 кв.м в бизнес-центре "Капитал Тауэр"... подробнее

>

Виртуальный тур

Презентация по предложению

Собираете информацию? Получите подробную презентацию в удобном формате!

БЕЗ КОМИССИИ ID: 1316851 Рейтинг8.2 КлассB

Москва, Дегтярный переулок, 5 с2

Маяковская → 362 м
~ 5 мин
Арендная плата в месяц 3 149 995 ₽ 51 100 ₽/м² в год С учётом НДС
Характеристики 740 м² 1 - 4 этаж Готово к въезду
Преимущества
  • Класс B
  • Пешком от метро
  • Кондиционирование и вентиляция
  • Свой паркинг

Предлагаем в долгосрочную прямую аренду офисный блок класса B площадью 740 квадратных метров в бизнес-центре... подробнее

>

Виртуальный тур

Презентация по предложению

Собираете информацию? Получите подробную презентацию в удобном формате!

Посмотреть все похожие предложения
Отнеситесь рационально к процессу поиска нового офиса!

Просто ответьте на 3 вопроса, и наши специалисты сами предложат оптимальные варианты под ваш бюджет

.