8.2
Смотреть все фото
БЕЗ КОМИССИИ ID: 1181183 Рейтинг7.3 КлассB
Бизнес-центр «Дербеневская 6»

Аренда офиса 1423 м²

Москва, Дербеневская улица, 6

Павелецкая → 1.2 км
~ 12 мин
Арендная плата в месяц 3 000 200 ₽ 25 300 ₽/м² в год С учётом НДС

Презентация по предложению

Собираете информацию? Получите подробную презентацию в удобном формате!

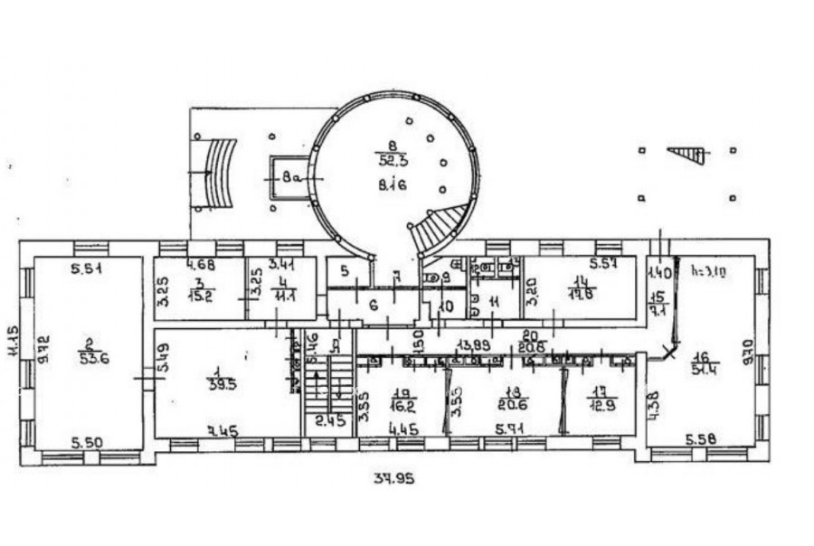
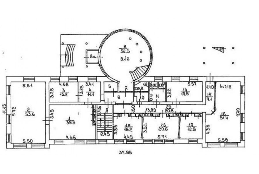
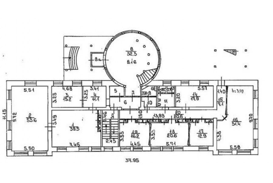
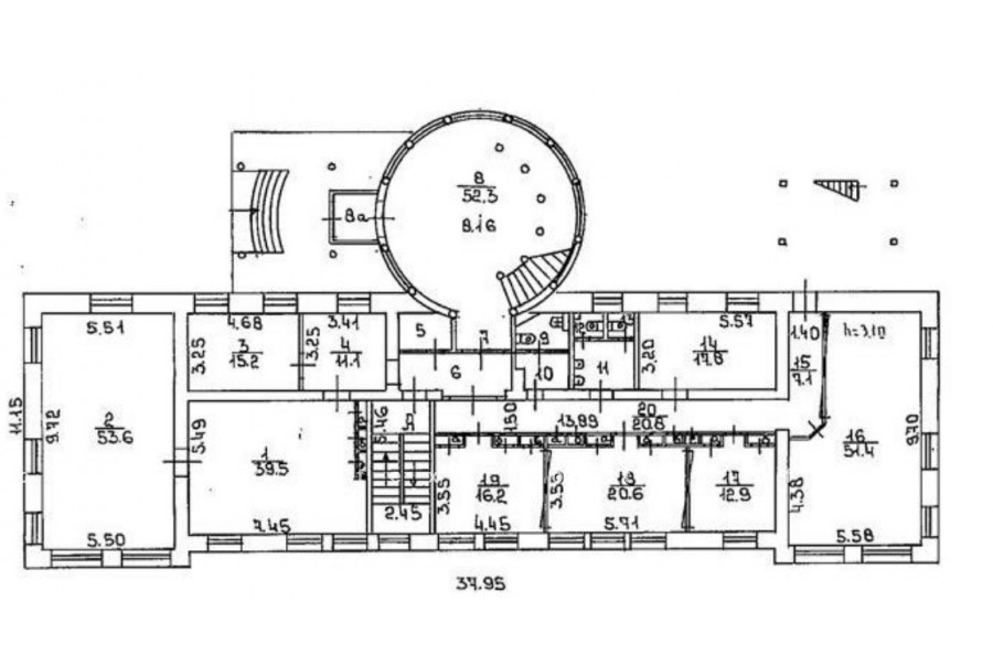
Площадь 1 423 м²
Состояние Готово к въезду
Планировка Кабинетная
Этаж -1 - 3

Описание

Преимущества
  • Класс B
  • Пешком от метро
  • Кондиционирование и вентиляция
  • Свой паркинг
Предлагается в прямую аренду офис класса B площадью 1423 кв.м в историческом бизнес-центре "Дербеневская 6".

Москва, ЮАО, Дербеневская улица, 6

Удобная локация здания:
- Автомобиль: близость транспортных магистралей, таких как Садовое Кольцо и других.
- Возможность аренды парковочных мест.
- Ближайшее метро: от метро "Пролетарская" всего 17 мин пешком

Офис класса B:
- Офис с отделкой, полностью готов к аренде
- Вентиляция: Приточно-вытяжная вентиляция
- Кондиционирование: сплит-системы


Если данное предложение подходит Вашему запросу:

1. Мы отправим Вам подробную презентацию с планировкой и фотографиями в течение 10 минут после звонка, чтобы Вы могли поделиться информацией с руководством или с коллегами.
2. Задайте любые вопросы менеджеру по телефону, готовы обсуждать любые предложения по финансовым условиям договора аренды.
3. Оперативно организуем просмотр помещения с менеджерами на объекте или подготовим виртуальный тур.

Вы можете позвонить нам в любое время. Мы ответим на Ваши вопросы по будням до 19:00, а поздно вечером или в выходные сможем передать Ваш контакт нашему менеджеру.

Коммерческие условия

Арендная плата 3 000 160 ₽
Ставка арендной платы 25 300 ₽ м²/год
Эксплуатационные расходы Включены в ставку
Налоги С учётом НДС
Тип договора Прямая аренда
Срок договора от 11 месяцев
Размер платежей 1 месяц
Обеспечительный платеж 1 месяц
Статус Сдан

О бизнес-центре

Класс B
Этажность 3
Лифты Нет
Общая площадь 1 423 м²
Год постройки 1957
Паркинг Наземный
Вентиляция приточно-вытяжная
Кондиционирование сплит-системы
Телекоммуникации Интернет/Телефония

Расположение

Подробная презентацию по предложению

Собираете информацию? Получите подробную презентацию в удобном формате, чтобы обсудить вариант с коллегами или переслать руководству!

Похожие предложения в других зданиях

БЕЗ КОМИССИИ ID: 166913 Рейтинг8.4 КлассА

Москва, Летниковская улица, 10 с5

Павелецкая → 1.17 км
~ 12 мин
Арендная плата в месяц 2 830 833 ₽ 21 500 ₽/м² в год С учётом НДС
Характеристики 1 580 м² 5 - 12 этаж Готово к въезду
Преимущества
  • Класс А
  • Пешком от метро
  • Кондиционирование и вентиляция
  • Свой паркинг
  • Развитая инфраструктура

Предлагаем в долгосрочную прямую аренду помещение под офис класса А площадью 1580 кв.м в бизнес-центре "Святогор-5"... подробнее

Презентация по предложению

Собираете информацию? Получите подробную презентацию в удобном формате!

БЕЗ КОМИССИИ ID: 1321400 Рейтинг6.5 КлассB

Москва, Кожевническая улица, 7

Павелецкая → 525 м
~ 5 мин
Арендная плата в месяц 2 600 000 ₽ 25 000 ₽/м² в год С учётом НДС
Характеристики 1 248 м² 2 этаж Готово к въезду
Преимущества
  • Класс B
  • Пешком от метро
  • Кондиционирование и вентиляция
  • Свой паркинг
  • Развитая инфраструктура

Предлагается в долгосрочную прямую аренду офисное помещение класса B общей площадью 1248 кв. метров в бизнес-центре... подробнее

>

Виртуальный тур

Презентация по предложению

Собираете информацию? Получите подробную презентацию в удобном формате!

БЕЗ КОМИССИИ ID: 1287835 Рейтинг7.3 КлассB+

Москва, Кожевнический проезд, 1

Павелецкая → 644 м
~ 6 мин
Арендная плата в месяц 2 915 000 ₽ 26 400 ₽/м² в год С учётом НДС
Характеристики 1 325 м² 3 этаж Готово к въезду
Преимущества
  • Класс B+
  • Пешком от метро
  • Кондиционирование и вентиляция
  • Свой паркинг
  • Несколько провайдеров связи

Сдается в аренду офисный блок класса B+ площадью 1325 кв. метров в историческом бизнес-центре "Ривер Плэйс"... подробнее

>

Виртуальный тур

Презентация по предложению

Собираете информацию? Получите подробную презентацию в удобном формате!

БЕЗ КОМИССИИ ID: 1306669 Рейтинг6.8 КлассB

Москва, Дубининская улица, 33Б

Павелецкая → 872 м
~ 9 мин
Арендная плата в месяц 2 793 700 ₽ 27 300 ₽/м² в год С учётом НДС
Характеристики 1 228 м² 3 этаж Готово к въезду
Преимущества
  • Класс B
  • Пешком от метро
  • Кондиционирование и вентиляция
  • Свой паркинг

Предлагается в долгосрочную прямую аренду офисный блок класса B общей площадью 1228 квадр. метров в недавно отреконструированном бизнес-центре... подробнее

>

Виртуальный тур

Презентация по предложению

Собираете информацию? Получите подробную презентацию в удобном формате!

БЕЗ КОМИССИИ ID: 1381293 Рейтинг6.8 КлассB

Москва, Дубининская улица, 33Б

Павелецкая → 872 м
~ 9 мин
Арендная плата в месяц 2 533 833 ₽ 23 000 ₽/м² в год С учётом НДС
Характеристики 1 322 м² 2 этаж Готово к въезду
Преимущества
  • Класс B
  • Пешком от метро
  • Кондиционирование и вентиляция
  • Свой паркинг

Предлагаем в прямую аренду помещение под офис класса B общей площадью 1322 кв. метров в недавно отреконструированном бизнес-центре... подробнее

Презентация по предложению

Собираете информацию? Получите подробную презентацию в удобном формате!

Посмотреть все похожие предложения
Отнеситесь рационально к процессу поиска нового офиса!

Просто ответьте на 3 вопроса, и наши специалисты сами предложат оптимальные варианты под ваш бюджет

.