8.2

Виртуальный тур

Смотреть все фото
БЕЗ КОМИССИИ ID: 1287835 Рейтинг7.3 КлассB+
Бизнес-центр «Ривер Плэйс»

Аренда офиса 1325 м²

Москва, Кожевнический проезд, 1

Павелецкая → 644 м
~ 6 мин
Арендная плата в месяц 2 915 000 ₽ 26 400 ₽/м² в год С учётом НДС

Презентация по предложению

Собираете информацию? Получите подробную презентацию в удобном формате!

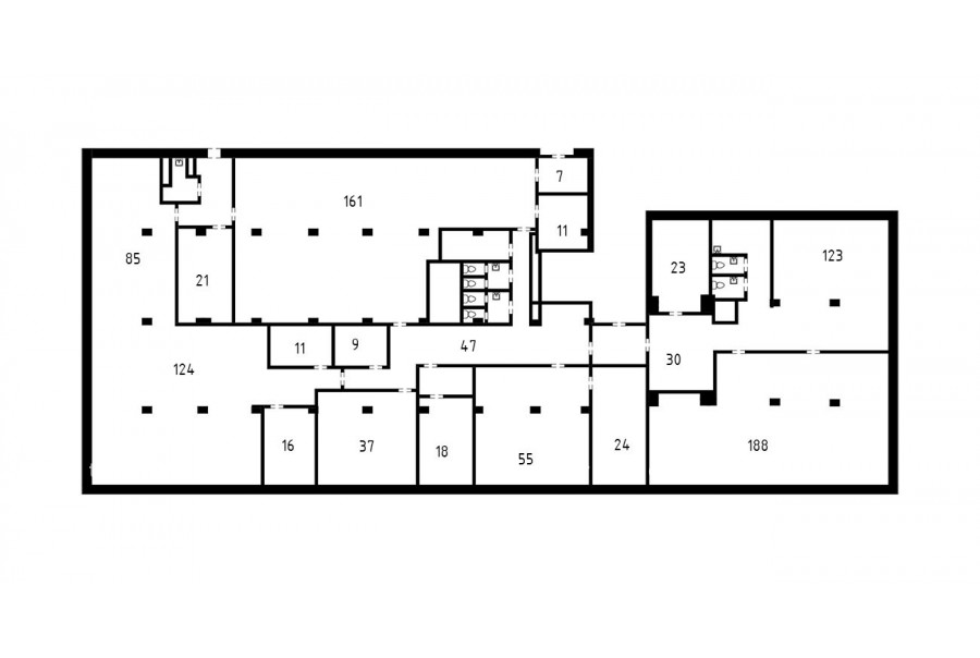
Площадь 1 325 м²
Состояние Готово к въезду
Планировка Смешанная
Этаж 3

Описание

Преимущества
  • Класс B+
  • Пешком от метро
  • Кондиционирование и вентиляция
  • Свой паркинг
  • Несколько провайдеров связи
Сдается в аренду офисный блок класса B+ площадью 1325 кв. метров в историческом бизнес-центре "Ривер Плэйс".

Москва, ЦАО, Кожевнический проезд, 1

Удобная локация здания:
- Автомобиль: близость транспортных магистралей, таких как Садовое Кольцо и других.
- Возможность аренды парковочных мест.
- Ближайшее метро: от метро "Павелецкая" всего 8 мин пешком

Офис класса B+:
- Помещение готово к въезду
- Кондиционирование: центральное
- Круглосуточная охрана и видеонаблюдение

Возможность заключения контракта в соответствии с 44ФЗ по госзакупкам.

Если предложение предварительно Вам подходит:

1. Мы отправим Вам подробную презентацию с планировкой и фотографиями в течение 10 минут после звонка, чтобы Вы могли поделиться информацией с руководством или с коллегами.
2. Ответим на любые Ваши вопросы, готовы обсуждать любые предложения по коммерческим условиям аренды помещения.
3.

Вы можете позвонить нам в любое время. Мы ответим на Ваши вопросы по будням до 19:00, а поздно вечером или в выходные зафиксируем Ваш контакт и перезвоним в рабочее время.

Коммерческие условия

Арендная плата 2 650 000 ₽
Ставка арендной платы 26 400 ₽ м²/год
Эксплуатационные расходы Включены в ставку
Налоги С учётом НДС
Тип договора Субаренда
Срок договора Краткосрочный
Размер платежей 1 месяц
Обеспечительный платеж 1 месяц
Статус Сдан

О бизнес-центре

Класс B+
Этажность 5
Лифты Есть
Общая площадь 6 500 м²
Год постройки 1914
Паркинг Наземный
Вентиляция естественная
Кондиционирование центральное
Телекоммуникации Интернет/Телефония

Расположение

Подробная презентацию по предложению

Собираете информацию? Получите подробную презентацию в удобном формате, чтобы обсудить вариант с коллегами или переслать руководству!

Похожие предложения в других зданиях

БЕЗ КОМИССИИ ID: 1321400 Рейтинг6.5 КлассB

Москва, Кожевническая улица, 7

Павелецкая → 525 м
~ 5 мин
Арендная плата в месяц 2 600 000 ₽ 25 000 ₽/м² в год С учётом НДС
Характеристики 1 248 м² 2 этаж Готово к въезду
Преимущества
  • Класс B
  • Пешком от метро
  • Кондиционирование и вентиляция
  • Свой паркинг
  • Развитая инфраструктура

Предлагается в долгосрочную прямую аренду офисное помещение класса B общей площадью 1248 кв. метров в бизнес-центре... подробнее

>

Виртуальный тур

Презентация по предложению

Собираете информацию? Получите подробную презентацию в удобном формате!

БЕЗ КОМИССИИ ID: 56257 Рейтинг5.9 КлассB+

Москва, Садовническая улица, 71

Павелецкая → 838 м
~ 8 мин
Арендная плата в месяц 3 325 000 ₽ 30 000 ₽/м² в год С учётом НДС
Характеристики 1 330 м² 2 - 3 этаж Готово к въезду
Преимущества
  • Класс B+
  • Пешком от метро
  • Кондиционирование и вентиляция

Предлагаем в долгосрочную прямую аренду офисное помещение класса B+ общей площадью 1330 квадр. метров в бизнес-центре... подробнее

Презентация по предложению

Собираете информацию? Получите подробную презентацию в удобном формате!

БЕЗ КОМИССИИ ID: 1181183 Рейтинг7.3 КлассB

Москва, Дербеневская улица, 6

Павелецкая → 1.2 км
~ 12 мин
Арендная плата в месяц 3 000 158 ₽ 25 300 ₽/м² в год С учётом НДС
Характеристики 1 423 м² -1 - 3 этаж Готово к въезду
Преимущества
  • Класс B
  • Пешком от метро
  • Кондиционирование и вентиляция
  • Свой паркинг

Предлагается в прямую аренду офис класса B площадью 1423 кв.м в историческом бизнес-центре "Дербеневская 6"... подробнее

Презентация по предложению

Собираете информацию? Получите подробную презентацию в удобном формате!

БЕЗ КОМИССИИ ID: 1304583 Рейтинг8.3 КлассА

Москва, Летниковская улица, 10 с4

Павелецкая → 1.2 км
~ 12 мин
Арендная плата в месяц 2 679 075 ₽ 28 400 ₽/м² в год С учётом НДС
Характеристики 1 134 м² 8 этаж Готово к въезду
Преимущества
  • Класс А
  • Пешком от метро
  • Кондиционирование и вентиляция
  • Свой паркинг
  • Развитая инфраструктура

Предлагаем в прямую аренду офисный блок класса А общей площадью 1134 квадр. метров в бизнес-центре "Святогор-4"... подробнее

Презентация по предложению

Собираете информацию? Получите подробную презентацию в удобном формате!

БЕЗ КОМИССИИ ID: 65865 Рейтинг7.4 КлассB

Москва, Садовническая набережная, 71

Павелецкая → 939 м
~ 9 мин
Арендная плата в месяц 3 125 000 ₽ 25 000 ₽/м² в год С учётом НДС
Характеристики 1 500 м² 0 - 3 этаж Под отделку
Преимущества
  • Класс B
  • Пешком от метро
  • Кондиционирование и вентиляция

Собственник сдает в долгосрочную аренду офис класса B площадью 1500 кв.м в новом бизнес-центре... подробнее

Презентация по предложению

Собираете информацию? Получите подробную презентацию в удобном формате!

Посмотреть все похожие предложения
Отнеситесь рационально к процессу поиска нового офиса!

Просто ответьте на 3 вопроса, и наши специалисты сами предложат оптимальные варианты под ваш бюджет

.