8.2
Смотреть все фото
БЕЗ КОМИССИИ ID: 1307196 Рейтинг8.8 КлассА
Бизнес-центр «Династия Plaza»

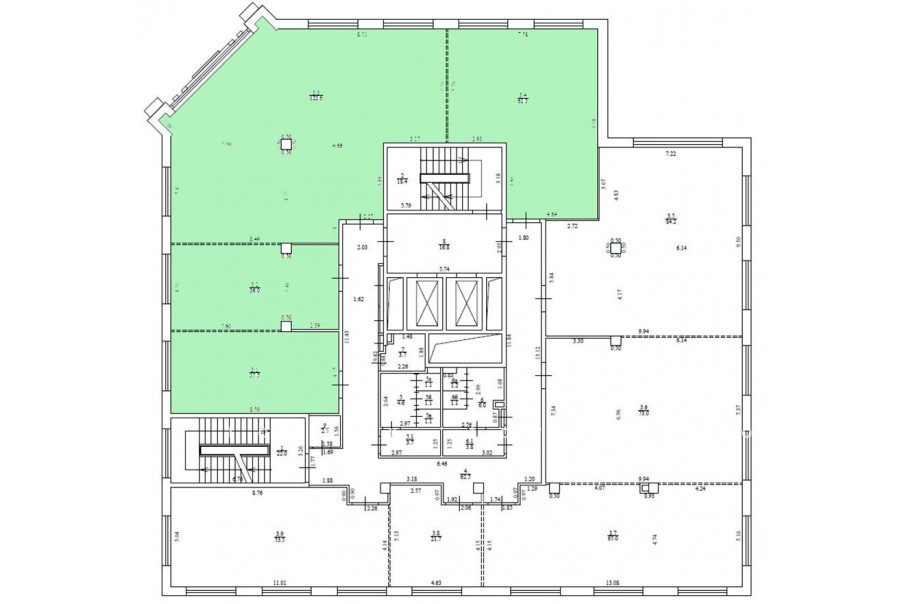
Аренда офиса 293 м²

Москва, Хорошёвское шоссе, 25Б

Полежаевская → 277 м
~ 3 мин
Арендная плата в месяц 1 294 900 ₽ 53 000 ₽/м² в год С учётом НДС

Презентация по предложению

Собираете информацию? Получите подробную презентацию в удобном формате!

Площадь 293 м²
Состояние Под отделку
Планировка Открытая
Этаж 2

Описание

Преимущества
  • Класс А
  • Пешком от метро
  • Новое строительство
  • Кондиционирование и вентиляция
Предлагается в прямую аренду офисное помещение класса А площадью 293 квадр. метров в современном бизнес-центре "Династия Plaza".

Москва, САО, Хорошёвское шоссе, 25Б

Удобное расположение здания для всех видов транспорта:
- Автомобиль: близость транспортных магистралей, таких как Третье Транспортное Кольцо, Звенигородское шоссе и других.
- Ближайшее метро: буквально 3 мин пешком от метро "Полежаевская"

Офис класса А:
- Помещение без отделки
- Вентиляция: Приточно-вытяжная вентиляция
- Кондиционирование: центральное
- Круглосуточная охрана и видеонаблюдение

Возможность заключения контракта в соответствии с 44ФЗ по госзакупкам.

Если предложение предварительно Вам подходит:

1. Получите презентацию в течение 10 минут в Whatsapp или на почту с фотографиями и планировкой, чтобы обсудить данный вариант с коллегами или переслать руководству. Для этого позвоните по телефону, указанному в объявлении.
2. Ответим на любые Ваши вопросы, готовы обсуждать любые предложения по коммерческим условиям аренды помещения.
3. Покажем помещение в удобное для Вас время с менеджером в здании, при необходимости подготовим виртуальный тур.

Вы можете позвонить нам в любое время. Мы ответим на Ваши вопросы по будням до 19:00, а поздно вечером или в выходные зафиксируем Ваш контакт и перезвоним в рабочее время.

Коммерческие условия

Арендная плата 1 233 240 ₽
Ставка арендной платы 53 000 ₽ м²/год
Эксплуатационные расходы Включены в ставку
Налоги С учётом НДС
Тип договора Прямая аренда
Срок договора Долгосрочный
Размер платежей 1 месяц
Обеспечительный платеж 1 месяц
Статус Сдан

О бизнес-центре

Класс А
Этажность 6
Лифты Нет
Общая площадь 5 100 м²
Год постройки 2023
Паркинг Наземный
Вентиляция приточно-вытяжная
Кондиционирование центральное
Телекоммуникации Интернет/Телефония

Расположение

Подробная презентацию по предложению

Собираете информацию? Получите подробную презентацию в удобном формате, чтобы обсудить вариант с коллегами или переслать руководству!

Похожие предложения в других зданиях

БЕЗ КОМИССИИ ID: 1380424 Рейтинг8.5 КлассB+

Москва, 1-й Магистральный тупик, 5А

Беговая → 1.39 км
~ 14 мин
Арендная плата в месяц 1 155 000 ₽ 46 200 ₽/м² в год Упрощённая система налогообложения
Характеристики 300 м² 2 этаж Готово к въезду
Преимущества
  • Класс B+
  • Пешком от метро
  • Кондиционирование и вентиляция

Предлагается в прямую аренду помещение под офис класса B+ общей площадью 300 квадр. метров в бизнес-центре "Магистраль Плаза"... подробнее

Презентация по предложению

Собираете информацию? Получите подробную презентацию в удобном формате!

БЕЗ КОМИССИИ ID: 305180 Рейтинг8.9 КлассА

Москва, Причальный проезд, 2А

Шелепиха → 717 м
~ 7 мин
Арендная плата в месяц 1 175 000 ₽ 47 000 ₽/м² в год С учётом НДС
Характеристики 300 м² 1 этаж Под отделку
Преимущества
  • Класс А
  • Пешком от метро
  • Новое строительство
  • Кондиционирование и вентиляция

Предлагаем в долгосрочную прямую аренду офисное помещение класса А общей площадью 300 кв.м в новом бизнес-центре "Якорь"... подробнее

Презентация по предложению

Собираете информацию? Получите подробную презентацию в удобном формате!

БЕЗ КОМИССИИ ID: 1379545 Рейтинг8.3 КлассB+

Москва, Ленинградский проспект, 47 с2

Аэропорт → 321 м
~ 3 мин
Арендная плата в месяц 1 352 083 ₽ 55 000 ₽/м² в год С учётом НДС
Характеристики 295 м² 6 этаж Готово к въезду
Преимущества
  • Класс B+
  • Пешком от метро
  • Кондиционирование и вентиляция
  • Свой паркинг
  • Развитая инфраструктура

Предлагается в прямую аренду помещение под офис класса B+ площадью 295 квадратных метров в бизнес-центре "Авион"... подробнее

Презентация по предложению

Собираете информацию? Получите подробную презентацию в удобном формате!

БЕЗ КОМИССИИ ID: 1326454 Рейтинг8.3 КлассB+

Москва, Ленинградский проспект, 47 с2

Аэропорт → 321 м
~ 3 мин
Арендная плата в месяц 1 229 167 ₽ 50 000 ₽/м² в год С учётом НДС
Характеристики 295 м² 5 этаж Готово к въезду
Преимущества
  • Класс B+
  • Пешком от метро
  • Кондиционирование и вентиляция
  • Свой паркинг
  • Развитая инфраструктура

Сдается в прямую аренду офисный блок класса B+ площадью 295 кв.м в бизнес-центре "Авион"... подробнее

>

Виртуальный тур

Презентация по предложению

Собираете информацию? Получите подробную презентацию в удобном формате!

Посмотреть все похожие предложения
Отнеситесь рационально к процессу поиска нового офиса!

Просто ответьте на 3 вопроса, и наши специалисты сами предложат оптимальные варианты под ваш бюджет

.