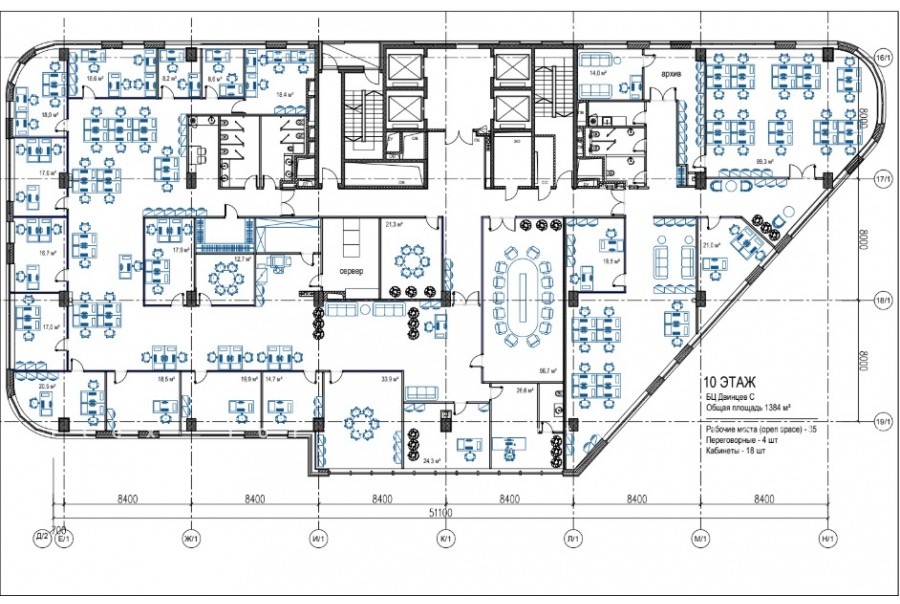
Аренда офиса 1384 м²
Москва, улица Двинцев, 12 к1
Хотите узнать больше о предложении?
Изучите предложение в подробной презентации и делитесь с коллегам для обсуждения! Введите Ваши данные, мы пришлем ее в течение нескольких минут!
Презентация по предложению
Собираете информацию? Получите подробную презентацию в удобном формате!
Описание
- Класс А
- Пешком от метро
- Кондиционирование и вентиляция
- Свой паркинг
- Несколько провайдеров связи
- Развитая инфраструктура
Москва, СВАО, улица Двинцев, 12 к1
Удобная локация здания:
- Автомобиль: близость транспортных магистралей, таких как Бутырская улица, Третье Транспортное Кольцо, Дмитровское шоссе и других.
- Возможность аренды парковочных мест.
- Ближайшее метро: от метро "Савеловская" всего 8 мин пешком
Офис класса А:
- Помещение готово к въезду
- Вентиляция: Приточно-вытяжная вентиляция
- Кондиционирование: центральное
- Презентабельный центральный ресепшн
- Круглосуточная охрана и видеонаблюдение
- Развитая инфраструктура внутри здания
Возможность заключения контракта в соответствии с 44ФЗ по госзакупкам.
Если предложение предварительно Вам подходит:
1. Мы подготовили презентацию с информацией о помещении, фотографиями и планировкой, чтобы Вы могли поделиться ей с коллегами или руководством. Попросите об этом нашего менеджера по телефону в объявлении.
2. Задайте любые вопросы менеджеру по телефону, готовы обсуждать любые предложения по финансовым условиям договора аренды.
3. Оперативно организуем просмотр помещения с менеджерами на объекте или подготовим виртуальный тур.
Вы можете позвонить нам в любое время. Мы ответим на Ваши вопросы по будням до 19:00, а поздно вечером или в выходные зафиксируем Ваш контакт и перезвоним в рабочее время.
Коммерческие условия
О бизнес-центре
Расположение
Подробная презентацию по предложению
Собираете информацию? Получите подробную презентацию в удобном формате, чтобы обсудить вариант с коллегами или переслать руководству!
Похожие предложения в других зданиях
Москва, Бумажный проезд, 14 с2
- Класс B
- Пешком от метро
- Кондиционирование и вентиляция
- Свой паркинг
- Несколько провайдеров связи
Предлагается в долгосрочную прямую аренду офис класса B площадью 1420 квадратных метров в бизнес-центре... подробнее
Презентация по предложению
Собираете информацию? Получите подробную презентацию в удобном формате!
Хотите узнать больше о предложении?
Изучите предложение в подробной презентации и делитесь с коллегам для обсуждения! Введите Ваши данные, мы пришлем ее в течение нескольких минут!
Москва, Новодмитровская улица, 2Б
- Класс B+
- Пешком от метро
- Кондиционирование и вентиляция
- Свой паркинг
Предлагаем в долгосрочную аренду офисный блок класса B+ общей площадью 1562 квадратных метров в бизнес-центре "Дмитровский"... подробнее
Презентация по предложению
Собираете информацию? Получите подробную презентацию в удобном формате!
Хотите узнать больше о предложении?
Изучите предложение в подробной презентации и делитесь с коллегам для обсуждения! Введите Ваши данные, мы пришлем ее в течение нескольких минут!
Москва, Новодмитровская улица, 2Б
- Класс B+
- Пешком от метро
- Кондиционирование и вентиляция
- Свой паркинг
Предлагаем в прямую аренду офис класса B+ общей площадью 1410 квадр. метров в бизнес-центре "Дмитровский"... подробнее
Презентация по предложению
Собираете информацию? Получите подробную презентацию в удобном формате!
Хотите узнать больше о предложении?
Изучите предложение в подробной презентации и делитесь с коллегам для обсуждения! Введите Ваши данные, мы пришлем ее в течение нескольких минут!
Москва, Новодмитровская улица, 2Б
- Класс B+
- Пешком от метро
- Кондиционирование и вентиляция
- Свой паркинг
Сдается в долгосрочную прямую аренду офис класса B+ общей площадью 1182 кв.м в бизнес-центре "Дмитровский"... подробнее
Презентация по предложению
Собираете информацию? Получите подробную презентацию в удобном формате!
Хотите узнать больше о предложении?
Изучите предложение в подробной презентации и делитесь с коллегам для обсуждения! Введите Ваши данные, мы пришлем ее в течение нескольких минут!
Москва, Новодмитровская улица, 2Б
- Класс B+
- Пешком от метро
- Кондиционирование и вентиляция
- Свой паркинг
Сдается в долгосрочную аренду офис класса B+ общей площадью 1390 кв.м в бизнес-центре "Дмитровский"... подробнее
Презентация по предложению
Собираете информацию? Получите подробную презентацию в удобном формате!
Хотите узнать больше о предложении?
Изучите предложение в подробной презентации и делитесь с коллегам для обсуждения! Введите Ваши данные, мы пришлем ее в течение нескольких минут!
 
                        Просто ответьте на 3 вопроса, и наши специалисты сами предложат оптимальные варианты под ваш бюджет
 
									
										 
									
										 
									
										 
									
										 
									
										 
									
										 
									
										 
									
										 
									
										 
									
										 
									
										 
									
										 
									
										 
									
										 
									
										 
									
										 
									
										 
									
										 
									
										 
									
										 
									
										 
									
										 
									
										 
									
										 
									
										 
																
						 
									
										 
									
										 
									
										 
									
										 
									
										 
																
						 
									
										 
									
										 
									
										 
									
										 
									
										 
									
										 
																
						 
									
										 
									
										 
									
										 
									
										 
									
										 
																
						 
    