8.2

Виртуальный тур

Смотреть все фото
БЕЗ КОМИССИИ ID: 291985 Рейтинг8.4 КлассB+
Бизнес-центр «ЕПК»

Аренда офиса 396 м²

Москва, Шарикоподшипниковская улица, 13 с2

Дубровка → 39 м
~ 0 мин
Арендная плата в месяц 689 700 ₽ 20 900 ₽/м² в год С учётом НДС

Презентация по предложению

Собираете информацию? Получите подробную презентацию в удобном формате!

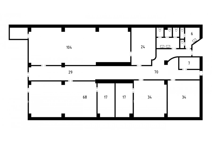
Площадь 396 м²
Состояние Готово к въезду
Планировка Смешанная
Этаж 5

Описание

Преимущества
  • Класс B+
  • Пешком от метро
  • Кондиционирование и вентиляция
  • Свой паркинг
Предлагаем в долгосрочную прямую аренду офисное помещение класса B+ площадью 396 кв.м в бизнес-центре "ЕПК".

Москва, ЮВАО, Шарикоподшипниковская улица, 13 с2

Удобное расположение здания для всех видов транспорта:
- Автомобиль: близость транспортных магистралей, таких как Третье Транспортное Кольцо и других.
- Возможность аренды парковочных мест.
- Ближайшее метро: буквально 1 мин пешком от метро "Дубровка"

Офис класса B+:
- Офис с отделкой, полностью готов к аренде
- Вентиляция: Приточно-вытяжная вентиляция
- Кондиционирование: центральное
- Круглосуточная охрана и видеонаблюдение


Что еще можно узнать о предложении:

1. Мы отправим Вам подробную презентацию с планировкой и фотографиями в течение 10 минут после звонка, чтобы Вы могли поделиться информацией с руководством или с коллегами.
2. Задайте любые вопросы менеджеру по телефону, готовы обсуждать любые предложения по финансовым условиям договора аренды.
3.

Вы можете позвонить нам в любое время. Мы ответим на Ваши вопросы по будням до 19:00, а поздно вечером или в выходные сможем передать Ваш контакт нашему менеджеру.

Коммерческие условия

Арендная плата 627 000 ₽
Ставка арендной платы 20 900 ₽ м²/год
Эксплуатационные расходы Включены в ставку
Налоги С учётом НДС
Тип договора Прямая аренда
Срок договора от 11 месяцев
Размер платежей 1 месяц
Обеспечительный платеж 2 месяц
Статус Сдан

О бизнес-центре

Класс B+
Этажность 7
Лифты Есть
Общая площадь 5 541 м²
Год постройки 1973
Паркинг Наземный
Вентиляция приточно-вытяжная
Кондиционирование центральное
Телекоммуникации Интернет/Телефония

Расположение

Подробная презентацию по предложению

Собираете информацию? Получите подробную презентацию в удобном формате, чтобы обсудить вариант с коллегами или переслать руководству!

Похожие предложения в других зданиях

БЕЗ КОМИССИИ ID: 1193576 Рейтинг6.8 КлассB

Москва, Шарикоподшипниковская улица, 13 с5

Дубровка → 319 м
~ 3 мин
Арендная плата в месяц 722 333 ₽ 22 000 ₽/м² в год С учётом НДС
Характеристики 394 м² 3 этаж Готово к въезду
Преимущества
  • Класс B
  • Пешком от метро
  • Кондиционирование и вентиляция

Предлагается в прямую аренду офисное помещение класса B площадью 394 квадр. метров в бизнес-центре... подробнее

>

Виртуальный тур

Презентация по предложению

Собираете информацию? Получите подробную презентацию в удобном формате!

БЕЗ КОМИССИИ ID: 1193575 Рейтинг6.8 КлассB

Москва, Шарикоподшипниковская улица, 13 с5

Дубровка → 319 м
~ 3 мин
Арендная плата в месяц 702 167 ₽ 22 000 ₽/м² в год С учётом НДС
Характеристики 383 м² 3 этаж Готово к въезду
Преимущества
  • Класс B
  • Пешком от метро
  • Кондиционирование и вентиляция

Сдается в долгосрочную прямую аренду офис класса B общей площадью 383 кв. метров в бизнес-центре... подробнее

>

Виртуальный тур

Презентация по предложению

Собираете информацию? Получите подробную презентацию в удобном формате!

БЕЗ КОМИССИИ ID: 353651 Рейтинг8.5 КлассB

Москва, Волгоградский проспект, 26 с1

Волгоградский проспект → 397 м
~ 4 мин
Арендная плата в месяц 712 800 ₽ 19 800 ₽/м² в год С учётом НДС
Характеристики 432 м² 3 этаж Готово к въезду
Преимущества
  • Класс B
  • Пешком от метро
  • Кондиционирование и вентиляция
  • Свой паркинг
  • Несколько провайдеров связи
  • Развитая инфраструктура

Предлагается в прямую аренду помещение под офис класса B общей площадью 432 квадратных метров в бизнес-центре... подробнее

Презентация по предложению

Собираете информацию? Получите подробную презентацию в удобном формате!

ВОЗМОЖНО ОСВОБОЖДЕНИЕ ID: 283039 Рейтинг5.4 КлассB

Москва, Михайловский проезд, 3 с13

Волгоградский проспект → 1.43 км
~ 14 мин
Арендная плата в месяц 623 333 ₽ 18 700 ₽/м² в год С учётом НДС
Характеристики 400 м² 1 этаж Готово к въезду
Преимущества
  • Класс B
  • Пешком от метро
  • Кондиционирование и вентиляция

Сдаем в долгосрочную аренду офисный блок класса B общей площадью 400 квадр. метров в историческом бизнес-центре... подробнее

Презентация по предложению

Собираете информацию? Получите подробную презентацию в удобном формате!

БЕЗ КОМИССИИ ID: 1317479 Рейтинг7.5 КлассB

Москва, Волгоградский проспект, 2

Пролетарская → 174 м
~ 2 мин
Арендная плата в месяц 691 667 ₽ 20 000 ₽/м² в год С учётом НДС
Характеристики 415 м² 5 - 6 этаж Под отделку
Преимущества
  • Класс B
  • Пешком от метро
  • Кондиционирование и вентиляция
  • Свой паркинг
  • Развитая инфраструктура

Предлагаем в долгосрочную аренду офисное помещение класса B общей площадью 415 кв.м в бизнес-центре... подробнее

Презентация по предложению

Собираете информацию? Получите подробную презентацию в удобном формате!

Посмотреть все похожие предложения
Отнеситесь рационально к процессу поиска нового офиса!

Просто ответьте на 3 вопроса, и наши специалисты сами предложат оптимальные варианты под ваш бюджет

.