8.2

Виртуальный тур

Смотреть все фото
БЕЗ КОМИССИИ ID: 1102244 Рейтинг7.5 КлассB
Бизнес-центр «Дубровка»

Аренда офиса 347 м²

Москва, Шарикоподшипниковская улица, 13 с1

Дубровка → 125 м
~ 1 мин
Арендная плата в месяц 763 400 ₽ 26 400 ₽/м² в год С учётом НДС

Презентация по предложению

Собираете информацию? Получите подробную презентацию в удобном формате!

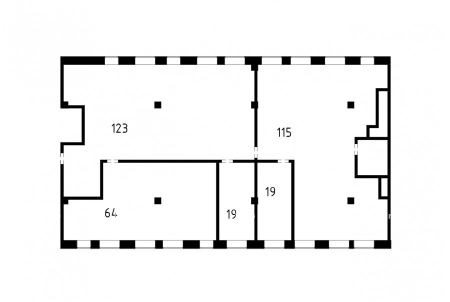
Площадь 347 м²
Состояние Готово к въезду
Планировка Смешанная
Этаж 3

Описание

Преимущества
  • Класс B
  • Пешком от метро
  • Кондиционирование и вентиляция
  • Свой паркинг
  • Развитая инфраструктура
Предлагается в прямую аренду офис класса B площадью 347 кв. метров в бизнес-центре "Дубровка".

Москва, ЮВАО, Шарикоподшипниковская улица, 13 с1

Удобное расположение здания для всех видов транспорта:
- Автомобиль: близость транспортных магистралей, таких как Третье Транспортное Кольцо и других.
- Возможность аренды парковочных мест.
- Ближайшее метро: буквально 3 мин пешком от метро "Дубровка"

Офис класса B:
- Офис с отделкой, полностью готов к аренде
- Кондиционирование: сплит-системы


Если предложение предварительно Вам подходит:

1. Мы отправим Вам подробную презентацию с планировкой и фотографиями в течение 10 минут после звонка, чтобы Вы могли поделиться информацией с руководством или с коллегами.
2. Ответим на любые Ваши вопросы, готовы обсуждать любые предложения по коммерческим условиям аренды помещения.
3.

Вы можете позвонить нам в любое время. Мы ответим на Ваши вопросы по будням до 19:00, а поздно вечером или в выходные сможем передать Ваш контакт нашему менеджеру.

Коммерческие условия

Арендная плата 694 000 ₽
Ставка арендной платы 26 400 ₽ м²/год
Эксплуатационные расходы Включены в ставку
Налоги С учётом НДС
Тип договора Прямая аренда
Срок договора от 11 месяцев
Размер платежей 1 месяц
Обеспечительный платеж 2 месяц
Статус Сдан

О бизнес-центре

Класс B
Этажность 5
Лифты Нет
Общая площадь 80 000 м²
Год постройки 2011
Паркинг Наземный
Вентиляция естественная
Кондиционирование сплит-системы
Телекоммуникации Интернет/Телефония

Расположение

Подробная презентацию по предложению

Собираете информацию? Получите подробную презентацию в удобном формате, чтобы обсудить вариант с коллегами или переслать руководству!

Похожие предложения в других зданиях

БЕЗ КОМИССИИ ID: 637613 Рейтинг8.1 КлассB+

Москва, Шарикоподшипниковская улица, 38 с1

Дубровка → 527 м
~ 5 мин
Арендная плата в месяц 659 450 ₽ 24 200 ₽/м² в год С учётом НДС
Характеристики 327 м² 1 этаж Под отделку
Преимущества
  • Класс B+
  • Пешком от метро
  • Кондиционирование и вентиляция
  • Развитая инфраструктура

Собственник сдает в прямую аренду помещение под офис класса B площадью 327 квадратных метров в бизнес-центре "Меркурий"... подробнее

Презентация по предложению

Собираете информацию? Получите подробную презентацию в удобном формате!

БЕЗ КОМИССИИ ID: 1380382 Рейтинг7.6 КлассB

Москва, Волгоградский проспект, 4А

Пролетарская → 364 м
~ 4 мин
Арендная плата в месяц 1 000 000 ₽ 30 000 ₽/м² в год Упрощённая система налогообложения
Характеристики 400 м² 2 этаж Готово к въезду
Преимущества
  • Класс B
  • Пешком от метро
  • Кондиционирование и вентиляция
  • Развитая инфраструктура

Предлагается в долгосрочную аренду офис класса B площадью 400 кв. метров в бизнес-центре... подробнее

Презентация по предложению

Собираете информацию? Получите подробную презентацию в удобном формате!

БЕЗ КОМИССИИ ID: 1378773 Рейтинг7.8 КлассB

Москва, улица Мастеркова, 4

Автозаводская → 69 м
~ 1 мин
Арендная плата в месяц 930 000 ₽ 30 000 ₽/м² в год С учётом НДС
Характеристики 372 м² 2 - 3 этаж Готово к въезду
Преимущества
  • Класс B
  • Пешком от метро
  • Кондиционирование и вентиляция
  • Свой паркинг
  • Развитая инфраструктура

Сдается в прямую аренду офисное помещение класса B площадью 372 квадратных метров в бизнес-центре... подробнее

Презентация по предложению

Собираете информацию? Получите подробную презентацию в удобном формате!

БЕЗ КОМИССИИ ID: 1313397 Рейтинг7.8 КлассB

Москва, улица Мастеркова, 4

Автозаводская → 69 м
~ 1 мин
Арендная плата в месяц 824 119 ₽ 28 700 ₽/м² в год С учётом НДС
Характеристики 345 м² 3 этаж Готово к въезду
Преимущества
  • Класс B
  • Пешком от метро
  • Кондиционирование и вентиляция
  • Свой паркинг
  • Развитая инфраструктура

Сдается в долгосрочную прямую аренду офисное помещение класса B общей площадью 345 квадр. метров в бизнес-центре... подробнее

>

Виртуальный тур

Презентация по предложению

Собираете информацию? Получите подробную презентацию в удобном формате!

ВОЗМОЖНО ОСВОБОЖДЕНИЕ ID: 377298 Рейтинг7.8 КлассB

Москва, улица Мастеркова, 4

Автозаводская → 69 м
~ 1 мин
Арендная плата в месяц 812 500 ₽ 30 000 ₽/м² в год С учётом НДС
Характеристики 325 м² 19 этаж Готово к въезду
Преимущества
  • Класс B
  • Пешком от метро
  • Кондиционирование и вентиляция
  • Свой паркинг
  • Развитая инфраструктура

Предлагаем в аренду офис класса B общей площадью 325 кв. метров в бизнес-центре... подробнее

>

Виртуальный тур

Презентация по предложению

Собираете информацию? Получите подробную презентацию в удобном формате!

Посмотреть все похожие предложения
Отнеситесь рационально к процессу поиска нового офиса!

Просто ответьте на 3 вопроса, и наши специалисты сами предложат оптимальные варианты под ваш бюджет

.