8.2
Смотреть все фото
БЕЗ КОМИССИИ ID: 1309286 Рейтинг9.0 КлассB
Бизнес-центр «Густав»

Продажа офиса 183 м²

Москва, Складочная улица, 6

Савеловская → 923 м
~ 9 мин
Стоимость 69.25 млн ₽ 378 400 ₽/м²

Презентация по предложению

Собираете информацию? Получите подробную презентацию в удобном формате!

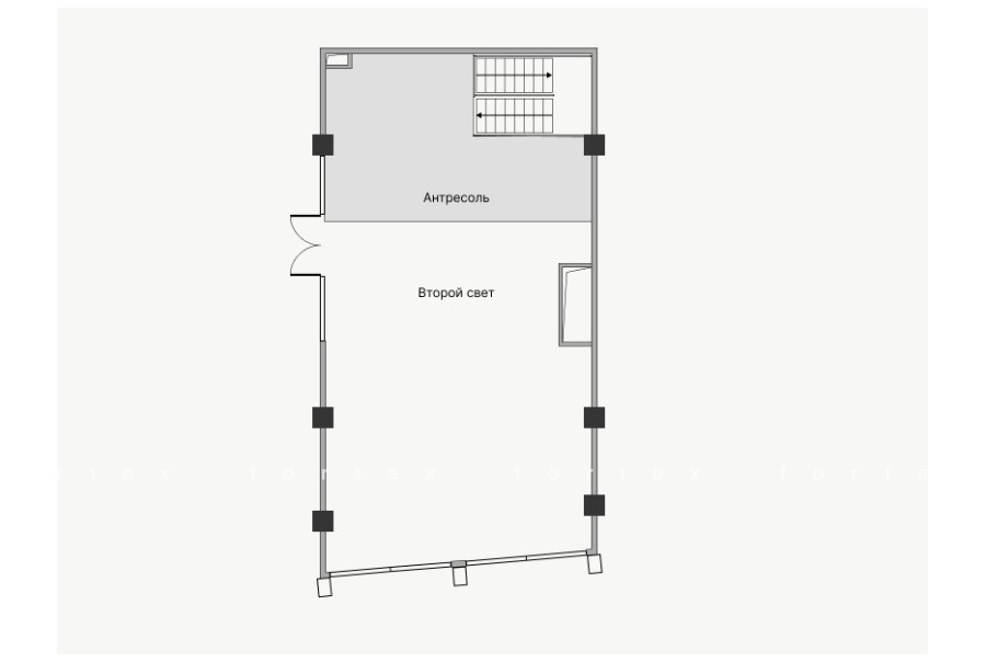
Площадь 183 м²
Состояние Под отделку
Планировка По запросу
Этаж 3

Описание

Преимущества
  • Класс B
  • Пешком от метро
  • Новое строительство
  • Кондиционирование и вентиляция
  • Свой паркинг
Продается офисный блок площадью 183 кв.м в бизнес-центре "Густав".

Помещение можно адаптировать под любой бизнес благодаря функциональной планировке - идеальный баланс комфорта и экономической выгоды. Оптимальное решение для стабильного бизнеса или выгодных инвестиций.

Офис класса B:
- Помещение без отделки
- Вентиляция: Приточно-вытяжная вентиляция
- Кондиционирование: сплит-системы

О бизнес-центре:
Москва, СВАО, Складочная улица, 6

Удобная локация здания:
- Автомобиль: близость транспортных магистралей, таких как Бутырская улица, Дмитровское шоссе, Третье Транспортное Кольцо и других.
- Возможность аренды парковочных мест.
- Ближайшее метро: от метро "Савеловская" всего 9 мин пешком



Что еще можно узнать о предложении:

1. Мы отправим Вам подробную презентацию с планировкой и фотографиями в течение 10 минут после звонка, чтобы Вы могли поделиться информацией с руководством или с коллегами.
2. Ответим на любые Ваши вопросы, готовы обсуждать любые предложения по коммерческим условиям продажи помещения.

Вы можете позвонить нам в любое время. Мы ответим на Ваши вопросы по будням до 19:00, а поздно вечером или в выходные сможем передать Ваш контакт нашему менеджеру.

О бизнес-центре

Класс B
Этажность 7
Лифты Есть
Общая площадь 62 873 м²
Год постройки 2026
Паркинг Подземный
Вентиляция приточно-вытяжная
Кондиционирование сплит-системы
Телекоммуникации Интернет/Телефония

Расположение

Подробная презентацию по предложению

Собираете информацию? Получите подробную презентацию в удобном формате, чтобы обсудить вариант с коллегами или переслать руководству!

Похожие предложения в других зданиях

БЕЗ КОМИССИИ ID: 158387 Рейтинг7.0 КлассB+

Москва, Складочная улица, 1 с15

Савеловская → 678 м
~ 7 мин
Стоимость 915 005 856 ₽ 101 400 ₽/м²
Характеристики 7 400 м² 1 - 6 этаж Готово к въезду
Преимущества
  • Класс B+
  • Пешком от метро
  • Кондиционирование и вентиляция
  • Свой паркинг
  • Несколько провайдеров связи
  • Развитая инфраструктура

В продаже офис общей площадью 7400 кв.м в бизнес-центре "Савеловград". .. подробнее

Презентация по предложению

Собираете информацию? Получите подробную презентацию в удобном формате!

БЕЗ КОМИССИИ ID: 1327351 Рейтинг9.5 КлассА

Москва, улица Двинцев, 3

Савеловская → 495 м
~ 5 мин
Стоимость 1 041 504 000 ₽ 571 000 ₽/м²
Характеристики 1 824 м² 24 этаж Под отделку
Преимущества
  • Класс А
  • Пешком от метро
  • Новое строительство
  • Кондиционирование и вентиляция

Продается офисный блок общей площадью 1824 кв.м в бизнес-центре "STONE Савеловская". .. подробнее

Презентация по предложению

Собираете информацию? Получите подробную презентацию в удобном формате!

БЕЗ КОМИССИИ ID: 1327350 Рейтинг9.5 КлассА

Москва, улица Двинцев, 3

Савеловская → 495 м
~ 5 мин
Стоимость 1 032 950 000 ₽ 566 000 ₽/м²
Характеристики 1 825 м² 23 этаж Под отделку
Преимущества
  • Класс А
  • Пешком от метро
  • Новое строительство
  • Кондиционирование и вентиляция

Продается офисное помещение площадью 1825 квадратных метров в бизнес-центре "STONE Савеловская". .. подробнее

Презентация по предложению

Собираете информацию? Получите подробную презентацию в удобном формате!

БЕЗ КОМИССИИ ID: 1282084 Рейтинг9.5 КлассА

Москва, улица Двинцев, 3

Савеловская → 495 м
~ 5 мин
Стоимость 999 702 000 ₽ 561 000 ₽/м²
Характеристики 1 782 м² 22 этаж Под отделку
Преимущества
  • Класс А
  • Пешком от метро
  • Новое строительство
  • Кондиционирование и вентиляция

Продается офис общей площадью 1782 кв.м в бизнес-центре "STONE Савеловская". .. подробнее

Презентация по предложению

Собираете информацию? Получите подробную презентацию в удобном формате!

БЕЗ КОМИССИИ ID: 1290437 Рейтинг9.5 КлассА

Москва, улица Двинцев, 3

Савеловская → 495 м
~ 5 мин
Стоимость 962 703 000 ₽ 531 000 ₽/м²
Характеристики 1 813 м² 14 этаж Под отделку
Преимущества
  • Класс А
  • Пешком от метро
  • Новое строительство
  • Кондиционирование и вентиляция

Продается офисное помещение общей площадью 1813 квадратных метров в бизнес-центре "STONE Савеловская". .. подробнее

Презентация по предложению

Собираете информацию? Получите подробную презентацию в удобном формате!

Посмотреть все похожие предложения
Отнеситесь рационально к процессу поиска нового офиса!

Просто ответьте на 3 вопроса, и наши специалисты сами предложат оптимальные варианты под ваш бюджет

.