8.2
Смотреть все фото
БЕЗ КОМИССИИ ID: 1325220 Рейтинг9.0 КлассB
Бизнес-центр «Густав»

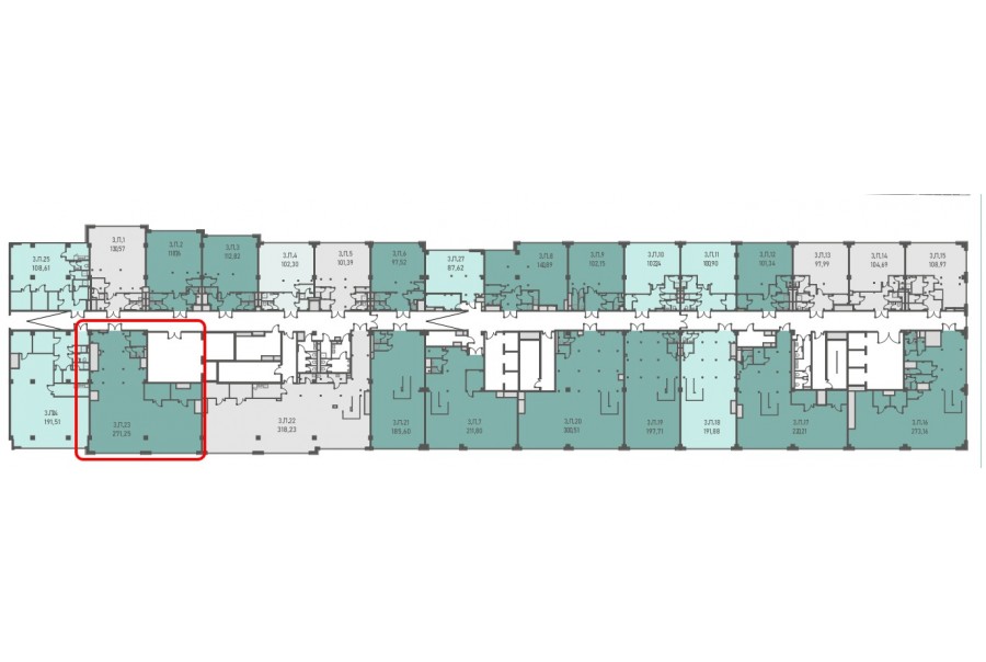
Продажа офиса 271 м²

Москва, Складочная улица, 6

Савеловская → 923 м
~ 9 мин
Стоимость 78.15 млн ₽ 288 400 ₽/м²

Презентация по предложению

Собираете информацию? Получите подробную презентацию в удобном формате!

Площадь 271 м²
Состояние Под отделку
Планировка По запросу
Этаж 3

Описание

Преимущества
  • Класс B
  • Пешком от метро
  • Новое строительство
  • Кондиционирование и вентиляция
  • Свой паркинг
Продается офисный блок общей площадью 271 кв.м в бизнес-центре "Густав".

Помещение можно адаптировать под любой бизнес благодаря функциональной планировке - идеальный баланс комфорта и экономической выгоды. Оптимальное решение для стабильного бизнеса или выгодных инвестиций.

Офис класса B:
- Помещение без отделки
- Вентиляция: Приточно-вытяжная вентиляция
- Кондиционирование: сплит-системы

О бизнес-центре:
Москва, СВАО, Складочная улица, 6

Удобная локация здания:
- Автомобиль: близость транспортных магистралей, таких как Бутырская улица, Третье Транспортное Кольцо, Дмитровское шоссе и других.
- Возможность аренды парковочных мест.
- Ближайшее метро: от метро "Савеловская" всего 9 мин пешком



Если данное предложение подходит Вашему запросу:

1. Мы подготовили презентацию с информацией о помещении, фотографиями и планировкой, чтобы Вы могли поделиться ей с коллегами или руководством. Попросите об этом нашего менеджера по телефону в объявлении.
2. Задайте любые вопросы менеджеру по телефону, готовы обсуждать любые предложения по финансовым условиям договора продажи.

Звоните нам в любое время. По будням мы сможем ответить на Ваши вопросы до 19:00. В выходные или вечернее время мы передадим Ваш контакт нашему менеджеру.

О бизнес-центре

Класс B
Этажность 7
Лифты Есть
Общая площадь 62 873 м²
Год постройки 2026
Паркинг Подземный
Вентиляция приточно-вытяжная
Кондиционирование сплит-системы
Телекоммуникации Интернет/Телефония

Расположение

Подробная презентацию по предложению

Собираете информацию? Получите подробную презентацию в удобном формате, чтобы обсудить вариант с коллегами или переслать руководству!

Похожие предложения в других зданиях

БЕЗ КОМИССИИ ID: 158387 Рейтинг7.0 КлассB+

Москва, Складочная улица, 1 с15

Савеловская → 678 м
~ 7 мин
Стоимость 915 005 856 ₽ 101 400 ₽/м²
Характеристики 7 400 м² 1 - 6 этаж Готово к въезду
Преимущества
  • Класс B+
  • Пешком от метро
  • Кондиционирование и вентиляция
  • Свой паркинг
  • Несколько провайдеров связи
  • Развитая инфраструктура

В продаже офис общей площадью 7400 кв.м в бизнес-центре "Савеловград". .. подробнее

Презентация по предложению

Собираете информацию? Получите подробную презентацию в удобном формате!

БЕЗ КОМИССИИ ID: 1327351 Рейтинг9.5 КлассА

Москва, улица Двинцев, 3

Савеловская → 495 м
~ 5 мин
Стоимость 1 041 504 000 ₽ 571 000 ₽/м²
Характеристики 1 824 м² 24 этаж Под отделку
Преимущества
  • Класс А
  • Пешком от метро
  • Новое строительство
  • Кондиционирование и вентиляция

В продаже офисный блок общей площадью 1824 кв. метров в бизнес-центре "STONE Савеловская". .. подробнее

Презентация по предложению

Собираете информацию? Получите подробную презентацию в удобном формате!

БЕЗ КОМИССИИ ID: 1327350 Рейтинг9.5 КлассА

Москва, улица Двинцев, 3

Савеловская → 495 м
~ 5 мин
Стоимость 1 032 950 000 ₽ 566 000 ₽/м²
Характеристики 1 825 м² 23 этаж Под отделку
Преимущества
  • Класс А
  • Пешком от метро
  • Новое строительство
  • Кондиционирование и вентиляция

В продаже офис площадью 1825 кв.м в бизнес-центре "STONE Савеловская". .. подробнее

Презентация по предложению

Собираете информацию? Получите подробную презентацию в удобном формате!

БЕЗ КОМИССИИ ID: 1282084 Рейтинг9.5 КлассА

Москва, улица Двинцев, 3

Савеловская → 495 м
~ 5 мин
Стоимость 999 702 000 ₽ 561 000 ₽/м²
Характеристики 1 782 м² 22 этаж Под отделку
Преимущества
  • Класс А
  • Пешком от метро
  • Новое строительство
  • Кондиционирование и вентиляция

В продаже офисный блок площадью 1782 кв.м в бизнес-центре "STONE Савеловская". .. подробнее

Презентация по предложению

Собираете информацию? Получите подробную презентацию в удобном формате!

БЕЗ КОМИССИИ ID: 1290437 Рейтинг9.5 КлассА

Москва, улица Двинцев, 3

Савеловская → 495 м
~ 5 мин
Стоимость 962 703 000 ₽ 531 000 ₽/м²
Характеристики 1 813 м² 14 этаж Под отделку
Преимущества
  • Класс А
  • Пешком от метро
  • Новое строительство
  • Кондиционирование и вентиляция

В продаже офисный блок общей площадью 1813 кв. метров в бизнес-центре "STONE Савеловская". .. подробнее

Презентация по предложению

Собираете информацию? Получите подробную презентацию в удобном формате!

Посмотреть все похожие предложения
Отнеситесь рационально к процессу поиска нового офиса!

Просто ответьте на 3 вопроса, и наши специалисты сами предложат оптимальные варианты под ваш бюджет

.