8.2
Смотреть все фото
БЕЗ КОМИССИИ ID: 1328109 Рейтинг6.5 КлассB
Бизнес-центр «Институтский»

Аренда офиса 424 м²

Москва, Институтский переулок, 2/1

Достоевская → 394 м
~ 4 мин
Арендная плата в месяц 3 476 800 ₽ 98 400 ₽/м² в год С учётом НДС

Презентация по предложению

Собираете информацию? Получите подробную презентацию в удобном формате!

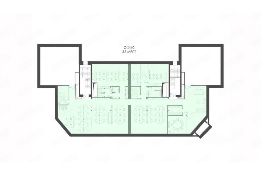
Площадь 424 м²
Состояние Готово к въезду
Планировка Смешанная
Этаж 6

Описание

Преимущества
  • Класс B
  • Пешком от метро
  • Кондиционирование и вентиляция
  • Несколько провайдеров связи
  • Развитая инфраструктура
Предлагается в долгосрочную аренду комфортабельный сервисный офис на 58 рабочих мест в историческом недавно отреконструированном бизнес-центре "Институтский".

Сервисный офис - это современное офисное решение. Высококлассная дизайнерская отделка, полностью укомплектованные рабочие места, мягкие зоны отдыха, переговорные комнаты - это готовый к работе офис. Ежедневная уборка, обеспечение расходными материалами, включая кухни и санузлы, любая АХО-поддержка - это сервис, который уже включен в стоимость.

Услуги, включенные в арендную плату:
- Качественная мебель для комфортной работы
- Бронирование переговорных комнат
- Печать, IT-услуги и техническое обслуживание офиса
- Зоны отдыха, чай, кофе, вода
- Пополнение расходных материалов
- Ежедневная уборка офиса
- Высокоскоростной интернет

Офис класса B:
- Помещение готово к въезду
- Вентиляция: Приточно-вытяжная вентиляция
- Кондиционирование: сплит-системы

О особняке "Институтский" :
1

Удобное расположение здания для всех видов транспорта:
- Автомобиль: близость транспортных магистралей, таких как Третье Транспортное Кольцо и других.
- Ближайшее метро: от метро "Достоевская" всего 4 мин пешком

Возможность заключения контракта в соответствии с 44ФЗ по госзакупкам.

Если предложение предварительно Вам подходит:

1. Получите презентацию в течение 10 минут в Whatsapp или на почту с фотографиями и планировкой, чтобы обсудить данный вариант с коллегами или переслать руководству. Для этого позвоните по телефону, указанному в объявлении.
2. Задайте любые вопросы менеджеру по телефону, готовы обсуждать любые предложения по финансовым условиям договора аренды.
3. Оперативно организуем просмотр помещения, договоримся на любое удобное время, подготовим виртуальный тур.

Звоните нам в любое время. По будням мы сможем ответить на Ваши вопросы до 19:00. В выходные или вечернее время мы передадим Ваш контакт нашему менеджеру по аренде.

Коммерческие условия

Арендная плата 3 476 800 ₽
Ставка арендной платы 98 400 ₽ м²/год
Эксплуатационные расходы Включены в ставку
Налоги С учётом НДС
Тип договора Прямая аренда
Срок договора от 11 месяцев
Размер платежей 1 месяц
Обеспечительный платеж 2 месяц
Статус Свободен

О бизнес-центре

Класс B
Этажность 6
Лифты Есть
Общая площадь 3 500 м²
Год постройки 1906
Паркинг Стихийный
Вентиляция приточно-вытяжная
Кондиционирование сплит-системы
Телекоммуникации Интернет/Телефония

Расположение

Подробная презентацию по предложению

Собираете информацию? Получите подробную презентацию в удобном формате, чтобы обсудить вариант с коллегами или переслать руководству!

Похожие предложения в других зданиях

БЕЗ КОМИССИИ ID: 1325913 Рейтинг7.6 КлассB

Москва, Цветной бульвар, 30 с1

Цветной бульвар → 469 м
~ 5 мин
Арендная плата в месяц 3 630 025 ₽ 103 700 ₽/м² в год С учётом НДС
Характеристики 420 м² 1 этаж Готово к въезду
Преимущества
  • Класс B
  • Пешком от метро
  • Кондиционирование и вентиляция
  • Свой паркинг
  • Развитая инфраструктура

Сдается в долгосрочную прямую аренду помещение под офис класса B общей площадью 420 квадр. метров в бизнес-центре... подробнее

>

Виртуальный тур

Презентация по предложению

Собираете информацию? Получите подробную презентацию в удобном формате!

БЕЗ КОМИССИИ ID: 1321981 Рейтинг7.6 КлассB

Москва, Цветной бульвар, 30 с1

Цветной бульвар → 469 м
~ 5 мин
Арендная плата в месяц 3 094 312 ₽ 93 100 ₽/м² в год С учётом НДС
Характеристики 399 м² 1 этаж Готово к въезду
Преимущества
  • Класс B
  • Пешком от метро
  • Кондиционирование и вентиляция
  • Свой паркинг
  • Развитая инфраструктура

Сдается в прямую аренду высококачественный сервисный офис на 57 рабочих мест в бизнес-центре... подробнее

>

Виртуальный тур

Презентация по предложению

Собираете информацию? Получите подробную презентацию в удобном формате!

БЕЗ КОМИССИИ ID: 1379691 Рейтинг9.0 КлассА

Москва, Бумажный проезд, 19

Савёловская → 638 м
~ 6 мин
Арендная плата в месяц 3 003 503 ₽ 91 700 ₽/м² в год Упрощённая система налогообложения
Характеристики 393 м² 10 этаж Готово к въезду
Преимущества
  • Класс А
  • Пешком от метро
  • Новое строительство
  • Кондиционирование и вентиляция

Сдается в прямую аренду офис класса А общей площадью 393 кв.м в современном бизнес-центре "STONE Towers"... подробнее

Презентация по предложению

Собираете информацию? Получите подробную презентацию в удобном формате!

БЕЗ КОМИССИИ ID: 1379690 Рейтинг9.0 КлассА

Москва, Бумажный проезд, 19

Савёловская → 638 м
~ 6 мин
Арендная плата в месяц 2 995 860 ₽ 91 700 ₽/м² в год Упрощённая система налогообложения
Характеристики 392 м² 10 этаж Готово к въезду
Преимущества
  • Класс А
  • Пешком от метро
  • Новое строительство
  • Кондиционирование и вентиляция

Сдается в долгосрочную прямую аренду помещение под офис класса А площадью 392 квадр. метров в современном бизнес-центре "STONE Towers"... подробнее

Презентация по предложению

Собираете информацию? Получите подробную презентацию в удобном формате!

Посмотреть все похожие предложения
Отнеситесь рационально к процессу поиска нового офиса!

Просто ответьте на 3 вопроса, и наши специалисты сами предложат оптимальные варианты под ваш бюджет

.