8.2
Смотреть все фото
БЕЗ КОМИССИИ ID: 1329376 Рейтинг9.0 КлассА
Бизнес-центр «JENGA»

Продажа офиса 215 м²

Москва, Полесский проезд, 16

Щукинская → 564 м
~ 6 мин
Стоимость 69.1 млн ₽ 321 400 ₽/м²

Презентация по предложению

Собираете информацию? Получите подробную презентацию в удобном формате!

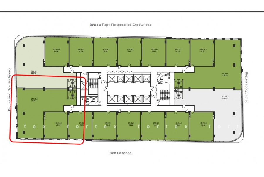
Площадь 215 м²
Состояние Под отделку
Планировка Открытая
Этаж 7

Описание

Преимущества
  • Класс А
  • Пешком от метро
  • Новое строительство
  • Кондиционирование и вентиляция
  • Свой паркинг
В продаже офис площадью 215 кв.м в строящемся бизнес-центре "JENGA". Год ввода в экслуатацию 42588.

Помещение можно адаптировать под любой бизнес благодаря функциональной планировке - идеальный баланс комфорта и экономической выгоды. Оптимальное решение для стабильного бизнеса или выгодных инвестиций.

Офис класса А:
- Офис в состоянии shell & core
- Вентиляция: Приточно-вытяжная вентиляция
- Кондиционирование: центральное

О офисном центре:
Москва, СЗАО, Полесский проезд, 16

Удобное расположение здания для всех видов транспорта:
- Автомобиль: близость транспортных магистралей, таких как Волоколамское шоссе и других.
- Возможность аренды парковочных мест.
- Ближайшее метро: от метро "Щукинская" всего 6 мин пешком



Если данное предложение подходит Вашему запросу:

1. Мы подготовили презентацию с информацией о помещении, фотографиями и планировкой, чтобы Вы могли поделиться ей с коллегами или руководством. Попросите об этом нашего менеджера по телефону в объявлении.
2. Ответим на любые Ваши вопросы, готовы обсуждать любые предложения по коммерческим условиям продажи помещения.

Звоните нам в любое время. По будням мы сможем ответить на Ваши вопросы до 19:00. В выходные или вечернее время мы передадим Ваш контакт нашему менеджеру.

О бизнес-центре

Класс А
Этажность 23
Лифты Есть
Общая площадь 59 969 м²
Год постройки 42588
Паркинг Подземный
Вентиляция приточно-вытяжная
Кондиционирование центральное
Телекоммуникации Интернет/Телефония

Расположение

Подробная презентацию по предложению

Собираете информацию? Получите подробную презентацию в удобном формате, чтобы обсудить вариант с коллегами или переслать руководству!

Похожие предложения в других зданиях

БЕЗ КОМИССИИ ID: 1249823 Рейтинг6.5 КлассB

Москва, улица Габричевского, 5 к9

Щукинская → 1.09 км
~ 11 мин
Стоимость 700 000 992 ₽ 326 500 ₽/м²
Характеристики 2 144 м² 1 - 4 этаж Готово к въезду
Преимущества
  • Класс B
  • Пешком от метро
  • Кондиционирование и вентиляция
  • Свой паркинг

В продаже офис общей площадью 2144 кв.м в бизнес-центре. .. подробнее

Презентация по предложению

Собираете информацию? Получите подробную презентацию в удобном формате!

БЕЗ КОМИССИИ ID: 1319975 Рейтинг6.8 КлассB

Москва, улица Сурикова, 24

Панфиловская → 688 м
~ 7 мин
Стоимость 1 047 219 600 ₽ 654 500 ₽/м²
Характеристики 1 600 м² -1 - 4 этаж Готово к въезду
Преимущества
  • Класс B
  • Пешком от метро
  • Кондиционирование и вентиляция
  • Свой паркинг

Продается офис площадью 1600 квадратных метров в недавно отреконструированном бизнес-центре "На Соколе". .. подробнее

Презентация по предложению

Собираете информацию? Получите подробную презентацию в удобном формате!

БЕЗ КОМИССИИ ID: 1313259 Рейтинг5.9 КлассB

Москва, Волоколамское шоссе, 87 с1

Тушинская → 1.65 км
~ 17 мин
Стоимость 1 219 997 926 ₽ 197 000 ₽/м²
Характеристики 5 075 м² -1 - 3 этаж Готово к въезду
Преимущества
  • Класс B
  • Пешком от метро
  • Кондиционирование и вентиляция
  • Свой паркинг

Продается офис площадью 5075 кв. метров в бизнес-центре. .. подробнее

Презентация по предложению

Собираете информацию? Получите подробную презентацию в удобном формате!

БЕЗ КОМИССИИ ID: 1323714 Рейтинг9.5 КлассА

Москва, 3-я Хорошёвская улица, 18 к2

Зорге → 379 м
~ 4 мин
Стоимость 127 351 200 ₽ 451 600 ₽/м²
Характеристики 282 м² 27 этаж Под отделку
Преимущества
  • Класс А
  • Пешком от метро
  • Новое строительство
  • Кондиционирование и вентиляция
  • Свой паркинг

Продается офисное помещение площадью 282 квадратных метров в строящемся бизнес-центре "AVIUM". Год ввода в экслуатацию 2028. .. подробнее

Презентация по предложению

Собираете информацию? Получите подробную презентацию в удобном формате!

БЕЗ КОМИССИИ ID: 1323716 Рейтинг9.5 КлассА

Москва, 3-я Хорошёвская улица, 18 к2

Зорге → 379 м
~ 4 мин
Стоимость 126 805 900 ₽ 424 100 ₽/м²
Характеристики 299 м² 27 этаж Под отделку
Преимущества
  • Класс А
  • Пешком от метро
  • Новое строительство
  • Кондиционирование и вентиляция
  • Свой паркинг

В продаже офис общей площадью 299 кв. метров в строящемся бизнес-центре "AVIUM". Год ввода в экслуатацию 2028. .. подробнее

Презентация по предложению

Собираете информацию? Получите подробную презентацию в удобном формате!

Посмотреть все похожие предложения
Отнеситесь рационально к процессу поиска нового офиса!

Просто ответьте на 3 вопроса, и наши специалисты сами предложат оптимальные варианты под ваш бюджет

.