8.2
Смотреть все фото
БЕЗ КОМИССИИ ID: 910807 Рейтинг6.1 КлассB
Бизнес-центр «Каховка 20А»

Аренда офиса 500 м²

Москва, улица Каховка, 20А

Зюзино → 542 м
~ 5 мин
Арендная плата в месяц 500 000 ₽ 12 000 ₽/м² в год С учётом НДС

Презентация по предложению

Собираете информацию? Получите подробную презентацию в удобном формате!

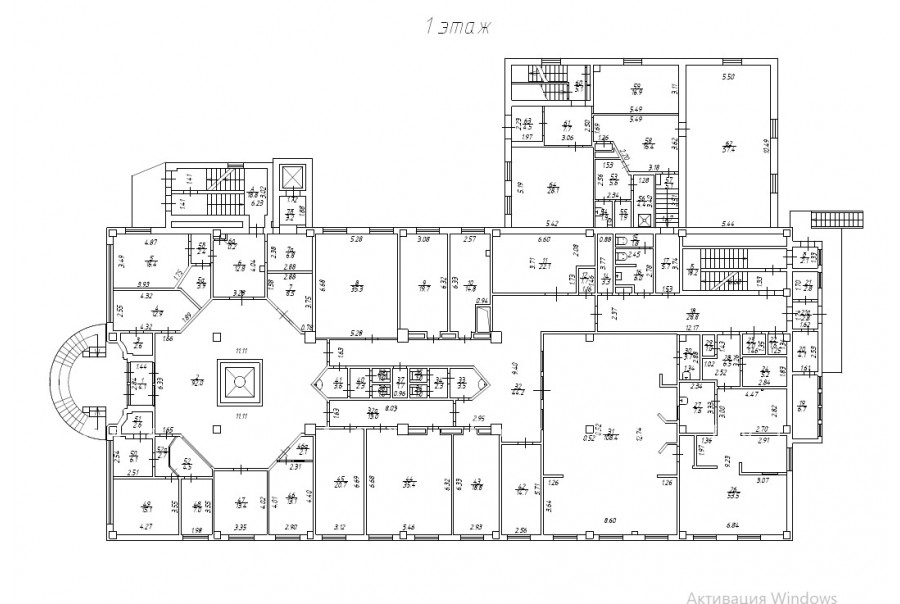
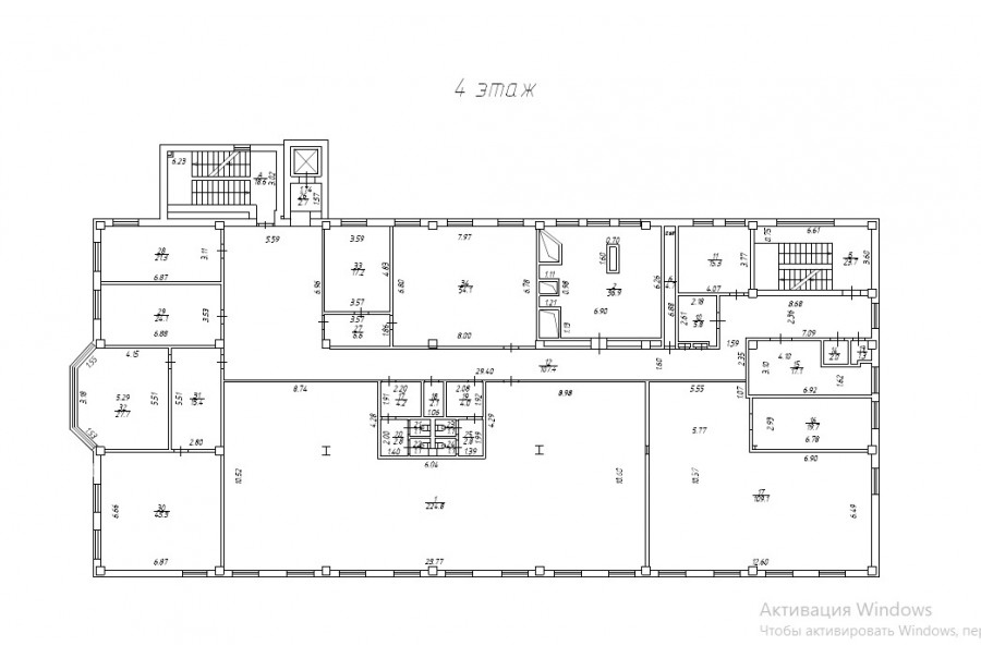
Площадь 500 м²
Состояние Готово к въезду
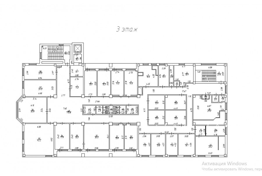
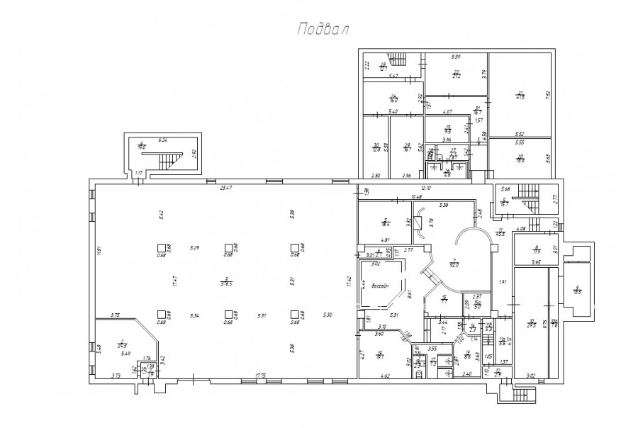
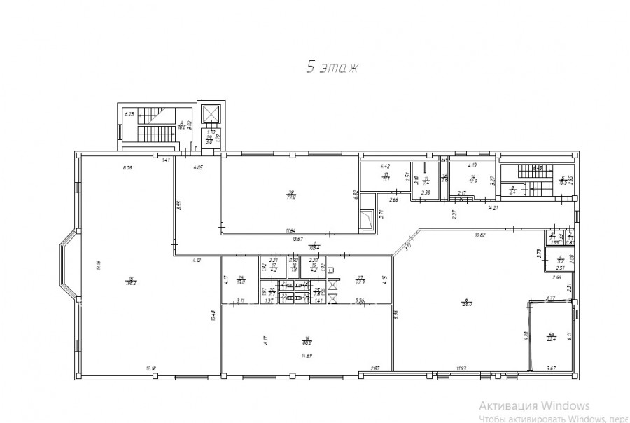
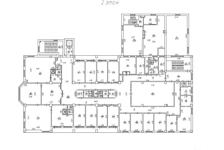
Планировка Кабинетная
Этаж -1 - 5

Описание

Преимущества
  • Класс B
  • Пешком от метро
  • Кондиционирование и вентиляция
Сдаем в прямую аренду офис класса B площадью 500 кв.м в бизнес-центре.

Москва, ЮЗАО, улица Каховка, 20А

Удобное расположение здания для всех видов транспорта:
- Автомобиль: близость транспортных магистралей, таких как Севастопольский проспект, Профсоюзная улица и других.
- Ближайшее метро: от метро "Зюзино" всего 7 мин пешком

Офис класса B:
- Помещение готово к въезду
- Кондиционирование: центральное


Если предложение предварительно Вам подходит:

1. Мы отправим Вам подробную презентацию с планировкой и фотографиями в течение 10 минут после звонка, чтобы Вы могли поделиться информацией с руководством или с коллегами.
2. Задайте любые вопросы менеджеру по телефону, готовы обсуждать любые предложения по финансовым условиям договора аренды.
3. Проводим показы ежедневно, договоримся на удобное для Вас время. Можем организовать виртуальный тур по офисному блоку.

Вы можете позвонить нам в любое время. Мы ответим на Ваши вопросы по будням до 19:00, а поздно вечером или в выходные сможем передать Ваш контакт нашему менеджеру.

Коммерческие условия

Арендная плата 500 000 ₽
Ставка арендной платы 12 000 ₽ м²/год
Эксплуатационные расходы Включены в ставку
Налоги С учётом НДС
Тип договора Прямая аренда
Срок договора Краткосрочный
Размер платежей 1 месяц
Обеспечительный платеж 1 месяц
Статус Сдан

О бизнес-центре

Класс B
Этажность 5
Лифты Нет
Общая площадь 4 139 м²
Год постройки 1990
Паркинг Стихийный
Вентиляция естественная
Кондиционирование центральное
Телекоммуникации Интернет/Телефония

Расположение

Подробная презентацию по предложению

Собираете информацию? Получите подробную презентацию в удобном формате, чтобы обсудить вариант с коллегами или переслать руководству!

Похожие предложения в других зданиях

БЕЗ КОМИССИИ ID: 163883 Рейтинг4.6 КлассB

Москва, улица Введенского, 8 с3

Калужская → 1.29 км
~ 13 мин
Арендная плата в месяц 558 000 ₽ 12 400 ₽/м² в год С учётом НДС
Характеристики 540 м² 3 этаж Готово к въезду
Преимущества
  • Класс B
  • Пешком от метро
  • Кондиционирование и вентиляция
  • Свой паркинг
  • Несколько провайдеров связи

Предлагается в прямую аренду офис класса B общей площадью 540 квадратных метров в бизнес-центре... подробнее

Презентация по предложению

Собираете информацию? Получите подробную презентацию в удобном формате!

БЕЗ КОМИССИИ ID: 77427 Рейтинг4.2 КлассB

Москва, Большая Черёмушкинская улица, 25 с97

Профсоюзная → 1.71 км
~ 17 мин
Арендная плата в месяц 530 000 ₽ 12 000 ₽/м² в год С учётом НДС
Характеристики 530 м² 5 этаж Готово к въезду
Преимущества
  • Класс B
  • Пешком от метро
  • Кондиционирование и вентиляция
  • Свой паркинг

Сдается в долгосрочную прямую аренду офис класса B площадью 530 кв. метров в недавно отреконструированном бизнес-центре "IT бизнес-парк"... подробнее

Презентация по предложению

Собираете информацию? Получите подробную презентацию в удобном формате!

БЕЗ КОМИССИИ ID: 190984 Рейтинг8.5 КлассB

Москва, Болотниковская улица, 18 к1

Нахимовский проспект → 600 м
~ 6 мин
Арендная плата в месяц 525 375 ₽ 13 500 ₽/м² в год С учётом НДС
Характеристики 467 м² 1 этаж Готово к въезду
Преимущества
  • Класс B
  • Пешком от метро
  • Кондиционирование и вентиляция
  • Свой паркинг

Сдаем в прямую аренду офисное помещение класса B площадью 467 кв.м в историческом бизнес-центре... подробнее

Презентация по предложению

Собираете информацию? Получите подробную презентацию в удобном формате!

БЕЗ КОМИССИИ ID: 1380092 Рейтинг7.6 КлассB

Москва, улица Архитектора Власова, 6

Профсоюзная → 1.03 км
~ 10 мин
Арендная плата в месяц 578 550 ₽ 12 600 ₽/м² в год С учётом НДС
Характеристики 551 м² -1 этаж Готово к въезду
Преимущества
  • Класс B
  • Пешком от метро
  • Кондиционирование и вентиляция
  • Свой паркинг

Предлагается в долгосрочную аренду помещение под офис класса B площадью 551 квадр. метров в жилом комплексе "Дом в Черемушках"... подробнее

Презентация по предложению

Собираете информацию? Получите подробную презентацию в удобном формате!

БЕЗ КОМИССИИ ID: 179147 Рейтинг8.5 КлассB

Москва, Балаклавский проспект, 16А

Чертановская → 191 м
~ 2 мин
Арендная плата в месяц 504 167 ₽ 11 000 ₽/м² в год С учётом НДС
Характеристики 550 м² 3 этаж Под отделку
Преимущества
  • Класс B
  • Пешком от метро
  • Кондиционирование и вентиляция
  • Свой паркинг

Предлагается в долгосрочную прямую аренду офисный блок класса B общей площадью 550 квадратных метров в бизнес-центре... подробнее

Презентация по предложению

Собираете информацию? Получите подробную презентацию в удобном формате!

Посмотреть все похожие предложения
Отнеситесь рационально к процессу поиска нового офиса!

Просто ответьте на 3 вопроса, и наши специалисты сами предложат оптимальные варианты под ваш бюджет

.