8.2
Смотреть все фото
БЕЗ КОМИССИИ ID: 1260454 Рейтинг8.4 КлассB+

Москва, Каланчёвская улица, 13

Красные Ворота → 232 м
~ 2 мин
Арендная плата в месяц 783 300 ₽ 34 400 ₽/м² в год С учётом НДС

Презентация по предложению

Собираете информацию? Получите подробную презентацию в удобном формате!

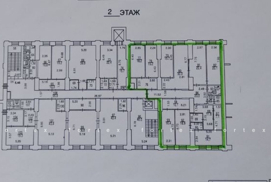
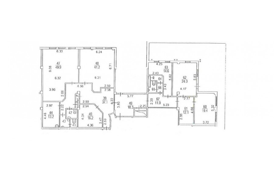
Площадь 273 м²
Состояние Готово к въезду
Планировка Кабинетная
Этаж 5

Описание

Преимущества
  • Класс B+
  • Пешком от метро
  • Кондиционирование и вентиляция
  • Развитая инфраструктура
Собственник сдает в долгосрочную аренду офисное помещение класса B+ площадью 273 квадр. метров в бизнес-центре.

Москва, ЦАО, Каланчевская улица, 13

Удобное расположение здания для всех видов транспорта:
- Автомобиль: близость транспортных магистралей, таких как Садовое Кольцо и других.
- Ближайшее метро: буквально 2 мин пешком от метро "Красные Ворота"

Офис класса B+:
- Помещение готово к въезду
- Круглосуточная охрана и видеонаблюдение
- Развитая инфраструктура внутри здания


Если предложение предварительно Вам подходит:

1. Мы подготовили презентацию с информацией о помещении, фотографиями и планировкой, чтобы Вы могли поделиться ей с коллегами или руководством. Попросите об этом нашего менеджера по телефону в объявлении.
2. Ответим на любые Ваши вопросы, готовы обсуждать любые предложения по коммерческим условиям аренды помещения.
3. Оперативно организуем просмотр помещения, договоримся на любое удобное время, подготовим виртуальный тур.

Звоните нам в любое время. По будням мы сможем ответить на Ваши вопросы до 19:00. В выходные или вечернее время мы передадим Ваш контакт нашему менеджеру по аренде.

Коммерческие условия

Арендная плата 712 080 ₽
Ставка арендной платы 34 400 ₽ м²/год
Эксплуатационные расходы Включены в ставку
Налоги С учётом НДС
Тип договора Прямая аренда
Срок договора от 11 месяцев
Размер платежей 1 месяц
Обеспечительный платеж 1 месяц
Статус Сдан

О бизнес-центре

Класс B+
Этажность 6
Лифты Есть
Общая площадь 8 374 м²
Год постройки 2004
Паркинг Наземный и подземный
Вентиляция приточно-вытяжная
Кондиционирование центральное
Телекоммуникации Интернет/Телефония

Расположение

Подробная презентацию по предложению

Собираете информацию? Получите подробную презентацию в удобном формате, чтобы обсудить вариант с коллегами или переслать руководству!

Похожие предложения в других зданиях

БЕЗ КОМИССИИ ID: 306693 Рейтинг6.9 КлассB

Москва, Каланчёвская улица, 15А

Красные Ворота → 346 м
~ 3 мин
Арендная плата в месяц 620 000 ₽ 30 000 ₽/м² в год С учётом НДС
Характеристики 248 м² 4 этаж Готово к въезду
Преимущества
  • Класс B
  • Пешком от метро
  • Свой паркинг

Собственник сдает в долгосрочную аренду помещение под офис класса B общей площадью 248 кв. метров в историческом бизнес-центре... подробнее

Презентация по предложению

Собираете информацию? Получите подробную презентацию в удобном формате!

БЕЗ КОМИССИИ ID: 242234 Рейтинг7.4 КлассB+

Москва, Новорязанская улица, 8А с1

Комсомольская → 427 м
~ 4 мин
Арендная плата в месяц 775 000 ₽ 37 200 ₽/м² в год С учётом НДС
Характеристики 250 м² 1 этаж Готово к въезду
Преимущества
  • Класс B+
  • Пешком от метро
  • Кондиционирование и вентиляция
  • Свой паркинг

Сдаем в долгосрочную прямую аренду офис класса B+ площадью 250 кв.м в историческом недавно отреконструированном бизнес-центре... подробнее

Презентация по предложению

Собираете информацию? Получите подробную презентацию в удобном формате!

БЕЗ КОМИССИИ ID: 1283248 Рейтинг7.9 КлассB

Москва, улица Маши Порываевой, 11Б

Комсомольская → 524 м
~ 5 мин
Арендная плата в месяц 747 450 ₽ 29 700 ₽/м² в год С учётом НДС
Характеристики 302 м² 1 - 2 этаж Готово к въезду
Преимущества
  • Класс B
  • Пешком от метро
  • Кондиционирование и вентиляция
  • Свой паркинг

Предлагается в прямую аренду офисное помещение класса B площадью 302 кв. метров в бизнес-центре... подробнее

>

Виртуальный тур

Презентация по предложению

Собираете информацию? Получите подробную презентацию в удобном формате!

БЕЗ КОМИССИИ ID: 303649 Рейтинг7.9 КлассB

Москва, улица Маши Порываевой, 11Б

Комсомольская → 524 м
~ 5 мин
Арендная плата в месяц 594 167 ₽ 31 000 ₽/м² в год С учётом НДС
Характеристики 230 м² 2 этаж Готово к въезду
Преимущества
  • Класс B
  • Пешком от метро
  • Кондиционирование и вентиляция
  • Свой паркинг

Предлагаем в долгосрочную прямую аренду офисное помещение класса B общей площадью 230 квадратных метров в бизнес-центре... подробнее

Презентация по предложению

Собираете информацию? Получите подробную презентацию в удобном формате!

БЕЗ КОМИССИИ ID: 257234 Рейтинг9.2 КлассА

Москва, Садовая-Черногрязская улица, 8/23 с4

Красные Ворота → 368 м
~ 4 мин
Арендная плата в месяц 632 500 ₽ 33 000 ₽/м² в год С учётом НДС
Характеристики 230 м² 3 этаж Готово к въезду
Преимущества
  • Класс А
  • Пешком от метро
  • Кондиционирование и вентиляция
  • Несколько провайдеров связи

Сдается в долгосрочную аренду офисный блок класса А площадью 230 квадратных метров в бизнес-центре "Юсупов двор"... подробнее

Презентация по предложению

Собираете информацию? Получите подробную презентацию в удобном формате!

Посмотреть все похожие предложения
Отнеситесь рационально к процессу поиска нового офиса!

Просто ответьте на 3 вопроса, и наши специалисты сами предложат оптимальные варианты под ваш бюджет

.