8.2
Смотреть все фото
БЕЗ КОМИССИИ ID: 306693 Рейтинг6.9 КлассB

Москва, Каланчёвская улица, 15А

Красные Ворота → 346 м
~ 3 мин
Арендная плата в месяц 620 000 ₽ 30 000 ₽/м² в год С учётом НДС

Презентация по предложению

Собираете информацию? Получите подробную презентацию в удобном формате!

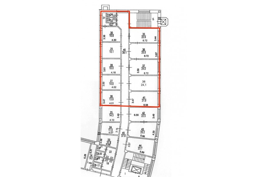
Площадь 248 м²
Состояние Готово к въезду
Планировка Кабинетная
Этаж 4

Описание

Преимущества
  • Класс B
  • Пешком от метро
  • Свой паркинг
Собственник сдает в долгосрочную аренду помещение под офис класса B общей площадью 248 кв. метров в историческом бизнес-центре.

Москва, ЦАО, Каланчёвская улица, 15А

Удобное расположение здания для всех видов транспорта:
- Автомобиль: близость транспортных магистралей, таких как Садовое Кольцо и других.
- Возможность аренды парковочных мест.
- Ближайшее метро: от метро "Красные Ворота" всего 5 мин пешком

Офис класса B:
- Помещение готово к въезду


Если предложение предварительно Вам подходит:

1. Мы отправим Вам подробную презентацию с планировкой и фотографиями в течение 10 минут после звонка, чтобы Вы могли поделиться информацией с руководством или с коллегами.
2. Ответим на любые Ваши вопросы, готовы обсуждать любые предложения по коммерческим условиям аренды помещения.
3. Оперативно организуем просмотр помещения, договоримся на любое удобное время, подготовим виртуальный тур.

Звоните нам в любое время. По будням мы сможем ответить на Ваши вопросы до 19:00. В выходные или вечернее время мы передадим Ваш контакт нашему менеджеру по аренде.

Коммерческие условия

Арендная плата 619 010 ₽
Ставка арендной платы 30 000 ₽ м²/год
Эксплуатационные расходы Включены в ставку
Налоги С учётом НДС
Тип договора Прямая аренда
Срок договора от 11 месяцев
Размер платежей 1 месяц
Обеспечительный платеж 1 месяц
Статус Сдан

О бизнес-центре

Класс B
Этажность 7
Лифты Есть
Общая площадь 5 853 м²
Год постройки 1929
Паркинг Наземный
Вентиляция приточно-вытяжная
Кондиционирование сплит-системы
Телекоммуникации Интернет/Телефония

Расположение

Подробная презентацию по предложению

Собираете информацию? Получите подробную презентацию в удобном формате, чтобы обсудить вариант с коллегами или переслать руководству!

Похожие предложения в других зданиях

БЕЗ КОМИССИИ ID: 1260454 Рейтинг8.5 КлассB+

Москва, Каланчёвская улица, 13

Красные Ворота → 232 м
~ 2 мин
Арендная плата в месяц 783 283 ₽ 34 400 ₽/м² в год С учётом НДС
Характеристики 273 м² 5 этаж Готово к въезду
Преимущества
  • Класс B+
  • Пешком от метро
  • Кондиционирование и вентиляция
  • Развитая инфраструктура

Собственник сдает в долгосрочную аренду офисное помещение класса B+ площадью 273 квадр. метров в бизнес-центре... подробнее

Презентация по предложению

Собираете информацию? Получите подробную презентацию в удобном формате!

БЕЗ КОМИССИИ ID: 1379532 Рейтинг7.2 КлассB

Москва, Новая Басманная улица, 9 с6

Комсомольская → 584 м
~ 6 мин
Арендная плата в месяц 575 000 ₽ 30 000 ₽/м² в год С учётом НДС
Характеристики 230 м² 1 этаж Готово к въезду
Преимущества
  • Класс B
  • Пешком от метро
  • Кондиционирование и вентиляция
  • Свой паркинг

Предлагается в долгосрочную прямую аренду офисное помещение класса B площадью 230 квадр. метров в бизнес-центре... подробнее

Презентация по предложению

Собираете информацию? Получите подробную презентацию в удобном формате!

БЕЗ КОМИССИИ ID: 303649 Рейтинг7.9 КлассB

Москва, улица Маши Порываевой, 11Б

Комсомольская → 524 м
~ 5 мин
Арендная плата в месяц 517 500 ₽ 27 000 ₽/м² в год С учётом НДС
Характеристики 230 м² 2 этаж Готово к въезду
Преимущества
  • Класс B
  • Пешком от метро
  • Кондиционирование и вентиляция
  • Свой паркинг

Предлагаем в долгосрочную прямую аренду офисное помещение класса B общей площадью 230 квадратных метров в бизнес-центре... подробнее

Презентация по предложению

Собираете информацию? Получите подробную презентацию в удобном формате!

БЕЗ КОМИССИИ ID: 243563 Рейтинг8.2 КлассB

Москва, Спасский тупик, 8 с1

Комсомольская → 803 м
~ 8 мин
Арендная плата в месяц 667 333 ₽ 28 000 ₽/м² в год С учётом НДС
Характеристики 286 м² 1 - 1 этаж Готово к въезду
Преимущества
  • Класс B
  • Пешком от метро
  • Кондиционирование и вентиляция
  • Свой паркинг

Сдаем в долгосрочную аренду офисное помещение класса B общей площадью 286 квадр. метров в бизнес-центре... подробнее

Презентация по предложению

Собираете информацию? Получите подробную презентацию в удобном формате!

БЕЗ КОМИССИИ ID: 268746 Рейтинг6.6 КлассB

Москва, Мясницкий проезд, 1 с2

Красные Ворота → 137 м
~ 2 мин
Арендная плата в месяц 596 750 ₽ 31 000 ₽/м² в год С учётом НДС
Характеристики 231 м² 3 этаж Готово к въезду
Преимущества
  • Класс B
  • Пешком от метро
  • Кондиционирование и вентиляция
  • Свой паркинг

Сдается в долгосрочную аренду офис класса B площадью 231 квадр. метров в бизнес-центре... подробнее

Презентация по предложению

Собираете информацию? Получите подробную презентацию в удобном формате!

Посмотреть все похожие предложения
Отнеситесь рационально к процессу поиска нового офиса!

Просто ответьте на 3 вопроса, и наши специалисты сами предложат оптимальные варианты под ваш бюджет

.