8.2
Смотреть все фото
БЕЗ КОМИССИИ ID: 1377597 Рейтинг7.9 КлассB+
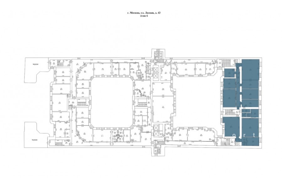
Бизнес-центр «Лесная 43»

Аренда офиса 400 м²

Москва, Лесная улица, 43

Белорусская → 559 м
~ 6 мин
Арендная плата в месяц 2 066 700 ₽ 62 000 ₽/м² в год С учётом НДС

Презентация по предложению

Собираете информацию? Получите подробную презентацию в удобном формате!

Площадь 400 м²
Состояние Готово к въезду
Планировка Смешанная
Этаж 6

Описание

Преимущества
  • Класс B+
  • Пешком от метро
  • Кондиционирование и вентиляция
  • Свой паркинг
  • Несколько провайдеров связи
  • Развитая инфраструктура
Сдается в долгосрочную прямую аренду офисный блок класса B+ площадью 400 квадр. метров в историческом недавно отреконструированном бизнес-центре.

Москва, ЦАО, Лесная улица, 43

Удобное расположение здания для всех видов транспорта:
- Автомобиль: близость транспортных магистралей, таких как Ленинградский проспект и других.
- Возможность аренды парковочных мест.
- Ближайшее метро: от метро "Белорусская" всего 6 мин пешком

Офис класса B+:
- Офис с отделкой, полностью готов к аренде
- Вентиляция: Приточно-вытяжная вентиляция
- Кондиционирование: сплит-системы
- Презентабельный центральный ресепшн
- Круглосуточная охрана и видеонаблюдение
- Развитая инфраструктура внутри здания

Возможность заключения контракта в соответствии с 44ФЗ по госзакупкам.

Если данное предложение подходит Вашему запросу:

1. Мы отправим Вам подробную презентацию с планировкой и фотографиями в течение 10 минут после звонка, чтобы Вы могли поделиться информацией с руководством или с коллегами.
2. Ответим на любые Ваши вопросы, готовы обсуждать любые предложения по коммерческим условиям аренды помещения.
3. Проводим показы ежедневно, договоримся на удобное для Вас время. Можем организовать виртуальный тур по офисному блоку.

Звоните нам в любое время. По будням мы сможем ответить на Ваши вопросы до 19:00. В выходные или вечернее время мы передадим Ваш контакт нашему менеджеру по аренде.

Коммерческие условия

Арендная плата 2 066 670 ₽
Ставка арендной платы 62 000 ₽ м²/год
Эксплуатационные расходы Включены в ставку
Налоги С учётом НДС
Тип договора Прямая аренда
Срок договора от 11 месяцев
Размер платежей 1 месяц
Обеспечительный платеж 2 месяц
Статус Свободен

О бизнес-центре

Класс B+
Этажность 7
Лифты Есть
Общая площадь 12 000 м²
Год постройки 1914
Паркинг Наземный
Вентиляция приточно-вытяжная
Кондиционирование сплит-системы
Телекоммуникации Интернет/Телефония

Расположение

Подробная презентацию по предложению

Собираете информацию? Получите подробную презентацию в удобном формате, чтобы обсудить вариант с коллегами или переслать руководству!

Похожие предложения в других зданиях

БЕЗ КОМИССИИ ID: 241298 Рейтинг8.1 КлассB+

Москва, Сущёвская улица, 27 с1

Менделеевская → 269 м
~ 3 мин
Арендная плата в месяц 1 644 067 ₽ 54 200 ₽/м² в год С учётом НДС
Характеристики 364 м² 2 этаж Готово к въезду
Преимущества
  • Класс B+
  • Пешком от метро
  • Кондиционирование и вентиляция
  • Свой паркинг
  • Развитая инфраструктура

Сдается в долгосрочную прямую аренду офисное помещение класса B+ площадью 364 квадр. метров в бизнес-центре "Салют"... подробнее

Презентация по предложению

Собираете информацию? Получите подробную презентацию в удобном формате!

БЕЗ КОМИССИИ ID: 869422 Рейтинг8.5 КлассА

Москва, 4-я Тверская-Ямская улица, 14 с1

Маяковская → 359 м
~ 4 мин
Арендная плата в месяц 2 044 500 ₽ 56 400 ₽/м² в год С учётом НДС
Характеристики 435 м² 3 этаж Готово к въезду
Преимущества
  • Класс А
  • Пешком от метро
  • Кондиционирование и вентиляция
  • Свой паркинг

Сдается в долгосрочную аренду офис класса А общей площадью 435 кв.м в бизнес-центре... подробнее

Презентация по предложению

Собираете информацию? Получите подробную презентацию в удобном формате!

БЕЗ КОМИССИИ ID: 280893 Рейтинг7.3 КлассB

Москва, 1-я Тверская-Ямская улица, 6

Маяковская → 69 м
~ 1 мин
Арендная плата в месяц 2 056 667 ₽ 61 700 ₽/м² в год С учётом НДС
Характеристики 400 м² этаж Готово к въезду
Преимущества
  • Класс B
  • Пешком от метро
  • Кондиционирование и вентиляция
  • Несколько провайдеров связи
  • Развитая инфраструктура

Сдается в долгосрочную прямую аренду офис класса B общей площадью 400 квадратных метров в историческом бизнес-центре... подробнее

Презентация по предложению

Собираете информацию? Получите подробную презентацию в удобном формате!

БЕЗ КОМИССИИ ID: 1297935 Рейтинг9.1 КлассА

Москва, Ленинградский проспект, 15 с3

Белорусская → 776 м
~ 8 мин
Арендная плата в месяц 2 232 641 ₽ 61 700 ₽/м² в год С учётом НДС
Характеристики 434 м² 1 этаж Готово к въезду
Преимущества
  • Класс А
  • Пешком от метро
  • Кондиционирование и вентиляция
  • Свой паркинг

Предлагается в долгосрочную прямую аренду офисный блок класса А общей площадью 434 квадр. метров в недавно отреконструированном бизнес-центре "Большевик"... подробнее

Презентация по предложению

Собираете информацию? Получите подробную презентацию в удобном формате!

БЕЗ КОМИССИИ ID: 1380339 Рейтинг7.4 КлассB+

Москва, улица Грузинский Вал, 10

Белорусская → 622 м
~ 6 мин
Арендная плата в месяц 1 985 625 ₽ 67 500 ₽/м² в год С учётом НДС
Характеристики 353 м² 3 этаж Готово к въезду
Преимущества
  • Класс B+
  • Пешком от метро
  • Кондиционирование и вентиляция
  • Свой паркинг

Предлагается в долгосрочную прямую аренду помещение под офис класса B+ площадью 353 кв. метров в бизнес-центре... подробнее

Презентация по предложению

Собираете информацию? Получите подробную презентацию в удобном формате!

Посмотреть все похожие предложения
Отнеситесь рационально к процессу поиска нового офиса!

Просто ответьте на 3 вопроса, и наши специалисты сами предложат оптимальные варианты под ваш бюджет

.