8.2
Смотреть все фото
БЕЗ КОМИССИИ ID: 874120 Рейтинг5.3 КлассB
Бизнес-центр «Лианозово»

Аренда офиса 1175 м²

Москва, Угличская улица, 12 к1

Алтуфьево → 1.43 км
~ 14 мин
Арендная плата в месяц 1 175 000 ₽ 12 000 ₽/м² в год С учётом НДС

Презентация по предложению

Собираете информацию? Получите подробную презентацию в удобном формате!

Площадь 1 175 м²
Состояние Готово к въезду
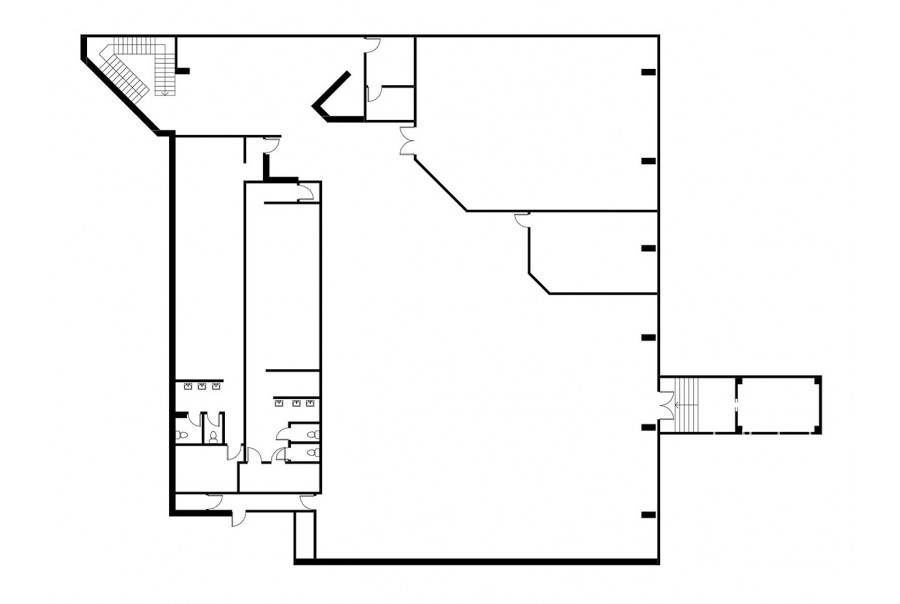
Планировка Открытая
Этаж 2

Описание

Преимущества
  • Класс B
  • Пешком от метро
  • Кондиционирование и вентиляция
  • Свой паркинг
Предлагается в долгосрочную аренду офисное помещение класса B площадью 1175 кв. метров в бизнес-центре "Лианозово".

Москва, СВАО, Угличская улица, 12 к1

Удобная локация здания:
- Автомобиль: близость транспортных магистралей, таких как Алтуфьевское шоссе, Дмитровское шоссе, МКАД и других.
- Возможность аренды парковочных мест.
- Ближайшее метро: от метро "Алтуфьево" всего 18 мин пешком

Офис класса B:
- Помещение готово к въезду
- Вентиляция: Приточно-вытяжная вентиляция

Возможность заключения контракта в соответствии с 44ФЗ по госзакупкам.

Если предложение предварительно Вам подходит:

1. Мы подготовили презентацию с информацией о помещении, фотографиями и планировкой, чтобы Вы могли поделиться ей с коллегами или руководством. Попросите об этом нашего менеджера по телефону в объявлении.
2. Мы готовы ответить на любые Ваши вопросы о помещении и коммерческих условиях аренды.
3. Оперативно организуем просмотр помещения, договоримся на любое удобное время, подготовим виртуальный тур.

Звоните нам в любое время. По будням мы сможем ответить на Ваши вопросы до 19:00. В выходные или вечернее время мы передадим Ваш контакт нашему менеджеру по аренде.

Коммерческие условия

Арендная плата 1 175 000 ₽
Ставка арендной платы 12 000 ₽ м²/год
Эксплуатационные расходы Включены в ставку
Налоги С учётом НДС
Тип договора Прямая аренда
Срок договора от 11 месяцев
Размер платежей 1 месяц
Обеспечительный платеж 1 месяц
Статус Сдан

О бизнес-центре

Класс B
Этажность 3
Лифты Нет
Общая площадь 4 000 м²
Год постройки 2005
Паркинг Наземный
Вентиляция приточно-вытяжная
Кондиционирование отсутствует
Телекоммуникации Интернет/Телефония

Расположение

Подробная презентацию по предложению

Собираете информацию? Получите подробную презентацию в удобном формате, чтобы обсудить вариант с коллегами или переслать руководству!

Похожие предложения в других зданиях

БЕЗ КОМИССИИ ID: 110955 Рейтинг6.5 КлассB

Москва, Дмитровское шоссе, 157

Алтуфьево → 3.9 км
~ 14 мин
Арендная плата в месяц 1 462 500 ₽ 13 500 ₽/м² в год С учётом НДС
Характеристики 1 300 м² 1 этаж Готово к въезду
Преимущества
  • Класс B
  • Кондиционирование и вентиляция
  • Свой паркинг
  • Развитая инфраструктура

Сдаем в долгосрочную аренду офис класса B площадью 1300 кв. метров в бизнес-центре "Гефест"... подробнее

Презентация по предложению

Собираете информацию? Получите подробную презентацию в удобном формате!

БЕЗ КОМИССИИ ID: 4570 Рейтинг6.5 КлассB

Москва, Дмитровское шоссе, 157

Алтуфьево → 3.9 км
~ 14 мин
Арендная плата в месяц 1 125 000 ₽ 13 500 ₽/м² в год С учётом НДС
Характеристики 1 000 м² 2 этаж Готово к въезду
Преимущества
  • Класс B
  • Кондиционирование и вентиляция
  • Свой паркинг
  • Развитая инфраструктура

Собственник сдает в аренду офисное помещение класса B площадью 1000 квадр. метров в бизнес-центре "Гефест"... подробнее

Презентация по предложению

Собираете информацию? Получите подробную презентацию в удобном формате!

БЕЗ КОМИССИИ ID: 257873 Рейтинг7.5 КлассB

Москва, Алтуфьевское шоссе, 44

Отрадное → 2.03 км
~ 10 мин
Арендная плата в месяц 1 300 000 ₽ 12 000 ₽/м² в год С учётом НДС
Характеристики 1 300 м² 3 этаж Отделка под арендатора
Преимущества
  • Класс B
  • Кондиционирование и вентиляция
  • Свой паркинг
  • Развитая инфраструктура

Сдается в прямую аренду помещение под офис класса B общей площадью 1300 квадратных метров в бизнес-центре "Альтеза"... подробнее

Презентация по предложению

Собираете информацию? Получите подробную презентацию в удобном формате!

БЕЗ КОМИССИИ ID: 254731 Рейтинг7.5 КлассB

Москва, Алтуфьевское шоссе, 44

Отрадное → 2.03 км
~ 10 мин
Арендная плата в месяц 1 000 000 ₽ 12 000 ₽/м² в год С учётом НДС
Характеристики 1 000 м² 3 этаж Готово к въезду
Преимущества
  • Класс B
  • Кондиционирование и вентиляция
  • Свой паркинг
  • Развитая инфраструктура

Предлагаем в долгосрочную аренду офисный блок класса B общей площадью 1000 квадратных метров в бизнес-центре "Альтеза"... подробнее

Презентация по предложению

Собираете информацию? Получите подробную презентацию в удобном формате!

БЕЗ КОМИССИИ ID: 4028 Рейтинг7.1 КлассB

Москва, Высоковольтный проезд, 1 с49

Отрадное → 1.98 км
~ 20 мин
Арендная плата в месяц 1 100 000 ₽ 13 200 ₽/м² в год С учётом НДС
Характеристики 1 000 м² 1 этаж Под отделку
Преимущества
  • Класс B
  • Пешком от метро
  • Кондиционирование и вентиляция
  • Свой паркинг
  • Несколько провайдеров связи
  • Развитая инфраструктура

Сдается в долгосрочную прямую аренду помещение под офис класса B площадью 1000 кв.м в бизнес-центре "Вольт центр"... подробнее

Презентация по предложению

Собираете информацию? Получите подробную презентацию в удобном формате!

Посмотреть все похожие предложения
Отнеситесь рационально к процессу поиска нового офиса!

Просто ответьте на 3 вопроса, и наши специалисты сами предложат оптимальные варианты под ваш бюджет

.