8.2
Смотреть все фото
БЕЗ КОМИССИИ ID: 1293039 Рейтинг8.2 КлассB
Бизнес-центр «Лихоборский»

Аренда офиса 1977 м²

Москва, Дмитровское шоссе, 60а

Верхние лихоборы → 912 м
~ 9 мин
Арендная плата в месяц 2 899 600 ₽ 17 600 ₽/м² в год С учётом НДС

Презентация по предложению

Собираете информацию? Получите подробную презентацию в удобном формате!

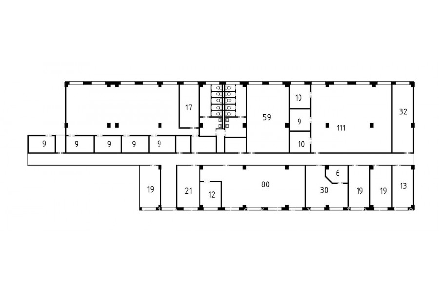
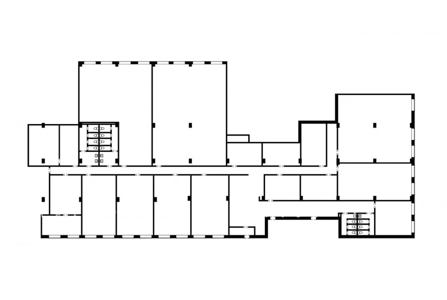
Площадь 1 977 м²
Состояние Готово к въезду
Планировка Смешанная
Этаж 2

Описание

Преимущества
  • Класс B
  • Пешком от метро
  • Кондиционирование и вентиляция
  • Свой паркинг
  • Несколько провайдеров связи
  • Развитая инфраструктура
Сдается в долгосрочную аренду офисное помещение класса B площадью 1977 квадратных метров в недавно отреконструированном бизнес-центре "Лихоборский".

Москва, САО, Дмитровское шоссе, 60а

Удобная локация здания:
- Автомобиль: близость транспортных магистралей, таких как Дмитровское шоссе, Алтуфьевское шоссе и других.
- Возможность аренды парковочных мест.
- Ближайшее метро: от метро "Верхние лихоборы" всего 11 мин пешком

Офис класса B:
- Офис с отделкой, полностью готов к аренде
- Вентиляция: Приточно-вытяжная вентиляция
- Кондиционирование: центральное
- Презентабельный центральный ресепшн
- Круглосуточная охрана и видеонаблюдение
- Развитая инфраструктура внутри здания


Что еще можно узнать о предложении:

1. Получите презентацию в течение 10 минут в Whatsapp или на почту с фотографиями и планировкой, чтобы обсудить данный вариант с коллегами или переслать руководству. Для этого позвоните по телефону, указанному в объявлении.
2. Мы готовы ответить на любые Ваши вопросы о помещении и коммерческих условиях аренды.
3. Оперативно организуем просмотр помещения с менеджерами на объекте или подготовим виртуальный тур.

Звоните нам в любое время. По будням мы сможем ответить на Ваши вопросы до 19:00. В выходные или вечернее время мы передадим Ваш контакт нашему менеджеру по аренде.

Коммерческие условия

Арендная плата 2 636 000 ₽
Ставка арендной платы 17 600 ₽ м²/год
Эксплуатационные расходы Включены в ставку
Налоги С учётом НДС
Тип договора Прямая аренда
Срок договора от 11 месяцев
Размер платежей 1 месяц
Обеспечительный платеж 1 месяц
Статус Сдан

О бизнес-центре

Класс B
Этажность 4
Лифты Нет
Общая площадь 20 000 м²
Год постройки 1973
Паркинг Наземный
Вентиляция приточно-вытяжная
Кондиционирование центральное
Телекоммуникации Интернет/Телефония

Расположение

Подробная презентацию по предложению

Собираете информацию? Получите подробную презентацию в удобном формате, чтобы обсудить вариант с коллегами или переслать руководству!

Похожие предложения в других зданиях

ВОЗМОЖНО ОСВОБОЖДЕНИЕ ID: 1139828 Рейтинг6.6 КлассB

Москва, Дмитровское шоссе, 62 к2

Верхние лихоборы → 808 м
~ 8 мин
Арендная плата в месяц 2 500 000 ₽ 15 000 ₽/м² в год С учётом НДС
Характеристики 2 000 м² 1 - 9 этаж Готово к въезду
Преимущества
  • Класс B
  • Пешком от метро
  • Кондиционирование и вентиляция
  • Свой паркинг
  • Развитая инфраструктура

Сдаем в долгосрочную прямую аренду офисное помещение класса B общей площадью 2000 квадр. метров в бизнес-центре... подробнее

Презентация по предложению

Собираете информацию? Получите подробную презентацию в удобном формате!

БЕЗ КОМИССИИ ID: 74390 Рейтинг7.6 КлассB+

Москва, Алтуфьевское шоссе, 1

Владыкино → 661 м
~ 7 мин
Арендная плата в месяц 2 833 333 ₽ 17 000 ₽/м² в год С учётом НДС
Характеристики 2 000 м² 1 - 4 этаж Готово к въезду
Преимущества
  • Класс B+
  • Пешком от метро
  • Кондиционирование и вентиляция
  • Свой паркинг
  • Несколько провайдеров связи
  • Развитая инфраструктура

Сдается в долгосрочную аренду помещение под офис класса B+ общей площадью 2000 квадратных метров в недавно отреконструированном бизнес-центре "Бета центр"... подробнее

Презентация по предложению

Собираете информацию? Получите подробную презентацию в удобном формате!

ВОЗМОЖНО ОСВОБОЖДЕНИЕ ID: 391181 Рейтинг7.6 КлассB+

Москва, Алтуфьевское шоссе, 1

Владыкино → 661 м
~ 7 мин
Арендная плата в месяц 2 812 000 ₽ 16 000 ₽/м² в год С учётом НДС
Характеристики 2 109 м² 1 - 2 этаж Готово к въезду
Преимущества
  • Класс B+
  • Пешком от метро
  • Кондиционирование и вентиляция
  • Свой паркинг
  • Несколько провайдеров связи
  • Развитая инфраструктура

Сдается в прямую аренду офис класса B+ общей площадью 2109 кв. метров в недавно отреконструированном бизнес-центре "Бета центр"... подробнее

Презентация по предложению

Собираете информацию? Получите подробную презентацию в удобном формате!

ВОЗМОЖНО ОСВОБОЖДЕНИЕ ID: 74389 Рейтинг7.6 КлассB+

Москва, Алтуфьевское шоссе, 1

Владыкино → 661 м
~ 7 мин
Арендная плата в месяц 2 408 333 ₽ 17 000 ₽/м² в год С учётом НДС
Характеристики 1 700 м² 1 - 4 этаж Готово к въезду
Преимущества
  • Класс B+
  • Пешком от метро
  • Кондиционирование и вентиляция
  • Свой паркинг
  • Несколько провайдеров связи
  • Развитая инфраструктура

Сдаем в аренду помещение под офис класса B+ площадью 1700 кв. метров в недавно отреконструированном бизнес-центре "Бета центр"... подробнее

Презентация по предложению

Собираете информацию? Получите подробную презентацию в удобном формате!

БЕЗ КОМИССИИ ID: 278308 Рейтинг6.1 КлассB

Москва, Марфинский проезд, 4

Фонвизинская → 1.69 км
~ 17 мин
Арендная плата в месяц 2 833 333 ₽ 20 000 ₽/м² в год С учётом НДС
Характеристики 1 700 м² -1 - 2 этаж Готово к въезду
Преимущества
  • Класс B
  • Пешком от метро
  • Кондиционирование и вентиляция
  • Свой паркинг

Сдается в долгосрочную аренду офисный блок класса B площадью 1700 квадр. метров в бизнес-центре... подробнее

Презентация по предложению

Собираете информацию? Получите подробную презентацию в удобном формате!

Посмотреть все похожие предложения
Отнеситесь рационально к процессу поиска нового офиса!

Просто ответьте на 3 вопроса, и наши специалисты сами предложат оптимальные варианты под ваш бюджет

.