8.2
Смотреть все фото
БЕЗ КОМИССИИ ID: 972215 Рейтинг7.7 КлассB+
Бизнес-центр «Лофт 46»

Аренда офиса 350 м²

Москва, улица Фридриха Энгельса, 46 с1

Бауманская → 1.07 км
~ 11 мин
Арендная плата в месяц 1 029 600 ₽ 35 300 ₽/м² в год С учётом НДС

Презентация по предложению

Собираете информацию? Получите подробную презентацию в удобном формате!

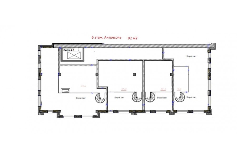
Площадь 350 м²
Состояние Отделка под арендатора
Планировка Кабинетная
Этаж 6

Описание

Преимущества
  • Класс B+
  • Пешком от метро
  • Кондиционирование и вентиляция
Собственник сдает в прямую аренду офисный блок класса B+ площадью 350 кв.м в бизнес-центре "Лофт 46".

Москва, ЦАО, улица Фридриха Энгельса, 46 с1

Удобная локация здания:
- Автомобиль: близость транспортных магистралей, таких как Третье Транспортное Кольцо, Русаковская улица, улица Стромынка и других.
- Ближайшее метро: от метро "Бауманская" всего 14 мин пешком

Офис класса B+:
- Возможность ремонта по предпочтениям арендатора
- Вентиляция: Приточно-вытяжная вентиляция
- Кондиционирование: центральное
- Презентабельный центральный рецепшн
- Круглосуточная охрана и видеонаблюдение


Если предложение предварительно Вам подходит:

1. Мы отправим Вам подробную презентацию с планировкой и фотографиями в течение 10 минут после звонка, чтобы Вы могли поделиться информацией с руководством или с коллегами.
2. Задайте любые вопросы менеджеру по телефону, готовы обсуждать любые предложения по финансовым условиям договора аренды.
3. Оперативно организуем просмотр помещения, договоримся на любое удобное время, подготовим виртуальный тур.

Звоните нам в любое время. По будням мы сможем ответить на Ваши вопросы до 19:00. В выходные или вечернее время мы передадим Ваш контакт нашему менеджеру по аренде.

Коммерческие условия

Арендная плата 583 330 ₽
Ставка арендной платы 35 300 ₽ м²/год
Эксплуатационные расходы Включены в ставку
Налоги С учётом НДС
Тип договора Прямая аренда
Срок договора от 11 месяцев
Размер платежей 1 месяц
Обеспечительный платеж 1 месяц
Статус Сдан

О бизнес-центре

Класс B+
Этажность 8
Лифты Нет
Общая площадь 21 963 м²
Год постройки 1917
Паркинг Наземный
Вентиляция приточно-вытяжная
Кондиционирование центральное
Телекоммуникации Интернет/Телефония

Расположение

Подробная презентацию по предложению

Собираете информацию? Получите подробную презентацию в удобном формате, чтобы обсудить вариант с коллегами или переслать руководству!

Похожие предложения в других зданиях

БЕЗ КОМИССИИ ID: 226281 Рейтинг6.3 КлассB+

Москва, Большая Почтовая улица, 39 с1

Электрозаводская → 1.1 км
~ 11 мин
Арендная плата в месяц 1 000 000 ₽ 30 000 ₽/м² в год С учётом НДС
Характеристики 400 м² 4 - 5 этаж Готово к въезду
Преимущества
  • Класс B+
  • Пешком от метро
  • Кондиционирование и вентиляция
  • Свой паркинг

Предлагаем в долгосрочную прямую аренду офисный блок класса B+ площадью 400 квадр. метров в бизнес-центре... подробнее

Презентация по предложению

Собираете информацию? Получите подробную презентацию в удобном формате!

БЕЗ КОМИССИИ ID: 1260192 Рейтинг8.2 КлассB+

Москва, Спартаковский переулок, 2 с1

Красносельская → 662 м
~ 7 мин
Арендная плата в месяц 928 675 ₽ 36 300 ₽/м² в год С учётом НДС
Характеристики 307 м² 1 - 2 этаж Готово к въезду
Преимущества
  • Класс B+
  • Пешком от метро
  • Кондиционирование и вентиляция
  • Свой паркинг
  • Развитая инфраструктура

Предлагается в долгосрочную аренду офис класса B+ площадью 307 квадратных метров в новом бизнес-центре "Платформа"... подробнее

>

Виртуальный тур

Презентация по предложению

Собираете информацию? Получите подробную презентацию в удобном формате!

ВОЗМОЖНО ОСВОБОЖДЕНИЕ ID: 294821 Рейтинг6.3 КлассB

Москва, Бауманская улица, 58 стр 16

Бауманская → 711 м
~ 7 мин
Арендная плата в месяц 1 106 667 ₽ 33 200 ₽/м² в год С учётом НДС
Характеристики 400 м² 2 этаж Готово к въезду
Преимущества
  • Класс B
  • Пешком от метро
  • Кондиционирование и вентиляция
  • Свой паркинг

Сдаем в прямую аренду офис класса B площадью 400 кв. метров в бизнес-центре... подробнее

Презентация по предложению

Собираете информацию? Получите подробную презентацию в удобном формате!

БЕЗ КОМИССИИ ID: 1325955 Рейтинг7.5 КлассB

Москва, Нижняя Красносельская улица, 40/12 к1

Красносельская → 788 м
~ 8 мин
Арендная плата в месяц 907 500 ₽ 30 000 ₽/м² в год С учётом НДС
Характеристики 363 м² 2 этаж Готово к въезду
Преимущества
  • Класс B
  • Пешком от метро
  • Кондиционирование и вентиляция
  • Свой паркинг

Предлагается в долгосрочную аренду офисное помещение класса B общей площадью 363 кв.м в бизнес-центре "Новь"... подробнее

Презентация по предложению

Собираете информацию? Получите подробную презентацию в удобном формате!

БЕЗ КОМИССИИ ID: 1318175 Рейтинг8.4 КлассB+

Москва, Русаковская улица, 13

Сокольники → 774 м
~ 8 мин
Арендная плата в месяц 982 500 ₽ 30 000 ₽/м² в год С учётом НДС
Характеристики 393 м² 11 этаж Готово к въезду
Преимущества
  • Класс B+
  • Пешком от метро
  • Кондиционирование и вентиляция
  • Свой паркинг
  • Несколько провайдеров связи
  • Развитая инфраструктура

Сдается в долгосрочную аренду помещение под офис класса B+ площадью 393 квадратных метров в бизнес-центре "Бородино"... подробнее

>

Виртуальный тур

Презентация по предложению

Собираете информацию? Получите подробную презентацию в удобном формате!

Посмотреть все похожие предложения
Отнеситесь рационально к процессу поиска нового офиса!

Просто ответьте на 3 вопроса, и наши специалисты сами предложат оптимальные варианты под ваш бюджет

.