8.2
Смотреть все фото
БЕЗ КОМИССИИ ID: 1283177 Рейтинг9.4 КлассА
Бизнес-центр «Лотте Плаза»

Аренда офиса 2012 м²

Москва, Новинский бульвар, 8

Смоленская → 464 м
~ 5 мин
Арендная плата в месяц 13 034 200 ₽ 77 700 ₽/м² в год С учётом НДС

Презентация по предложению

Собираете информацию? Получите подробную презентацию в удобном формате!

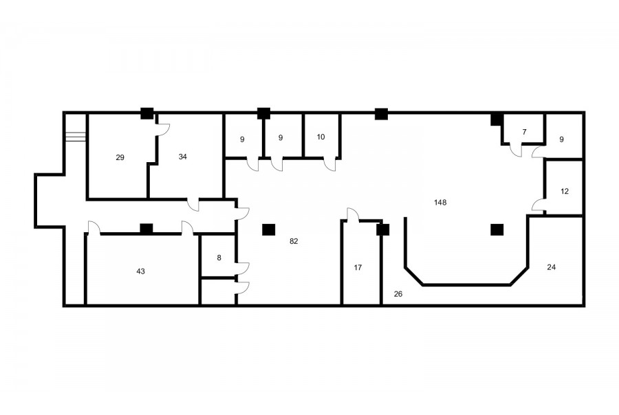
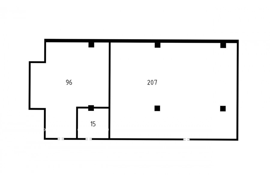
Площадь 2 012 м²
Состояние Готово к въезду
Планировка Смешанная
Этаж 11

Описание

Преимущества
  • Класс А
  • Пешком от метро
  • Кондиционирование и вентиляция
  • Свой паркинг
  • Несколько провайдеров связи
  • Развитая инфраструктура
Предлагается в прямую аренду офисное помещение класса А общей площадью 2434 квадр. метров в бизнес-центре "Лотте Плаза".

Москва, ЦАО, Новинский бульвар, 8

Удобное расположение в пределах Садового кольца:
- Возможность аренды парковочных мест.
- Ближайшее метро: от метро "Смоленская" всего 5 мин пешком

Офис класса А:
- Помещение с отделкой, готово к въезду
- Вентиляция: Приточно-вытяжная вентиляция
- Кондиционирование: центральное
- Презентабельный центральный рецепшн
- Круглосуточная охрана и видеонаблюдение
- Развитая инфраструктура внутри здания


Если предложение предварительно Вам подходит:

1. Мы отправим Вам подробную презентацию с планировкой и фотографиями в течение 10 минут после звонка, чтобы Вы могли поделиться информацией с руководством или с коллегами.
2. Задайте любые вопросы менеджеру по телефону, готовы обсуждать любые предложения по финансовым условиям договора аренды.
3. Проводим показы ежедневно, договоримся на удобное для Вас время. Можем организовать виртуальный тур по офисному блоку.

Вы можете позвонить нам в любое время. Мы ответим на Ваши вопросы по будням до 19:00, а поздно вечером или в выходные сможем передать Ваш контакт нашему менеджеру.

Коммерческие условия

Арендная плата 11 849 340 ₽
Ставка арендной платы 77 700 ₽ м²/год
Эксплуатационные расходы Включены в ставку
Налоги С учётом НДС
Тип договора Прямая аренда
Срок договора от 11 месяцев
Размер платежей 1 месяц
Обеспечительный платеж 2 месяц
Статус Сдан

О бизнес-центре

Класс А
Этажность 21
Лифты Есть
Общая площадь 132 500 м²
Год постройки 2008
Паркинг Подземный
Вентиляция приточно-вытяжная
Кондиционирование центральное
Телекоммуникации Интернет/Телефония

Расположение

Подробная презентацию по предложению

Собираете информацию? Получите подробную презентацию в удобном формате, чтобы обсудить вариант с коллегами или переслать руководству!

Похожие предложения в других зданиях

ВОЗМОЖНО ОСВОБОЖДЕНИЕ ID: 1213385 Рейтинг8.4 КлассА

Москва, улица Арбат, 10

Арбатская → 512 м
~ 5 мин
Арендная плата в месяц 10 478 358 ₽ 68 300 ₽/м² в год С учётом НДС
Характеристики 1 841 м² 2 этаж Готово к въезду
Преимущества
  • Класс А
  • Пешком от метро
  • Кондиционирование и вентиляция
  • Свой паркинг
  • Развитая инфраструктура

Сдаем в долгосрочную прямую аренду офис класса А общей площадью 1841 квадратных метров в бизнес-центре "Мидленд Плаза"... подробнее

Презентация по предложению

Собираете информацию? Получите подробную презентацию в удобном формате!

БЕЗ КОМИССИИ ID: 61043 Рейтинг9.3 КлассА

Москва, Гоголевский бульвар, 11

Кропоткинская → 193 м
~ 3 мин
Арендная плата в месяц 15 547 858 ₽ 86 900 ₽/м² в год С учётом НДС
Характеристики 2 147 м² 6 - 8 этаж Готово к въезду
Преимущества
  • Класс А
  • Пешком от метро
  • Кондиционирование и вентиляция
  • Свой паркинг

Предлагаем в долгосрочную прямую аренду помещение под офис класса А общей площадью 2147 кв.м в бизнес-центре "Гоголевский"... подробнее

Презентация по предложению

Собираете информацию? Получите подробную презентацию в удобном формате!

БЕЗ КОМИССИИ ID: 302430 Рейтинг8.0 КлассB+

Москва, улица Красная Пресня, 24

Краснопресненская → 600 м
~ 6 мин
Арендная плата в месяц 12 250 000 ₽ 70 000 ₽/м² в год С учётом НДС
Характеристики 2 100 м² 5 - 8 этаж Готово к въезду
Преимущества
  • Класс B+
  • Пешком от метро
  • Кондиционирование и вентиляция
  • Свой паркинг
  • Несколько провайдеров связи

Собственник сдает в долгосрочную аренду офис класса B+ площадью 2100 квадратных метров в бизнес-центре "Сибирь"... подробнее

Презентация по предложению

Собираете информацию? Получите подробную презентацию в удобном формате!

БЕЗ КОМИССИИ ID: 262790 Рейтинг8.0 КлассB+

Москва, улица Красная Пресня, 24

Краснопресненская → 600 м
~ 6 мин
Арендная плата в месяц 11 666 667 ₽ 70 000 ₽/м² в год С учётом НДС
Характеристики 2 000 м² 4 - 5 этаж Готово к въезду
Преимущества
  • Класс B+
  • Пешком от метро
  • Кондиционирование и вентиляция
  • Свой паркинг
  • Несколько провайдеров связи

Сдается в прямую аренду помещение под офис класса B+ общей площадью 2000 квадратных метров в бизнес-центре "Сибирь"... подробнее

Презентация по предложению

Собираете информацию? Получите подробную презентацию в удобном формате!

БЕЗ КОМИССИИ ID: 1378827 Рейтинг9.5 КлассА

Москва, Романов переулок, 4

Александровский сад → 392 м
~ 5 мин
Арендная плата в месяц 20 679 000 ₽ 109 800 ₽/м² в год С учётом НДС
Характеристики 2 260 м² 4 этаж Готово к въезду
Преимущества
  • Класс А
  • Пешком от метро
  • Кондиционирование и вентиляция
  • Свой паркинг
  • Развитая инфраструктура

Предлагаем в прямую аренду помещение под офис класса А общей площадью 2260 квадр. метров в бизнес-центре "Романов двор"... подробнее

Презентация по предложению

Собираете информацию? Получите подробную презентацию в удобном формате!

Посмотреть все похожие предложения
Отнеситесь рационально к процессу поиска нового офиса!

Просто ответьте на 3 вопроса, и наши специалисты сами предложат оптимальные варианты под ваш бюджет

.