8.2
Смотреть все фото
БЕЗ КОМИССИИ ID: 269484 Рейтинг9.2 КлассА
Бизнес-центр «Моховая»

Аренда офиса 1844 м²

Москва, улица Воздвиженка, 4/7 с2

Библиотека имени Ленина → 423 м
~ 4 мин
Арендная плата в месяц 15 366 700 ₽ 100 000 ₽/м² в год С учётом НДС

Презентация по предложению

Собираете информацию? Получите подробную презентацию в удобном формате!

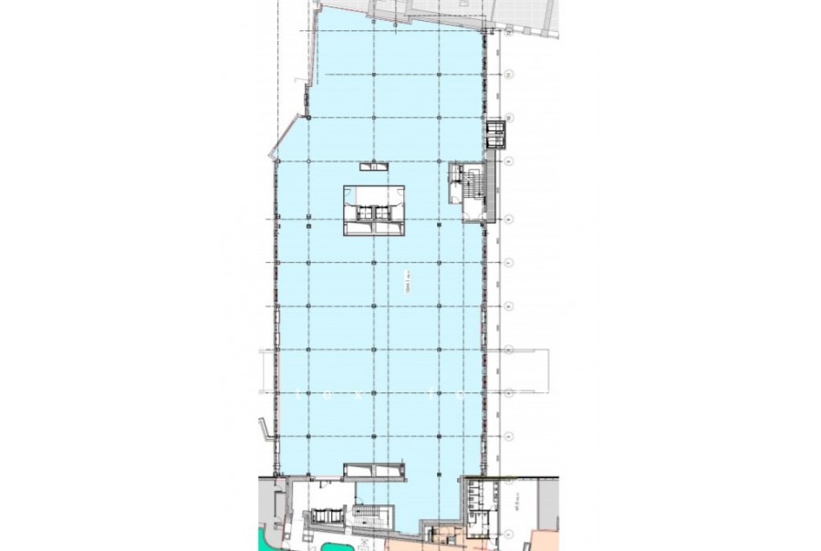
Площадь 1 844 м²
Состояние Готово к въезду
Планировка Открытая
Этаж 2

Описание

Преимущества
  • Класс А
  • Пешком от метро
  • Кондиционирование и вентиляция
  • Свой паркинг
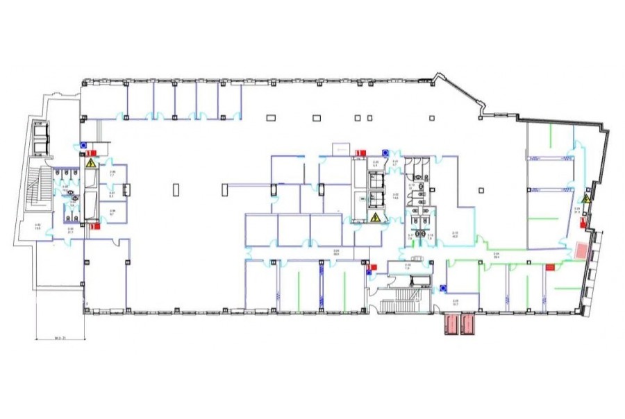
Сдаем в долгосрочную прямую аренду офисный блок класса А общей площадью 1844 кв. метров в историческом бизнес-центре "Моховая".

Москва, ЦАО, улица Воздвиженка, 4/7 с2

Удобное расположение в пределах Садового кольца:
- Возможность аренды парковочных мест.
- Ближайшее метро: от метро "Библиотека имени Ленина" всего 6 мин пешком

Офис класса А:
- Офис с отделкой, полностью готов к аренде
- Вентиляция: Приточно-вытяжная вентиляция
- Кондиционирование: центральное
- Презентабельный центральный рецепшн
- Круглосуточная охрана и видеонаблюдение

Возможность заключения контракта в соответствии с 44ФЗ по госзакупкам.

Что еще можно узнать о предложении:

1. Мы отправим Вам подробную презентацию с планировкой и фотографиями в течение 10 минут после звонка, чтобы Вы могли поделиться информацией с руководством или с коллегами.
2. Ответим на любые Ваши вопросы, готовы обсуждать любые предложения по коммерческим условиям аренды помещения.
3. Проводим показы ежедневно, договоримся на удобное для Вас время. Можем организовать виртуальный тур по офисному блоку.

Звоните нам в любое время. По будням мы сможем ответить на Ваши вопросы до 19:00. В выходные или вечернее время мы передадим Ваш контакт нашему менеджеру по аренде.

Коммерческие условия

Арендная плата 7 873 880 ₽
Ставка арендной платы 100 000 ₽ м²/год
Эксплуатационные расходы Включены в ставку
Налоги С учётом НДС
Тип договора Прямая аренда
Срок договора от 11 месяцев
Размер платежей 1 месяц
Обеспечительный платеж 2 месяц
Статус Сдан

О бизнес-центре

Класс А
Этажность 8
Лифты Есть
Общая площадь 17 000 м²
Год постройки 1899
Паркинг Подземный
Вентиляция приточно-вытяжная
Кондиционирование центральное
Телекоммуникации Интернет/Телефония

Расположение

Подробная презентацию по предложению

Собираете информацию? Получите подробную презентацию в удобном формате, чтобы обсудить вариант с коллегами или переслать руководству!

Похожие предложения в других зданиях

БЕЗ КОМИССИИ ID: 11515 Рейтинг8.9 КлассА

Москва, улица Знаменка, 7 с3

Боровицкая → 270 м
~ 3 мин
Арендная плата в месяц 13 714 133 ₽ 98 900 ₽/м² в год С учётом НДС
Характеристики 1 664 м² 4 этаж Готово к въезду
Преимущества
  • Класс А
  • Пешком от метро
  • Кондиционирование и вентиляция
  • Свой паркинг
  • Несколько провайдеров связи
  • Развитая инфраструктура

Сдается в прямую аренду офисный блок класса А общей площадью 1664 квадр. метров в бизнес-центре "Знаменка"... подробнее

Презентация по предложению

Собираете информацию? Получите подробную презентацию в удобном формате!

БЕЗ КОМИССИИ ID: 1314477 Рейтинг9.9 КлассА

Москва, улица Охотный Ряд, 2

Театральная → 122 м
~ 1 мин
Арендная плата в месяц 14 000 704 ₽ 96 000 ₽/м² в год С учётом НДС
Характеристики 1 751 м² 8 этаж Готово к въезду
Преимущества
  • Класс А
  • Пешком от метро
  • Кондиционирование и вентиляция
  • Свой паркинг
  • Развитая инфраструктура

Предлагаем в аренду офис класса А общей площадью 1751 квадратных метров в бизнес-центре "Москва"... подробнее

Презентация по предложению

Собираете информацию? Получите подробную презентацию в удобном формате!

БЕЗ КОМИССИИ ID: 207602 Рейтинг9.6 КлассА

Москва, улица Петровка, 5

Охотный Ряд → 470 м
~ 5 мин
Арендная плата в месяц 15 317 775 ₽ 89 100 ₽/м² в год С учётом НДС
Характеристики 2 063 м² 3 - 4 этаж Готово к въезду
Преимущества
  • Класс А
  • Пешком от метро
  • Кондиционирование и вентиляция
  • Свой паркинг
  • Несколько провайдеров связи

Предлагается в прямую аренду помещение под офис класса А площадью 2063 кв.м в бизнес-центре "Берлинский Дом"... подробнее

Презентация по предложению

Собираете информацию? Получите подробную презентацию в удобном формате!

БЕЗ КОМИССИИ ID: 251220 Рейтинг9.2 КлассА

Москва, Тверская улица, 16 с1

Пушкинская → 188 м
~ 2 мин
Арендная плата в месяц 13 790 458 ₽ 89 500 ₽/м² в год С учётом НДС
Характеристики 1 849 м² 6 - 7 этаж Под отделку
Преимущества
  • Класс А
  • Пешком от метро
  • Кондиционирование и вентиляция
  • Свой паркинг
  • Развитая инфраструктура

Сдается в долгосрочную прямую аренду офис класса А общей площадью 1849 кв.м в бизнес-центре "Галерея Актер"... подробнее

Презентация по предложению

Собираете информацию? Получите подробную презентацию в удобном формате!

ВОЗМОЖНО ОСВОБОЖДЕНИЕ ID: 269905 Рейтинг9.2 КлассА

Москва, улица Воздвиженка, 4/7 с2

Библиотека имени Ленина → 423 м
~ 4 мин
Арендная плата в месяц 17 116 667 ₽ 100 000 ₽/м² в год С учётом НДС
Характеристики 2 054 м² 8 этаж Готово к въезду
Преимущества
  • Класс А
  • Пешком от метро
  • Кондиционирование и вентиляция
  • Свой паркинг

Предлагается в прямую аренду офисный блок класса А площадью 2054 кв. метров в историческом бизнес-центре "Моховая"... подробнее

Презентация по предложению

Собираете информацию? Получите подробную презентацию в удобном формате!

Посмотреть все похожие предложения
Отнеситесь рационально к процессу поиска нового офиса!

Просто ответьте на 3 вопроса, и наши специалисты сами предложат оптимальные варианты под ваш бюджет

.