8.2
Смотреть все фото
БЕЗ КОМИССИИ ID: 1377802 Рейтинг9.1 КлассB+
Бизнес-центр «Лотте»

Аренда офиса 606 м²

Москва, Профсоюзная улица, 65 к1

Калужская → 309 м
~ 3 мин
Арендная плата в месяц 2 218 000 ₽ 43 900 ₽/м² в год С учётом НДС

Презентация по предложению

Собираете информацию? Получите подробную презентацию в удобном формате!

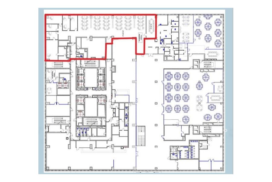
Площадь 606 м²
Состояние Готово к въезду
Планировка Смешанная
Этаж 2

Описание

Преимущества
  • Класс B+
  • Пешком от метро
  • Кондиционирование и вентиляция
  • Свой паркинг
  • Несколько провайдеров связи
  • Развитая инфраструктура
Предлагаем в долгосрочную прямую аренду офисный блок класса B+ общей площадью 606 кв. метров в бизнес-центре "Лотте".

Москва, ЮЗАО, Профсоюзная улица, 65 к1

Удобное расположение здания для всех видов транспорта:
- Автомобиль: близость транспортных магистралей, таких как Севастопольский проспект, Профсоюзная улица и других.
- Возможность аренды парковочных мест.
- Ближайшее метро: от метро "Калужская" всего 3 мин пешком

Офис класса B+:
- Офис с отделкой, полностью готов к аренде
- Вентиляция: Приточно-вытяжная вентиляция
- Кондиционирование: центральное
- Презентабельный центральный ресепшн
- Круглосуточная охрана и видеонаблюдение
- Развитая инфраструктура внутри здания

Возможность заключения контракта в соответствии с 44ФЗ по госзакупкам.

Если предложение предварительно Вам подходит:

1. Мы подготовили презентацию с информацией о помещении, фотографиями и планировкой, чтобы Вы могли поделиться ей с коллегами или руководством. Попросите об этом нашего менеджера по телефону в объявлении.
2. Мы готовы ответить на любые Ваши вопросы о помещении и коммерческих условиях аренды.
3. Оперативно организуем просмотр помещения, договоримся на любое удобное время, подготовим виртуальный тур.

Звоните нам в любое время. По будням мы сможем ответить на Ваши вопросы до 19:00. В выходные или вечернее время мы передадим Ваш контакт нашему менеджеру по аренде.

Коммерческие условия

Арендная плата 2 217 960 ₽
Ставка арендной платы 36 000 ₽ м²/год
Эксплуатационные расходы Включены в ставку
Налоги Без НДС
Тип договора Прямая аренда
Срок договора от 11 месяцев
Размер платежей 1 месяц
Обеспечительный платеж 2 месяц
Статус Свободен

О бизнес-центре

Класс B+
Этажность 22
Лифты Есть
Общая площадь 58 860 м²
Год постройки 2012
Паркинг Подземный
Вентиляция приточно-вытяжная
Кондиционирование центральное
Телекоммуникации Интернет/Телефония

Расположение

Подробная презентацию по предложению

Собираете информацию? Получите подробную презентацию в удобном формате, чтобы обсудить вариант с коллегами или переслать руководству!

Похожие предложения в других зданиях

БЕЗ КОМИССИИ ID: 1304579 Рейтинг9.0 КлассB+

Москва, улица Бутлерова, 17

Калужская → 840 м
~ 8 мин
Арендная плата в месяц 1 626 408 ₽ 33 200 ₽/м² в год С учётом НДС
Характеристики 588 м² 4 этаж Готово к въезду
Преимущества
  • Класс B+
  • Пешком от метро
  • Кондиционирование и вентиляция
  • Свой паркинг

Предлагаем в прямую аренду офис класса B+ площадью 588 квадр. метров в бизнес-центре "NEO GEO"... подробнее

>

Виртуальный тур

Презентация по предложению

Собираете информацию? Получите подробную презентацию в удобном формате!

БЕЗ КОМИССИИ ID: 1380016 Рейтинг9.0 КлассB+

Москва, улица Бутлерова, 17

Калужская → 840 м
~ 8 мин
Арендная плата в месяц 1 500 037 ₽ 30 600 ₽/м² в год С учётом НДС
Характеристики 588 м² 21 этаж Готово к въезду
Преимущества
  • Класс B+
  • Пешком от метро
  • Кондиционирование и вентиляция
  • Свой паркинг

Предлагается в долгосрочную прямую аренду офисное помещение класса B+ общей площадью 588 квадр. метров в бизнес-центре "NEO GEO"... подробнее

Презентация по предложению

Собираете информацию? Получите подробную презентацию в удобном формате!

БЕЗ КОМИССИИ ID: 1317873 Рейтинг9.0 КлассА

Москва, улица Обручева, 23к2 с3

Калужская → 819 м
~ 8 мин
Арендная плата в месяц 1 949 900 ₽ 37 200 ₽/м² в год С учётом НДС
Характеристики 629 м² 4 этаж Под отделку
Преимущества
  • Класс А
  • Пешком от метро
  • Кондиционирование и вентиляция
  • Свой паркинг

Сдается в прямую аренду помещение под офис класса А площадью 629 квадратных метров в бизнес-центре "Geolog"... подробнее

Презентация по предложению

Собираете информацию? Получите подробную презентацию в удобном формате!

БЕЗ КОМИССИИ ID: 1376658 Рейтинг9.0 КлассА

Москва, улица Обручева, 23к2 с3

Калужская → 819 м
~ 8 мин
Арендная плата в месяц 1 948 920 ₽ 39 200 ₽/м² в год С учётом НДС
Характеристики 596 м² 10 этаж Под отделку
Преимущества
  • Класс А
  • Пешком от метро
  • Кондиционирование и вентиляция
  • Свой паркинг

Предлагается в прямую аренду офисное помещение класса А площадью 596 кв. метров в бизнес-центре "Geolog"... подробнее

Презентация по предложению

Собираете информацию? Получите подробную презентацию в удобном формате!

БЕЗ КОМИССИИ ID: 1380081 Рейтинг8.2 КлассB+

Москва, Научный проезд, 17

Калужская → 1.34 км
~ 13 мин
Арендная плата в месяц 2 262 896 ₽ 41 200 ₽/м² в год С учётом НДС
Характеристики 659 м² 4 - 9 этаж Готово к въезду
Преимущества
  • Класс B+
  • Пешком от метро
  • Кондиционирование и вентиляция
  • Свой паркинг

Предлагается в долгосрочную прямую аренду помещение под офис класса B+ площадью 659 квадратных метров в бизнес-центре "9 Акров Фаза II"... подробнее

Презентация по предложению

Собираете информацию? Получите подробную презентацию в удобном формате!

Посмотреть все похожие предложения
Отнеситесь рационально к процессу поиска нового офиса!

Просто ответьте на 3 вопроса, и наши специалисты сами предложат оптимальные варианты под ваш бюджет

.