8.2
Смотреть все фото
БЕЗ КОМИССИИ ID: 278308 Рейтинг6.1 КлассB
Бизнес-центр «Марфинский 4»

Аренда офиса 1700 м²

Москва, Марфинский проезд, 4

Фонвизинская → 1.69 км
~ 17 мин
Арендная плата в месяц 2 833 300 ₽ 20 000 ₽/м² в год С учётом НДС

Презентация по предложению

Собираете информацию? Получите подробную презентацию в удобном формате!

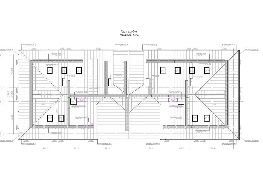
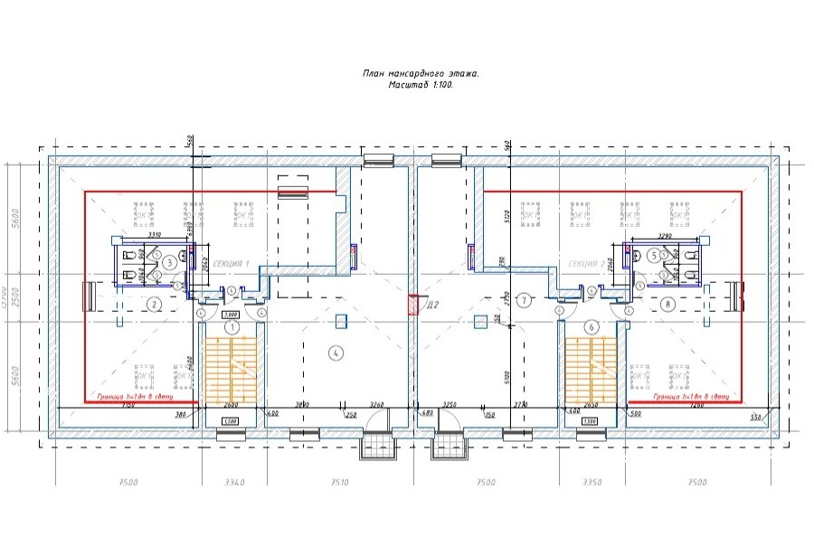
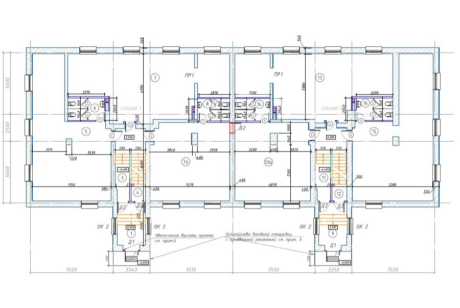
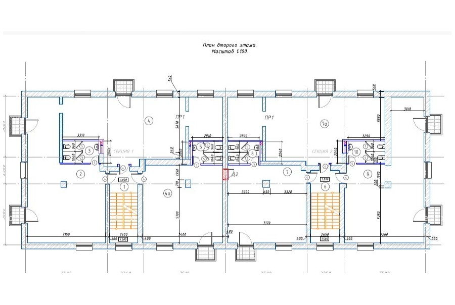
Площадь 1 700 м²
Состояние Готово к въезду
Планировка Открытая
Этаж -1 - 2

Описание

Преимущества
  • Класс B
  • Кондиционирование и вентиляция
  • Свой паркинг
Сдается в долгосрочную аренду офисный блок класса B площадью 1700 квадр. метров в бизнес-центре.

Москва, СВАО, Марфинский проезд, 4

Характеристики местоположения:
- Автомобиль: близость транспортных магистралей, таких как Алтуфьевское шоссе, Дмитровское шоссе и других.
- Возможность аренды парковочных мест.
- Ближайшее метро: от метро "Фонвизинская" можно добраться пешком или на городском транспорте

Офис класса B:
- Офис с отделкой, полностью готов к аренде
- Кондиционирование: сплит-системы


Что еще можно узнать о предложении:

1. Мы подготовили презентацию с информацией о помещении, фотографиями и планировкой, чтобы Вы могли поделиться ей с коллегами или руководством. Попросите об этом нашего менеджера по телефону в объявлении.
2. Задайте любые вопросы менеджеру по телефону, готовы обсуждать любые предложения по финансовым условиям договора аренды.
3. Проводим показы ежедневно, договоримся на удобное для Вас время. Можем организовать виртуальный тур по офисному блоку.

Вы можете позвонить нам в любое время. Мы ответим на Ваши вопросы по будням до 19:00, а поздно вечером или в выходные зафиксируем Ваш контакт и перезвоним в рабочее время.

Коммерческие условия

Арендная плата 2 833 330 ₽
Ставка арендной платы 20 000 ₽ м²/год
Эксплуатационные расходы Включены в ставку
Налоги С учётом НДС
Тип договора Прямая аренда
Срок договора от 11 месяцев
Размер платежей 1 месяц
Обеспечительный платеж 1 месяц
Статус Сдан

О бизнес-центре

Класс B
Этажность 3
Лифты Нет
Общая площадь 2 345 м²
Паркинг Наземный
Вентиляция естественная
Кондиционирование сплит-системы
Телекоммуникации Интернет/Телефония

Расположение

Подробная презентацию по предложению

Собираете информацию? Получите подробную презентацию в удобном формате, чтобы обсудить вариант с коллегами или переслать руководству!

Похожие предложения в других зданиях

ВОЗМОЖНО ОСВОБОЖДЕНИЕ ID: 74389 Рейтинг7.6 КлассB+

Москва, Алтуфьевское шоссе, 1

Владыкино → 661 м
~ 7 мин
Арендная плата в месяц 2 408 333 ₽ 17 000 ₽/м² в год С учётом НДС
Характеристики 1 700 м² 1 - 4 этаж Готово к въезду
Преимущества
  • Класс B+
  • Пешком от метро
  • Кондиционирование и вентиляция
  • Свой паркинг
  • Несколько провайдеров связи
  • Развитая инфраструктура

Сдаем в аренду помещение под офис класса B+ площадью 1700 кв. метров в недавно отреконструированном бизнес-центре "Бета центр"... подробнее

Презентация по предложению

Собираете информацию? Получите подробную презентацию в удобном формате!

БЕЗ КОМИССИИ ID: 21153 Рейтинг7.3 КлассB

Москва, Дмитровское шоссе, 9Б

Тимирязевская → 583 м
~ 6 мин
Арендная плата в месяц 2 156 167 ₽ 17 000 ₽/м² в год С учётом НДС
Характеристики 1 522 м² 2 этаж Готово к въезду
Преимущества
  • Класс B
  • Пешком от метро
  • Кондиционирование и вентиляция
  • Свой паркинг
  • Несколько провайдеров связи

Предлагаем в долгосрочную аренду помещение под офис класса B общей площадью 1522 квадратных метров в бизнес-центре... подробнее

Презентация по предложению

Собираете информацию? Получите подробную презентацию в удобном формате!

БЕЗ КОМИССИИ ID: 254271 Рейтинг7.7 КлассB

Москва, улица Добролюбова, 3 с1

Бутырская → 857 м
~ 9 мин
Арендная плата в месяц 2 734 917 ₽ 18 500 ₽/м² в год С учётом НДС
Характеристики 1 774 м² 4 - 5 этаж Готово к въезду
Преимущества
  • Класс B
  • Пешком от метро
  • Кондиционирование и вентиляция
  • Свой паркинг
  • Развитая инфраструктура

Предлагаем в прямую аренду помещение под офис класса B площадью 1774 квадр. метров в недавно отреконструированном бизнес-центре "Бастион Капитал"... подробнее

Презентация по предложению

Собираете информацию? Получите подробную презентацию в удобном формате!

БЕЗ КОМИССИИ ID: 449406 Рейтинг7.7 КлассB

Москва, улица Добролюбова, 3 с1

Бутырская → 857 м
~ 9 мин
Арендная плата в месяц 2 620 833 ₽ 18 500 ₽/м² в год С учётом НДС
Характеристики 1 700 м² 3 - 5 этаж Готово к въезду
Преимущества
  • Класс B
  • Пешком от метро
  • Кондиционирование и вентиляция
  • Свой паркинг
  • Развитая инфраструктура

Сдаем в долгосрочную прямую аренду офисное помещение класса B площадью 1700 кв.м в недавно отреконструированном бизнес-центре "Бастион Капитал"... подробнее

Презентация по предложению

Собираете информацию? Получите подробную презентацию в удобном формате!

БЕЗ КОМИССИИ ID: 1318127 Рейтинг5.8 КлассB

Москва, Огородный проезд, 5А с4

Бутырская → 420 м
~ 5 мин
Арендная плата в месяц 2 329 000 ₽ 17 000 ₽/м² в год Упрощённая система налогообложения
Характеристики 1 644 м² 4 этаж Готово к въезду
Преимущества
  • Класс B
  • Пешком от метро
  • Кондиционирование и вентиляция
  • Свой паркинг
  • Развитая инфраструктура

Предлагаем в долгосрочную прямую аренду помещение под офис класса B площадью 1644 кв.м в бизнес-центре "Огородный"... подробнее

Презентация по предложению

Собираете информацию? Получите подробную презентацию в удобном формате!

Посмотреть все похожие предложения
Отнеситесь рационально к процессу поиска нового офиса!

Просто ответьте на 3 вопроса, и наши специалисты сами предложат оптимальные варианты под ваш бюджет