8.2
Смотреть все фото
БЕЗ КОМИССИИ ID: 1054300 Рейтинг7.0 КлассB+
Бизнес-центр «Нагорное»

Аренда офиса 1227 м²

Москва, МКАД, 88-й километр

Алтуфьево → 4.01 км
~ 20 мин
Арендная плата в месяц 1 227 000 ₽ 12 000 ₽/м² в год С учётом НДС

Презентация по предложению

Собираете информацию? Получите подробную презентацию в удобном формате!

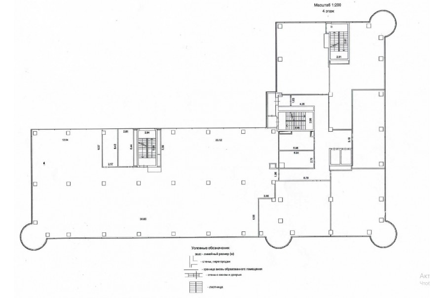
Площадь 1 227 м²
Состояние Под отделку
Планировка Открытая
Этаж 4 - 5

Описание

Преимущества
  • Класс B+
  • Кондиционирование и вентиляция
  • Свой паркинг
Предлагаем в долгосрочную аренду помещение под офис класса B+ общей площадью 1227 кв. метров в бизнес-центре "Нагорное".

Москва, СВАО, Московская кольцевая автодорога, 88-й километр

Характеристики местоположения:
- Автомобиль: близость транспортных магистралей, таких как МКАД и других.
- Возможность аренды парковочных мест.
- Ближайшее метро: метро "Алтуфьево", далее городской транспорт до здания

Офис класса B+:
- Помещение без отделки
- Вентиляция: Приточно-вытяжная вентиляция
- Кондиционирование: центральное
- Круглосуточная охрана и видеонаблюдение

Возможность заключения контракта в соответствии с 44ФЗ по госзакупкам.

Что еще можно узнать о предложении:

1. Мы отправим Вам подробную презентацию с планировкой и фотографиями в течение 10 минут после звонка, чтобы Вы могли поделиться информацией с руководством или с коллегами.
2. Мы готовы ответить на любые Ваши вопросы о помещении и коммерческих условиях аренды.
3. Покажем помещение в удобное для Вас время с менеджером в здании, при необходимости подготовим виртуальный тур.

Вы можете позвонить нам в любое время. Мы ответим на Ваши вопросы по будням до 19:00, а поздно вечером или в выходные сможем передать Ваш контакт нашему менеджеру.

Коммерческие условия

Арендная плата 1 227 000 ₽
Ставка арендной платы 12 000 ₽ м²/год
Эксплуатационные расходы Включены в ставку
Налоги С учётом НДС
Тип договора Прямая аренда
Срок договора от 11 месяцев
Размер платежей 1 месяц
Обеспечительный платеж 1 месяц
Статус Сдан

О бизнес-центре

Класс B+
Этажность 8
Лифты Есть
Общая площадь 9 950 м²
Год постройки 2013
Паркинг Наземный
Вентиляция приточно-вытяжная
Кондиционирование центральное
Телекоммуникации Интернет/Телефония

Расположение

Подробная презентацию по предложению

Собираете информацию? Получите подробную презентацию в удобном формате, чтобы обсудить вариант с коллегами или переслать руководству!

Похожие предложения в других зданиях

БЕЗ КОМИССИИ ID: 14322 Рейтинг7.1 КлассB

Москва, Высоковольтный проезд, 1 с49

Отрадное → 1.98 км
~ 20 мин
Арендная плата в месяц 1 540 000 ₽ 13 200 ₽/м² в год С учётом НДС
Характеристики 1 400 м² 1 этаж Под отделку
Преимущества
  • Класс B
  • Пешком от метро
  • Кондиционирование и вентиляция
  • Свой паркинг
  • Несколько провайдеров связи
  • Развитая инфраструктура

Предлагаем в прямую аренду офисное помещение класса B общей площадью 1400 кв.м в бизнес-центре "Вольт центр"... подробнее

Презентация по предложению

Собираете информацию? Получите подробную презентацию в удобном формате!

БЕЗ КОМИССИИ ID: 874120 Рейтинг5.3 КлассB

Москва, Угличская улица, 12 к1

Алтуфьево → 1.43 км
~ 14 мин
Арендная плата в месяц 1 175 000 ₽ 12 000 ₽/м² в год С учётом НДС
Характеристики 1 175 м² 2 этаж Готово к въезду
Преимущества
  • Класс B
  • Пешком от метро
  • Кондиционирование и вентиляция
  • Свой паркинг

Предлагается в долгосрочную аренду офисное помещение класса B площадью 1175 кв. метров в бизнес-центре "Лианозово"... подробнее

Презентация по предложению

Собираете информацию? Получите подробную презентацию в удобном формате!

БЕЗ КОМИССИИ ID: 257873 Рейтинг7.5 КлассB

Москва, Алтуфьевское шоссе, 44

Отрадное → 2.03 км
~ 10 мин
Арендная плата в месяц 1 300 000 ₽ 12 000 ₽/м² в год С учётом НДС
Характеристики 1 300 м² 3 этаж Отделка под арендатора
Преимущества
  • Класс B
  • Кондиционирование и вентиляция
  • Свой паркинг
  • Развитая инфраструктура

Сдается в прямую аренду помещение под офис класса B общей площадью 1300 квадратных метров в бизнес-центре "Альтеза"... подробнее

Презентация по предложению

Собираете информацию? Получите подробную презентацию в удобном формате!

БЕЗ КОМИССИИ ID: 190873 Рейтинг7.5 КлассB

Москва, Таёжная улица, 1

Бабушкинская → 4.97 км
~ 21 мин
Арендная плата в месяц 1 300 000 ₽ 12 000 ₽/м² в год С учётом НДС
Характеристики 1 300 м² 2 этаж Готово к въезду
Преимущества
  • Класс B
  • Кондиционирование и вентиляция
  • Свой паркинг

Сдаем в долгосрочную аренду помещение под офис класса B площадью 1300 кв.м в бизнес-центре... подробнее

Презентация по предложению

Собираете информацию? Получите подробную презентацию в удобном формате!

БЕЗ КОМИССИИ ID: 110955 Рейтинг6.5 КлассB

Москва, Дмитровское шоссе, 157

Алтуфьево → 3.9 км
~ 14 мин
Арендная плата в месяц 1 462 500 ₽ 13 500 ₽/м² в год С учётом НДС
Характеристики 1 300 м² 1 этаж Готово к въезду
Преимущества
  • Класс B
  • Кондиционирование и вентиляция
  • Свой паркинг
  • Развитая инфраструктура

Сдаем в долгосрочную аренду офис класса B площадью 1300 кв. метров в бизнес-центре "Гефест"... подробнее

Презентация по предложению

Собираете информацию? Получите подробную презентацию в удобном формате!

Посмотреть все похожие предложения
Отнеситесь рационально к процессу поиска нового офиса!

Просто ответьте на 3 вопроса, и наши специалисты сами предложат оптимальные варианты под ваш бюджет

.