8.2

Виртуальный тур

Смотреть все фото
БЕЗ КОМИССИИ ID: 1264796 Рейтинг6.9 КлассB+

Москва, Настасьинский переулок, 7

Тверская → 424 м
~ 4 мин
Арендная плата в месяц 1 757 500 ₽ 36 300 ₽/м² в год С учётом НДС

Презентация по предложению

Собираете информацию? Получите подробную презентацию в удобном формате!

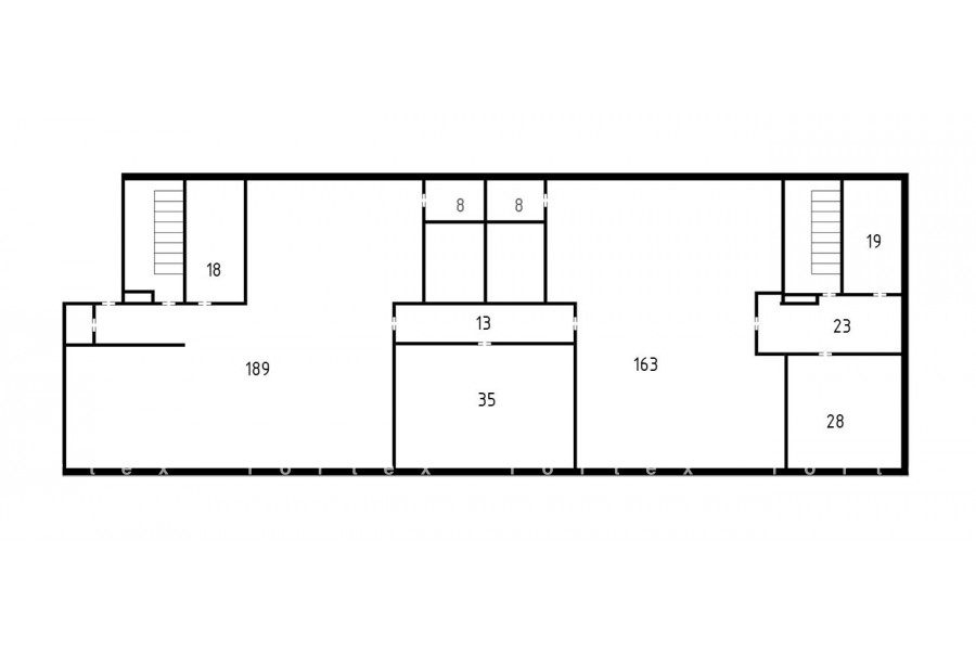
Площадь 581 м²
Состояние Готово к въезду
Планировка Открытая
Этаж 3

Описание

Преимущества
  • Класс B+
  • Пешком от метро
  • Кондиционирование и вентиляция
Предлагаем в долгосрочную аренду офис класса B+ общей площадью 581 квадратных метров в бизнес-центре.

Москва, ЦАО, Настасьинский переулок, 7

Удобное расположение в пределах Садового кольца:
- Ближайшее метро: от метро "Тверская" всего 4 мин пешком

Офис класса B+:
- Помещение с отделкой, готово к въезду
- Вентиляция: Приточно-вытяжная вентиляция


Если предложение предварительно Вам подходит:

1. Мы отправим Вам подробную презентацию с планировкой и фотографиями в течение 10 минут после звонка, чтобы Вы могли поделиться информацией с руководством или с коллегами.
2. Мы готовы ответить на любые Ваши вопросы о помещении и коммерческих условиях аренды.
3.

Вы можете позвонить нам в любое время. Мы ответим на Ваши вопросы по будням до 19:00, а поздно вечером или в выходные сможем передать Ваш контакт нашему менеджеру.

Коммерческие условия

Арендная плата 1 597 750 ₽
Ставка арендной платы 36 300 ₽ м²/год
Эксплуатационные расходы Включены в ставку
Налоги С учётом НДС
Тип договора Прямая аренда
Срок договора от 11 месяцев
Размер платежей 1 месяц
Обеспечительный платеж 1 месяц
Статус Сдан

О бизнес-центре

Класс B+
Этажность 4
Лифты Есть
Общая площадь 3 400 м²
Год постройки 1970
Паркинг Стихийный
Вентиляция приточно-вытяжная
Кондиционирование возможность установки
Телекоммуникации Интернет/Телефония

Расположение

Подробная презентацию по предложению

Собираете информацию? Получите подробную презентацию в удобном формате, чтобы обсудить вариант с коллегами или переслать руководству!

Похожие предложения в других зданиях

БЕЗ КОМИССИИ ID: 238667 Рейтинг8.3 КлассА

Москва, Тверская улица, 22/2 к1

Маяковская → 468 м
~ 5 мин
Арендная плата в месяц 1 529 000 ₽ 33 000 ₽/м² в год С учётом НДС
Характеристики 556 м² 5 этаж Готово к въезду
Преимущества
  • Класс А
  • Пешком от метро
  • Кондиционирование и вентиляция
  • Свой паркинг
  • Несколько провайдеров связи
  • Развитая инфраструктура

Предлагаем в долгосрочную аренду офисное помещение класса А общей площадью 556 квадр. метров в бизнес-центре "Чайка Плаза 5"... подробнее

Презентация по предложению

Собираете информацию? Получите подробную презентацию в удобном формате!

БЕЗ КОМИССИИ ID: 931087 Рейтинг6.4 КлассB

Москва, улица Малая Дмитровка, 23/15 с1

Пушкинская → 640 м
~ 6 мин
Арендная плата в месяц 1 826 500 ₽ 39 000 ₽/м² в год С учётом НДС
Характеристики 562 м² 1 этаж Готово к въезду
Преимущества
  • Класс B
  • Пешком от метро
  • Кондиционирование и вентиляция
  • Свой паркинг

Предлагается в долгосрочную прямую аренду офисное помещение класса B площадью 562 квадр. метров в бизнес-центре... подробнее

Презентация по предложению

Собираете информацию? Получите подробную презентацию в удобном формате!

ВОЗМОЖНО ОСВОБОЖДЕНИЕ ID: 186960 Рейтинг7.8 КлассB+

Москва, Тверская улица, 23/12

Маяковская → 443 м
~ 4 мин
Арендная плата в месяц 1 278 750 ₽ 31 000 ₽/м² в год С учётом НДС
Характеристики 495 м² 4 - 5 этаж Готово к въезду
Преимущества
  • Класс B+
  • Пешком от метро
  • Кондиционирование и вентиляция

Предлагаем в долгосрочную прямую аренду офисное помещение класса B+ общей площадью 495 кв. метров в недавно отреконструированном бизнес-центре... подробнее

Презентация по предложению

Собираете информацию? Получите подробную презентацию в удобном формате!

БЕЗ КОМИССИИ ID: 207750 Рейтинг7.9 КлассB+

Москва, улица Малая Дмитровка, 16 с6

Пушкинская → 722 м
~ 7 мин
Арендная плата в месяц 1 573 000 ₽ 33 000 ₽/м² в год С учётом НДС
Характеристики 572 м² 2 - 3 этаж Готово к въезду
Преимущества
  • Класс B+
  • Пешком от метро
  • Кондиционирование и вентиляция
  • Свой паркинг
  • Несколько провайдеров связи

Предлагается в прямую аренду офисное помещение класса B+ общей площадью 572 кв. метров в бизнес-центре... подробнее

Презентация по предложению

Собираете информацию? Получите подробную презентацию в удобном формате!

БЕЗ КОМИССИИ ID: 20918 Рейтинг4.8 КлассB

Москва, улица Большая Дмитровка, 34

Тверская → 247 м
~ 2 мин
Арендная плата в месяц 1 498 600 ₽ 35 400 ₽/м² в год С учётом НДС
Характеристики 508 м² 1 - 2 этаж Под отделку
Преимущества
  • Класс B
  • Пешком от метро
  • Кондиционирование и вентиляция
  • Несколько провайдеров связи

Сдается в долгосрочную аренду офисный блок класса B общей площадью 508 кв. метров в бизнес-центре... подробнее

Презентация по предложению

Собираете информацию? Получите подробную презентацию в удобном формате!

Посмотреть все похожие предложения
Отнеситесь рационально к процессу поиска нового офиса!

Просто ответьте на 3 вопроса, и наши специалисты сами предложат оптимальные варианты под ваш бюджет