8.2
Смотреть все фото
БЕЗ КОМИССИИ ID: 1325950 Рейтинг7.5 КлассB
Бизнес-центр «Новь»

Аренда офиса 1551 м²

Москва, Нижняя Красносельская улица, 40/12 к1

Красносельская → 788 м
~ 8 мин
Арендная плата в месяц 3 878 500 ₽ 30 000 ₽/м² в год С учётом НДС

Презентация по предложению

Собираете информацию? Получите подробную презентацию в удобном формате!

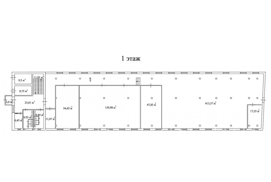
Площадь 1 551 м²
Состояние Готово к въезду
Планировка Кабинетная
Этаж 1 - 3

Описание

Преимущества
  • Класс B
  • Пешком от метро
  • Кондиционирование и вентиляция
  • Свой паркинг
Собственник сдает в аренду офисное здание класса B общей площадью 1551 кв.м.

Москва, ЦАО, Нижняя Красносельская улица, 40/12 к1

Удобная локация здания:
- Автомобиль: близость транспортных магистралей, таких как Русаковская улица, Третье Транспортное Кольцо и других.
- Возможность аренды парковочных мест.
- Ближайшее метро: от метро "Красносельская" всего 8 мин пешком

Офис класса B:
- Помещение готово к въезду
- Вентиляция: Приточно-вытяжная вентиляция
- Кондиционирование: центральное

Возможность заключения контракта в соответствии с 44ФЗ по госзакупкам.

Что еще можно узнать о предложении:

1. Мы отправим Вам подробную презентацию с планировкой и фотографиями в течение 10 минут после звонка, чтобы Вы могли поделиться информацией с руководством или с коллегами.
2. Мы готовы ответить на любые Ваши вопросы о помещении и коммерческих условиях аренды.
3. Проводим показы ежедневно, договоримся на удобное для Вас время. Можем организовать виртуальный тур по офисному блоку.

Звоните нам в любое время. По будням мы сможем ответить на Ваши вопросы до 19:00. В выходные или вечернее время мы передадим Ваш контакт нашему менеджеру по аренде.

Коммерческие условия

Арендная плата 3 878 530 ₽
Ставка арендной платы 30 000 ₽ м²/год
Эксплуатационные расходы Включены в ставку
Налоги С учётом НДС
Тип договора Субаренда
Срок договора от 11 месяцев
Размер платежей 1 месяц
Обеспечительный платеж 1 месяц
Статус Сдан

О бизнес-центре

Класс B
Этажность 10
Лифты Есть
Общая площадь 2 150 м²
Год постройки 2007
Паркинг Наземный
Вентиляция приточно-вытяжная
Кондиционирование центральное
Телекоммуникации Интернет/Телефония

Расположение

Подробная презентацию по предложению

Собираете информацию? Получите подробную презентацию в удобном формате, чтобы обсудить вариант с коллегами или переслать руководству!

Похожие предложения в других зданиях

БЕЗ КОМИССИИ ID: 285745 Рейтинг8.6 КлассА

Москва, Ольховская улица, 4 к1

Комсомольская → 874 м
~ 9 мин
Арендная плата в месяц 4 400 000 ₽ 33 000 ₽/м² в год С учётом НДС
Характеристики 1 600 м² 2 этаж Готово к въезду
Преимущества
  • Класс А
  • Пешком от метро
  • Кондиционирование и вентиляция
  • Свой паркинг

Предлагается в долгосрочную прямую аренду офисный блок класса А площадью 1600 квадратных метров в новом бизнес-центре "Мельникофф Хаус"... подробнее

Презентация по предложению

Собираете информацию? Получите подробную презентацию в удобном формате!

БЕЗ КОМИССИИ ID: 111031 Рейтинг8.3 КлассА

Москва, Нижняя Красносельская улица, 39 с1

Бауманская → 425 м
~ 4 мин
Арендная плата в месяц 4 240 000 ₽ 30 000 ₽/м² в год С учётом НДС
Характеристики 1 696 м² 5 - 7 этаж Готово к въезду
Преимущества
  • Класс А
  • Пешком от метро
  • Кондиционирование и вентиляция
  • Свой паркинг
  • Развитая инфраструктура

Сдается в долгосрочную аренду офисный блок класса А площадью 1696 квадр. метров в бизнес-центре "PALLAU-NK"... подробнее

Презентация по предложению

Собираете информацию? Получите подробную презентацию в удобном формате!

БЕЗ КОМИССИИ ID: 77946 Рейтинг8.2 КлассB+

Москва, Спартаковский переулок, 2 с1

Красносельская → 662 м
~ 7 мин
Арендная плата в месяц 4 025 000 ₽ 32 200 ₽/м² в год С учётом НДС
Характеристики 1 500 м² 1 - 2 этаж Готово к въезду
Преимущества
  • Класс B+
  • Пешком от метро
  • Кондиционирование и вентиляция
  • Свой паркинг
  • Развитая инфраструктура

Предлагается в долгосрочную аренду офисный блок класса B+ общей площадью 1500 кв.м в новом бизнес-центре "Платформа"... подробнее

Презентация по предложению

Собираете информацию? Получите подробную презентацию в удобном формате!

БЕЗ КОМИССИИ ID: 306031 Рейтинг7.0 КлассB

Москва, Аптекарский переулок, 4

Бауманская → 769 м
~ 8 мин
Арендная плата в месяц 3 281 250 ₽ 26 200 ₽/м² в год С учётом НДС
Характеристики 1 500 м² 3 - 4 этаж Готово к въезду
Преимущества
  • Класс B
  • Пешком от метро
  • Кондиционирование и вентиляция
  • Свой паркинг

Предлагается в долгосрочную аренду помещение под офис класса B площадью 1500 кв.м в бизнес-центре... подробнее

Презентация по предложению

Собираете информацию? Получите подробную презентацию в удобном формате!

БЕЗ КОМИССИИ ID: 296969 Рейтинг6.2 КлассB

Москва, Новая Переведеновская улица, 6 с3

Бауманская → 1.16 км
~ 12 мин
Арендная плата в месяц 3 262 500 ₽ 27 000 ₽/м² в год С учётом НДС
Характеристики 1 450 м² 1 - 3 этаж Отделка под арендатора
Преимущества
  • Класс B
  • Пешком от метро
  • Кондиционирование и вентиляция
  • Свой паркинг

Предлагаем в долгосрочную аренду офисное помещение класса B общей площадью 1450 квадратных метров в историческом бизнес-центре... подробнее

Презентация по предложению

Собираете информацию? Получите подробную презентацию в удобном формате!

Посмотреть все похожие предложения
Отнеситесь рационально к процессу поиска нового офиса!

Просто ответьте на 3 вопроса, и наши специалисты сами предложат оптимальные варианты под ваш бюджет

.