8.2
Смотреть все фото
ВОЗМОЖНО ОСВОБОЖДЕНИЕ ID: 287513 Рейтинг7.5 КлассB
Бизнес-центр «Новь»

Аренда офиса 4754 м²

Москва, Нижняя Красносельская улица, 40/12 к1

Красносельская → 788 м
~ 8 мин
Арендная плата в месяц по запросу потенциального арендатора Срок освобождение в течение 3 месяцев

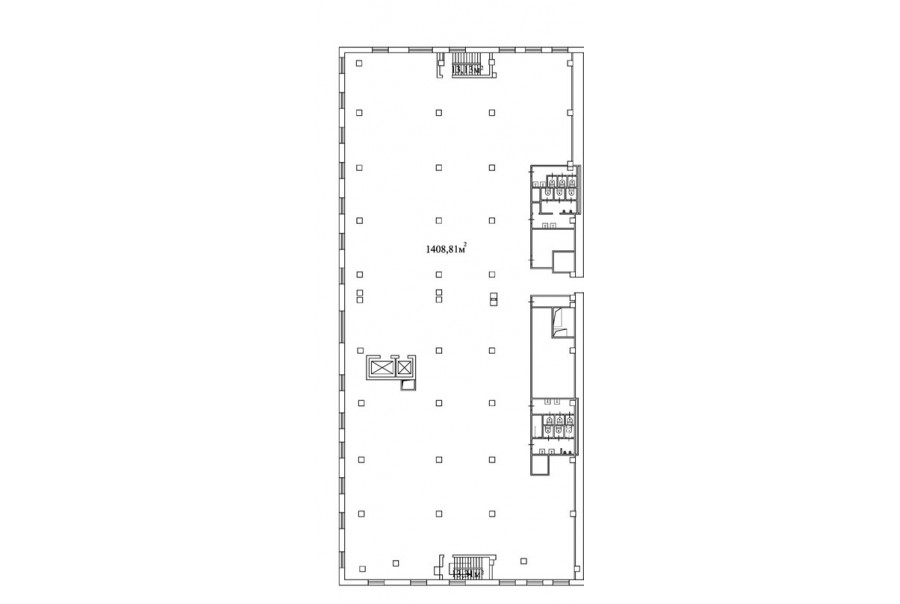
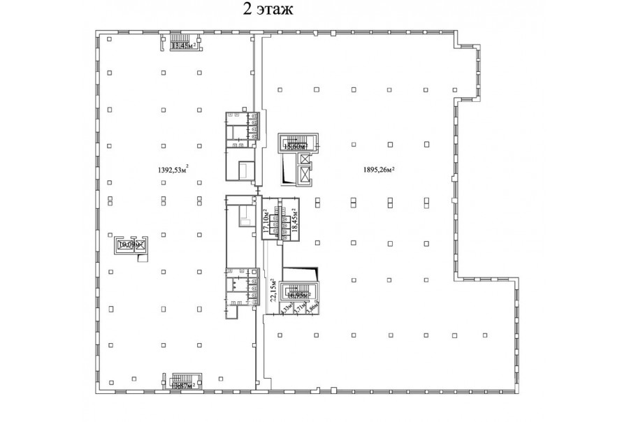
Информация по помещению

Ознакомьтесь с дополнительной информацией по помещению и коммерческим условиям!

Площадь 4 754 м²
Планировка Кабинетная
Этаж 2 - 3

Описание

Преимущества
  • Класс B
  • Пешком от метро
  • Кондиционирование и вентиляция
  • Свой паркинг

Коммерческие условия

Арендная плата по запросу
Ставка арендной платы по запросу
Эксплуатационные расходы Включены в ставку
Налоги С учётом НДС
Тип договора Прямая аренда
Срок договора от 11 месяцев
Размер платежей 1 месяц
Обеспечительный платеж 1 месяц
Статус Сдан

О бизнес-центре

Класс B
Этажность 10
Лифты Есть
Общая площадь 2 150 м²
Год постройки 2007
Паркинг Наземный
Вентиляция приточно-вытяжная
Кондиционирование центральное
Телекоммуникации Интернет/Телефония

Расположение

Информация по помещению

Получите дополнительную информацию по помещению и коммерческом условиям!

Похожие предложения в других зданиях

БЕЗ КОМИССИИ ID: 17674 Рейтинг8.6 КлассА

Москва, Ольховская улица, 4 к1

Комсомольская → 874 м
~ 9 мин
Арендная плата в месяц 11 089 583 ₽ 25 000 ₽/м² в год С учётом НДС
Характеристики 5 323 м² 1 - 2 этаж Готово к въезду
Преимущества
  • Класс А
  • Пешком от метро
  • Кондиционирование и вентиляция
  • Свой паркинг

Собственник сдает в долгосрочную прямую аренду помещение под офис класса А общей площадью 5323 кв. метров в новом бизнес-центре "Мельникофф Хаус"... подробнее

Презентация по предложению

Собираете информацию? Получите подробную презентацию в удобном формате!

БЕЗ КОМИССИИ ID: 216642 Рейтинг8.3 КлассА

Москва, Нижняя Красносельская улица, 39 с1

Бауманская → 425 м
~ 4 мин
Арендная плата в месяц 10 125 000 ₽ 27 000 ₽/м² в год С учётом НДС
Характеристики 4 500 м² 7 - 9 этаж Готово к въезду
Преимущества
  • Класс А
  • Пешком от метро
  • Кондиционирование и вентиляция
  • Свой паркинг
  • Развитая инфраструктура

Сдаем в долгосрочную аренду офисный блок класса А общей площадью 4500 кв. метров в бизнес-центре "PALLAU-NK"... подробнее

Презентация по предложению

Собираете информацию? Получите подробную презентацию в удобном формате!

БЕЗ КОМИССИИ ID: 1300964 Рейтинг6.2 КлассB

Москва, 1-й Красносельский переулок, 11

Красносельская → 769 м
~ 8 мин
Арендная плата в месяц 11 354 088 ₽ 30 300 ₽/м² в год С учётом НДС
Характеристики 4 490 м² -1 - 6 этаж Готово к въезду
Преимущества
  • Класс B
  • Пешком от метро
  • Свой паркинг

Предлагаем в долгосрочную прямую аренду офисный блок класса B площадью 4490 кв. метров в историческом бизнес-центре... подробнее

Презентация по предложению

Собираете информацию? Получите подробную презентацию в удобном формате!

БЕЗ КОМИССИИ ID: 1300143 Рейтинг7.7 КлассB

Москва, Русаковская улица, 13 с2

Сокольники → 825 м
~ 8 мин
Арендная плата в месяц 10 961 213 ₽ 29 300 ₽/м² в год С учётом НДС
Характеристики 4 490 м² 1 - 7 этаж Готово к въезду
Преимущества
  • Класс B
  • Пешком от метро
  • Кондиционирование и вентиляция
  • Свой паркинг

Предлагаем в прямую аренду офисное здание класса B площадью 4490 кв. метров. .. подробнее

Презентация по предложению

Собираете информацию? Получите подробную презентацию в удобном формате!

БЕЗ КОМИССИИ ID: 1373847 Рейтинг7.0 КлассB

Москва, Верхняя Красносельская улица, 2/1 с1

Красносельская → 773 м
~ 8 мин
Арендная плата в месяц 12 741 000 ₽ 36 000 ₽/м² в год Упрощённая система налогообложения
Характеристики 4 247 м² 6 - 8 этаж Готово к въезду
Преимущества
  • Класс B
  • Пешком от метро
  • Кондиционирование и вентиляция
  • Свой паркинг

Предлагаем в прямую аренду офис класса B площадью 4247 кв.м в бизнес-центре... подробнее

Презентация по предложению

Собираете информацию? Получите подробную презентацию в удобном формате!

Посмотреть все похожие предложения
Отнеситесь рационально к процессу поиска нового офиса!

Просто ответьте на 3 вопроса, и наши специалисты сами предложат оптимальные варианты под ваш бюджет

.