8.2
Смотреть все фото
БЕЗ КОМИССИИ ID: 304981 Рейтинг5.5 КлассB

Москва, Новочерёмушкинская улица, 25

Академическая → 1.05 км
~ 11 мин
Арендная плата в месяц 1 965 000 ₽ 12 000 ₽/м² в год С учётом НДС

Презентация по предложению

Собираете информацию? Получите подробную презентацию в удобном формате!

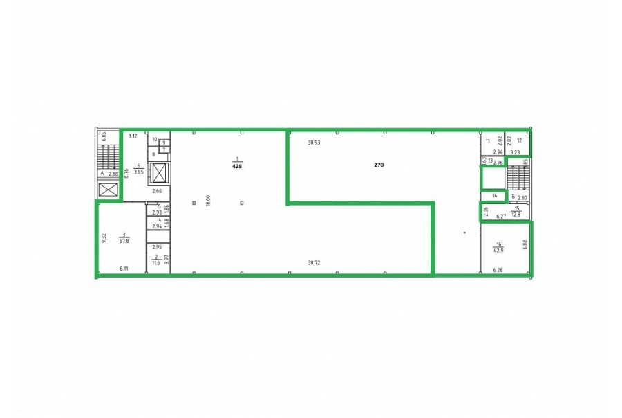
Площадь 1 965 м²
Состояние Под отделку
Планировка Открытая
Этаж 3 - 4

Описание

Преимущества
  • Класс B
  • Пешком от метро
  • Кондиционирование и вентиляция
Собственник сдает в долгосрочную прямую аренду офис класса B площадью 1965 кв. метров в бизнес-центре.

Москва, ЮЗАО, Новочерёмушкинская улица, 25

Удобная локация здания:
- Автомобиль: близость транспортных магистралей, таких как Профсоюзная улица, Севастопольский проспект и других.
- Ближайшее метро: от метро "Академическая" всего 10 мин пешком

Офис класса B:
- Помещение без отделки
- Кондиционирование: центральное


Что еще можно узнать о предложении:

1. Получите презентацию в течение 10 минут в Whatsapp или на почту с фотографиями и планировкой, чтобы обсудить данный вариант с коллегами или переслать руководству. Для этого позвоните по телефону, указанному в объявлении.
2. Ответим на любые Ваши вопросы, готовы обсуждать любые предложения по коммерческим условиям аренды помещения.
3. Оперативно организуем просмотр помещения, договоримся на любое удобное время, подготовим виртуальный тур.

Вы можете позвонить нам в любое время. Мы ответим на Ваши вопросы по будням до 19:00, а поздно вечером или в выходные сможем передать Ваш контакт нашему менеджеру.

Коммерческие условия

Арендная плата 1 965 000 ₽
Ставка арендной платы 12 000 ₽ м²/год
Эксплуатационные расходы Включены в ставку
Налоги С учётом НДС
Тип договора Прямая аренда
Срок договора от 11 месяцев
Размер платежей 1 месяц
Обеспечительный платеж 1 месяц
Статус Сдан

О бизнес-центре

Класс B
Этажность 6
Лифты Есть
Общая площадь 6 486 м²
Год постройки 1978
Паркинг Стихийный
Вентиляция естественная
Кондиционирование центральное
Телекоммуникации Интернет/Телефония

Расположение

Подробная презентацию по предложению

Собираете информацию? Получите подробную презентацию в удобном формате, чтобы обсудить вариант с коллегами или переслать руководству!

Похожие предложения в других зданиях

БЕЗ КОМИССИИ ID: 185540 Рейтинг3.9 КлассB

Москва, Большая Черёмушкинская улица, 36 к2

Профсоюзная → 1.44 км
~ 14 мин
Арендная плата в месяц 2 250 000 ₽ 13 500 ₽/м² в год С учётом НДС
Характеристики 2 000 м² 1 - 3 этаж Готово к въезду
Преимущества
  • Класс B
  • Пешком от метро

Предлагается в долгосрочную прямую аренду офис класса B общей площадью 2000 квадратных метров в бизнес-центре... подробнее

Презентация по предложению

Собираете информацию? Получите подробную презентацию в удобном формате!

БЕЗ КОМИССИИ ID: 1041909 Рейтинг4.7 КлассB

Москва, улица Гримау, 10А с1

Академическая → 425 м
~ 4 мин
Арендная плата в месяц 2 091 917 ₽ 13 000 ₽/м² в год С учётом НДС
Характеристики 1 931 м² 2 - 4 этаж Готово к въезду
Преимущества
  • Класс B
  • Пешком от метро
  • Кондиционирование и вентиляция
  • Свой паркинг

Сдаем в прямую аренду офисное помещение класса B площадью 1931 квадратных метров в бизнес-центре... подробнее

Презентация по предложению

Собираете информацию? Получите подробную презентацию в удобном формате!

БЕЗ КОМИССИИ ID: 179933 Рейтинг5.8 КлассB

Москва, улица Намёткина, 8 с1

Новые Черемушки → 888 м
~ 9 мин
Арендная плата в месяц 1 949 333 ₽ 13 600 ₽/м² в год С учётом НДС
Характеристики 1 720 м² 2 - 4 этаж Готово к въезду
Преимущества
  • Класс B
  • Пешком от метро
  • Кондиционирование и вентиляция
  • Свой паркинг

Собственник сдает в долгосрочную прямую аренду офисный блок класса B площадью 1720 квадратных метров в бизнес-центре... подробнее

Презентация по предложению

Собираете информацию? Получите подробную презентацию в удобном формате!

БЕЗ КОМИССИИ ID: 190982 Рейтинг8.5 КлассB

Москва, Болотниковская улица, 18 к1

Нахимовский проспект → 600 м
~ 6 мин
Арендная плата в месяц 2 068 000 ₽ 13 200 ₽/м² в год С учётом НДС
Характеристики 1 880 м² 1 - 2 этаж Готово к въезду
Преимущества
  • Класс B
  • Пешком от метро
  • Кондиционирование и вентиляция
  • Свой паркинг

Сдается в долгосрочную аренду офис класса B площадью 1880 кв. метров в историческом бизнес-центре... подробнее

Презентация по предложению

Собираете информацию? Получите подробную презентацию в удобном формате!

Посмотреть все похожие предложения
Отнеситесь рационально к процессу поиска нового офиса!

Просто ответьте на 3 вопроса, и наши специалисты сами предложат оптимальные варианты под ваш бюджет

.