8.2
Смотреть все фото
БЕЗ КОМИССИИ ID: 1373021 Рейтинг8.0 КлассА
Бизнес-центр «Opus»

Продажа офиса 150 м²

Москва, Дербеневская набережная, 1 с8

Пролетарская → 1.06 км
~ 11 мин
Стоимость 99.9 млн ₽ 666 000 ₽/м²

Презентация по предложению

Собираете информацию? Получите подробную презентацию в удобном формате!

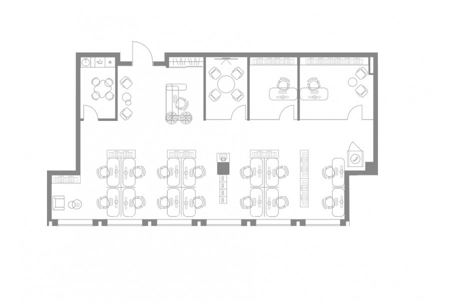
Площадь 150 м²
Состояние Под отделку
Планировка Смешанная
Этаж 12

Описание

Преимущества
  • Класс А
  • Пешком от метро
  • Новое строительство
  • Кондиционирование и вентиляция
В продаже офисное помещение площадью 150 кв. метров в бизнес-центре "Opus".

Помещение можно адаптировать под любой бизнес благодаря функциональной планировке - идеальный баланс комфорта и экономической выгоды. Оптимальное решение для стабильного бизнеса или выгодных инвестиций.

Офис класса А:
- Офис в состоянии shell & core
- Вентиляция: Приточно-вытяжная вентиляция
- Кондиционирование: центральное

О офисном центре:
Москва, ЮАО, Дербеневская набережная, 1 с8

Удобная локация здания:
- Автомобиль: близость транспортных магистралей, таких как Садовое Кольцо и других.
- Возможность аренды парковочных мест.
- Ближайшее метро: от метро "Пролетарская" всего 11 мин пешком



Если данное предложение подходит Вашему запросу:

1. Мы отправим Вам подробную презентацию с планировкой и фотографиями в течение 10 минут после звонка, чтобы Вы могли поделиться информацией с руководством или с коллегами.
2. Ответим на любые Ваши вопросы, готовы обсуждать любые предложения по коммерческим условиям продажи помещения.

Вы можете позвонить нам в любое время. Мы ответим на Ваши вопросы по будням до 19:00, а поздно вечером или в выходные сможем передать Ваш контакт нашему менеджеру.

О бизнес-центре

Класс А
Этажность 13
Лифты Есть
Общая площадь 36 500 м²
Год постройки 2025
Паркинг Гостевой
Вентиляция приточно-вытяжная
Кондиционирование центральное
Телекоммуникации Интернет/Телефония

Расположение

Подробная презентацию по предложению

Собираете информацию? Получите подробную презентацию в удобном формате, чтобы обсудить вариант с коллегами или переслать руководству!

Похожие предложения в других зданиях

БЕЗ КОМИССИИ ID: 993820 Рейтинг7.6 КлассB

Москва, 1-й Кожевнический переулок, 8

Павелецкая → 887 м
~ 9 мин
Стоимость 589 999 800 ₽ 226 900 ₽/м²
Характеристики 2 600 м² -1 - 4 этаж Готово к въезду
Преимущества
  • Класс B
  • Пешком от метро
  • Кондиционирование и вентиляция
  • Свой паркинг

В продаже офисный блок площадью 2600 кв. метров в недавно отреконструированном бизнес-центре. .. подробнее

Презентация по предложению

Собираете информацию? Получите подробную презентацию в удобном формате!

БЕЗ КОМИССИИ ID: 1319087 Рейтинг8.1 КлассB+

Москва, Летниковская улица, 10 с2

Павелецкая → 1.02 км
~ 10 мин
Стоимость 638 550 000 ₽ 270 000 ₽/м²
Характеристики 2 365 м² 2 - 3 этаж Готово к въезду
Преимущества
  • Класс B+
  • Пешком от метро
  • Кондиционирование и вентиляция
  • Свой паркинг
  • Развитая инфраструктура

В продаже офисный блок площадью 2365 квадратных метров в бизнес-центре "Святогор-2". .. подробнее

Презентация по предложению

Собираете информацию? Получите подробную презентацию в удобном формате!

БЕЗ КОМИССИИ ID: 1319086 Рейтинг8.1 КлассB+

Москва, Летниковская улица, 10 с2

Павелецкая → 1.02 км
~ 10 мин
Стоимость 435 120 000 ₽ 370 000 ₽/м²
Характеристики 1 176 м² 5 этаж Готово к въезду
Преимущества
  • Класс B+
  • Пешком от метро
  • Кондиционирование и вентиляция
  • Свой паркинг
  • Развитая инфраструктура

Продается офисное помещение площадью 1176 кв. метров в бизнес-центре "Святогор-2". .. подробнее

Презентация по предложению

Собираете информацию? Получите подробную презентацию в удобном формате!

БЕЗ КОМИССИИ ID: 1319085 Рейтинг8.1 КлассB+

Москва, Летниковская улица, 10 с2

Павелецкая → 1.02 км
~ 10 мин
Стоимость 325 325 000 ₽ 275 000 ₽/м²
Характеристики 1 183 м² 3 этаж Готово к въезду
Преимущества
  • Класс B+
  • Пешком от метро
  • Кондиционирование и вентиляция
  • Свой паркинг
  • Развитая инфраструктура

Продается офисное помещение общей площадью 1183 кв.м в бизнес-центре "Святогор-2". .. подробнее

Презентация по предложению

Собираете информацию? Получите подробную презентацию в удобном формате!

БЕЗ КОМИССИИ ID: 1319084 Рейтинг8.1 КлассB+

Москва, Летниковская улица, 10 с2

Павелецкая → 1.02 км
~ 10 мин
Стоимость 325 325 000 ₽ 275 000 ₽/м²
Характеристики 1 183 м² 2 этаж Готово к въезду
Преимущества
  • Класс B+
  • Пешком от метро
  • Кондиционирование и вентиляция
  • Свой паркинг
  • Развитая инфраструктура

В продаже офис площадью 1183 квадратных метров в бизнес-центре "Святогор-2". .. подробнее

Презентация по предложению

Собираете информацию? Получите подробную презентацию в удобном формате!

Посмотреть все похожие предложения
Отнеситесь рационально к процессу поиска нового офиса!

Просто ответьте на 3 вопроса, и наши специалисты сами предложат оптимальные варианты под ваш бюджет

.