8.2
Смотреть все фото
БЕЗ КОМИССИИ ID: 910783 Рейтинг5.5 КлассB

Москва, Партизанская улица, 10

Молодежная → 1.26 км
~ 13 мин
Арендная плата в месяц 2 143 300 ₽ 20 000 ₽/м² в год С учётом НДС

Презентация по предложению

Собираете информацию? Получите подробную презентацию в удобном формате!

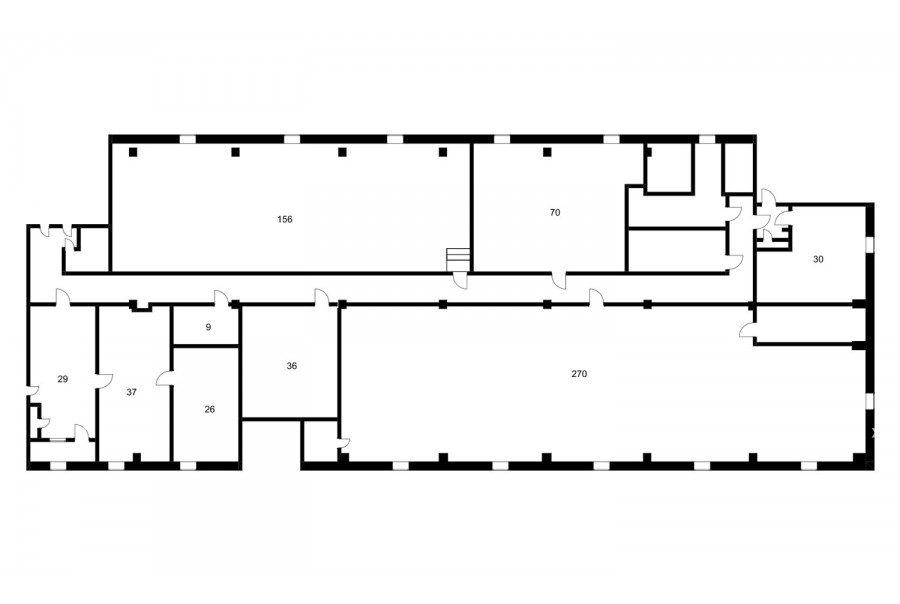
Площадь 1 286 м²
Состояние Готово к въезду
Планировка Смешанная
Этаж -1 - 1

Описание

Преимущества
  • Класс B
  • Пешком от метро
  • Кондиционирование и вентиляция
Сдаем в прямую аренду офис класса B общей площадью 1286 кв.м в бизнес-центре.

Москва, ЗАО, Партизанская улица, 10

Удобная локация здания:
- Автомобиль: близость транспортных магистралей, таких как Рублевское шоссе, Можайское шоссе и других.
- Ближайшее метро: от метро "Молодежная" всего 16 мин пешком

Офис класса B:
- Помещение готово к въезду
- Кондиционирование: центральное


Если предложение предварительно Вам подходит:

1. Получите презентацию в течение 10 минут в Whatsapp или на почту с фотографиями и планировкой, чтобы обсудить данный вариант с коллегами или переслать руководству. Для этого позвоните по телефону, указанному в объявлении.
2. Задайте любые вопросы менеджеру по телефону, готовы обсуждать любые предложения по финансовым условиям договора аренды.
3. Оперативно организуем просмотр помещения, договоримся на любое удобное время, подготовим виртуальный тур.

Звоните нам в любое время. По будням мы сможем ответить на Ваши вопросы до 19:00. В выходные или вечернее время мы передадим Ваш контакт нашему менеджеру по аренде.

Коммерческие условия

Арендная плата 2 143 330 ₽
Ставка арендной платы 20 000 ₽ м²/год
Эксплуатационные расходы Включены в ставку
Налоги С учётом НДС
Тип договора Прямая аренда
Срок договора от 11 месяцев
Размер платежей 1 месяц
Обеспечительный платеж 1 месяц
Статус Сдан

О бизнес-центре

Класс B
Этажность 4
Лифты Нет
Общая площадь 4 877 м²
Год постройки 1984
Паркинг Стихийный
Вентиляция естественная
Кондиционирование центральное
Телекоммуникации Интернет/Телефония

Расположение

Подробная презентацию по предложению

Собираете информацию? Получите подробную презентацию в удобном формате, чтобы обсудить вариант с коллегами или переслать руководству!

Похожие предложения в других зданиях

БЕЗ КОМИССИИ ID: 280148 Рейтинг7.0 КлассB

Москва, Партизанская улица, 25

Молодежная → 815 м
~ 8 мин
Арендная плата в месяц 2 083 333 ₽ 20 000 ₽/м² в год С учётом НДС
Характеристики 1 250 м² 6 этаж Готово к въезду
Преимущества
  • Класс B
  • Пешком от метро
  • Кондиционирование и вентиляция
  • Развитая инфраструктура

Сдаем в прямую аренду офис класса B площадью 1250 кв. метров в историческом бизнес-центре... подробнее

Презентация по предложению

Собираете информацию? Получите подробную презентацию в удобном формате!

БЕЗ КОМИССИИ ID: 70000 Рейтинг8.5 КлассА

Москва, Беловежская улица, 4

Молодежная → 5.13 км
~ 22 мин
Арендная плата в месяц 2 100 000 ₽ 21 000 ₽/м² в год С учётом НДС
Характеристики 1 200 м² 3 этаж Готово к въезду
Преимущества
  • Класс А
  • Кондиционирование и вентиляция
  • Свой паркинг
  • Несколько провайдеров связи

Сдаем в прямую аренду офисный блок класса А общей площадью 1200 квадр. метров в бизнес-центре "Западные Ворота"... подробнее

Презентация по предложению

Собираете информацию? Получите подробную презентацию в удобном формате!

БЕЗ КОМИССИИ ID: 276059 Рейтинг8.5 КлассB+

Москва, Верейская улица, 29 с34

Давыдково → 1.54 км
~ 15 мин
Арендная плата в месяц 2 250 000 ₽ 20 000 ₽/м² в год С учётом НДС
Характеристики 1 350 м² 6 этаж Под отделку
Преимущества
  • Класс B+
  • Пешком от метро
  • Новое строительство
  • Кондиционирование и вентиляция
  • Свой паркинг

Предлагаем в долгосрочную аренду офисное помещение класса B+ общей площадью 1350 кв.м в современном бизнес-центре "Верейская Плаза IV"... подробнее

Презентация по предложению

Собираете информацию? Получите подробную презентацию в удобном формате!

БЕЗ КОМИССИИ ID: 1304928 Рейтинг6.7 КлассB

Москва, Осенняя улица, 23

Крылатское → 1.18 км
~ 12 мин
Арендная плата в месяц 2 499 000 ₽ 21 400 ₽/м² в год С учётом НДС
Характеристики 1 400 м² 10 этаж Готово к въезду
Преимущества
  • Класс B
  • Пешком от метро
  • Кондиционирование и вентиляция
  • Свой паркинг
  • Развитая инфраструктура

Сдается в долгосрочную аренду офисное помещение класса B общей площадью 1400 квадратных метров в бизнес-центре... подробнее

Презентация по предложению

Собираете информацию? Получите подробную презентацию в удобном формате!

БЕЗ КОМИССИИ ID: 9105 Рейтинг4.3 КлассB

Москва, Островная улица, 2

Крылатское → 5.74 км
~ 35 мин
Арендная плата в месяц 1 895 833 ₽ 17 500 ₽/м² в год С учётом НДС
Характеристики 1 300 м² 3 этаж Готово к въезду
Преимущества
  • Класс B
  • Кондиционирование и вентиляция
  • Свой паркинг
  • Развитая инфраструктура

Сдается в долгосрочную прямую аренду помещение под офис класса B площадью 1300 квадр. метров в бизнес-центре... подробнее

Презентация по предложению

Собираете информацию? Получите подробную презентацию в удобном формате!

Посмотреть все похожие предложения
Отнеситесь рационально к процессу поиска нового офиса!

Просто ответьте на 3 вопроса, и наши специалисты сами предложат оптимальные варианты под ваш бюджет

.