8.2
Смотреть все фото
БЕЗ КОМИССИИ ID: 273016 Рейтинг5.2 КлассB
Бизнес-центр «Полковая 3 с9»

Аренда офиса 3500 м²

Москва, Полковая улица, 3 с9

Марьина Роща → 882 м
~ 9 мин
Арендная плата в месяц 3 791 700 ₽ 13 000 ₽/м² в год С учётом НДС

Презентация по предложению

Собираете информацию? Получите подробную презентацию в удобном формате!

Площадь 3 500 м²
Состояние Готово к въезду
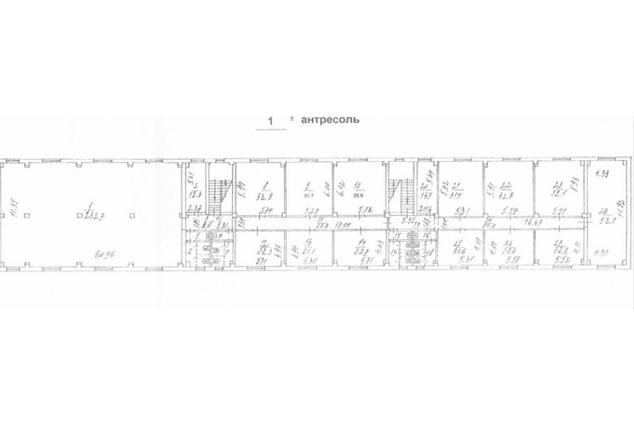
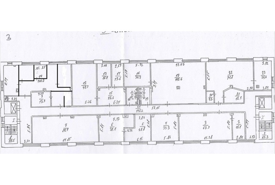
Планировка Кабинетная
Этаж 1 - 4

Описание

Преимущества
  • Класс B
  • Пешком от метро
Собственник сдает в долгосрочную прямую аренду помещение под офис класса B общей площадью 3500 кв.м в бизнес-центре.

Москва, СВАО, Полковая улица, 3 с9

Удобная локация здания:
- Автомобиль: близость транспортных магистралей, таких как Бутырская улица, Проспект Мира, Третье Транспортное Кольцо и других.
- Ближайшее метро: от метро "Марьина Роща" всего 10 мин пешком

Офис класса B:
- Офис с отделкой, полностью готов к аренде


Что еще можно узнать о предложении:

1. Получите презентацию в течение 10 минут в Whatsapp или на почту с фотографиями и планировкой, чтобы обсудить данный вариант с коллегами или переслать руководству. Для этого позвоните по телефону, указанному в объявлении.
2. Ответим на любые Ваши вопросы, готовы обсуждать любые предложения по коммерческим условиям аренды помещения.
3. Покажем помещение в удобное для Вас время с менеджером в здании, при необходимости подготовим виртуальный тур.

Вы можете позвонить нам в любое время. Мы ответим на Ваши вопросы по будням до 19:00, а поздно вечером или в выходные сможем передать Ваш контакт нашему менеджеру.

Коммерческие условия

Арендная плата 3 791 670 ₽
Ставка арендной платы 13 000 ₽ м²/год
Эксплуатационные расходы Включены в ставку
Налоги С учётом НДС
Тип договора Прямая аренда
Срок договора от 11 месяцев
Размер платежей 1 месяц
Обеспечительный платеж 1 месяц
Статус Сдан

О бизнес-центре

Класс B
Этажность 4
Лифты Нет
Общая площадь 1 523 м²
Год постройки 1971
Паркинг Наземный
Вентиляция приточно-вытяжная
Кондиционирование сплит-системы
Телекоммуникации Интернет/Телефония

Расположение

Подробная презентацию по предложению

Собираете информацию? Получите подробную презентацию в удобном формате, чтобы обсудить вариант с коллегами или переслать руководству!

Похожие предложения в других зданиях

БЕЗ КОМИССИИ ID: 277731 Рейтинг5.3 КлассB

Москва, Полковая улица, 3 с3

Марьина Роща → 837 м
~ 8 мин
Арендная плата в месяц 3 977 500 ₽ 12 900 ₽/м² в год С учётом НДС
Характеристики 3 700 м² этаж Готово к въезду
Преимущества
  • Класс B
  • Пешком от метро
  • Кондиционирование и вентиляция
  • Свой паркинг

Предлагается в долгосрочную прямую аренду офисное помещение класса B площадью 3700 кв.м в бизнес-центре... подробнее

Презентация по предложению

Собираете информацию? Получите подробную презентацию в удобном формате!

БЕЗ КОМИССИИ ID: 243593 Рейтинг7.0 КлассB

Москва, 3-я Мытищинская улица, 8

Алексеевская → 981 м
~ 10 мин
Арендная плата в месяц 3 500 000 ₽ 12 000 ₽/м² в год С учётом НДС
Характеристики 3 500 м² 1 - 5 этаж Готово к въезду
Преимущества
  • Класс B
  • Пешком от метро
  • Кондиционирование и вентиляция
  • Свой паркинг

Предлагаем в долгосрочную прямую аренду офис класса B общей площадью 3500 кв.м в историческом бизнес-центре... подробнее

Презентация по предложению

Собираете информацию? Получите подробную презентацию в удобном формате!

Посмотреть все похожие предложения
Отнеситесь рационально к процессу поиска нового офиса!

Просто ответьте на 3 вопроса, и наши специалисты сами предложат оптимальные варианты под ваш бюджет

.