8.2
Смотреть все фото
БЕЗ КОМИССИИ ID: 277731 Рейтинг5.3 КлассB
Бизнес-центр «Полковая 3 с3»

Аренда офиса 3700 м²

Москва, Полковая улица, 3 с3

Марьина Роща → 837 м
~ 8 мин
Арендная плата в месяц 3 977 500 ₽ 12 900 ₽/м² в год С учётом НДС

Презентация по предложению

Собираете информацию? Получите подробную презентацию в удобном формате!

Площадь 3 700 м²
Состояние Готово к въезду
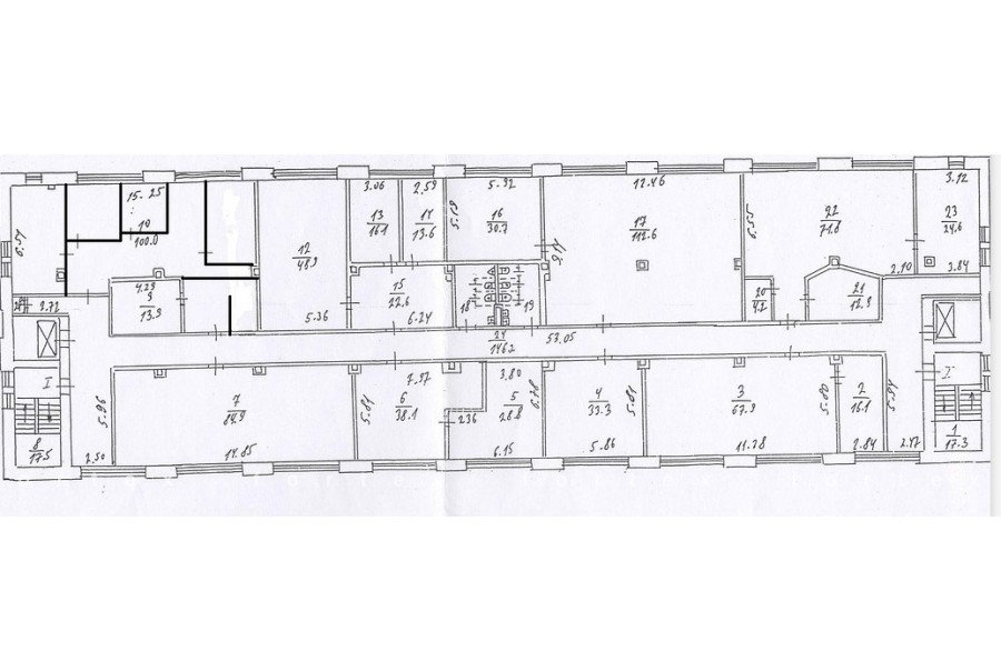
Планировка Смешанная
Этаж

Описание

Преимущества
  • Класс B
  • Пешком от метро
  • Кондиционирование и вентиляция
  • Свой паркинг
Предлагается в долгосрочную прямую аренду офисное помещение класса B площадью 3700 кв.м в бизнес-центре.

Москва, СВАО, Полковая улица, 3 с3

Удобная локация здания:
- Автомобиль: близость транспортных магистралей, таких как Бутырская улица, Третье Транспортное Кольцо, Дмитровское шоссе, Проспект Мира и других.
- Возможность аренды парковочных мест.
- Ближайшее метро: от метро "Марьина Роща" всего 10 мин пешком

Офис класса B:
- Офис с отделкой, полностью готов к аренде
- Кондиционирование: сплит-системы

Возможность заключения контракта в соответствии с 44ФЗ по госзакупкам.

Если предложение предварительно Вам подходит:

1. Мы подготовили презентацию с информацией о помещении, фотографиями и планировкой, чтобы Вы могли поделиться ей с коллегами или руководством. Попросите об этом нашего менеджера по телефону в объявлении.
2. Мы готовы ответить на любые Ваши вопросы о помещении и коммерческих условиях аренды.
3. Оперативно организуем просмотр помещения с менеджерами на объекте или подготовим виртуальный тур.

Звоните нам в любое время. По будням мы сможем ответить на Ваши вопросы до 19:00. В выходные или вечернее время мы передадим Ваш контакт нашему менеджеру по аренде.

Коммерческие условия

Арендная плата 3 977 500 ₽
Ставка арендной платы 12 900 ₽ м²/год
Эксплуатационные расходы Включены в ставку
Налоги С учётом НДС
Тип договора Прямая аренда
Срок договора от 11 месяцев
Размер платежей 1 месяц
Обеспечительный платеж 1 месяц
Статус Сдан

О бизнес-центре

Класс B
Этажность 6
Лифты Нет
Общая площадь 3 839 м²
Год постройки 1971
Паркинг Наземный
Вентиляция естественная
Кондиционирование сплит-системы
Телекоммуникации Интернет/Телефония

Расположение

Подробная презентацию по предложению

Собираете информацию? Получите подробную презентацию в удобном формате, чтобы обсудить вариант с коллегами или переслать руководству!

Похожие предложения в других зданиях

БЕЗ КОМИССИИ ID: 273016 Рейтинг5.2 КлассB

Москва, Полковая улица, 3 с9

Марьина Роща → 882 м
~ 9 мин
Арендная плата в месяц 3 791 667 ₽ 13 000 ₽/м² в год С учётом НДС
Характеристики 3 500 м² 1 - 4 этаж Готово к въезду
Преимущества
  • Класс B
  • Пешком от метро

Собственник сдает в долгосрочную прямую аренду помещение под офис класса B общей площадью 3500 кв.м в бизнес-центре... подробнее

Презентация по предложению

Собираете информацию? Получите подробную презентацию в удобном формате!

БЕЗ КОМИССИИ ID: 243593 Рейтинг7.0 КлассB

Москва, 3-я Мытищинская улица, 8

Алексеевская → 981 м
~ 10 мин
Арендная плата в месяц 3 500 000 ₽ 12 000 ₽/м² в год С учётом НДС
Характеристики 3 500 м² 1 - 5 этаж Готово к въезду
Преимущества
  • Класс B
  • Пешком от метро
  • Кондиционирование и вентиляция
  • Свой паркинг

Предлагаем в долгосрочную прямую аренду офис класса B общей площадью 3500 кв.м в историческом бизнес-центре... подробнее

Презентация по предложению

Собираете информацию? Получите подробную презентацию в удобном формате!

Посмотреть все похожие предложения
Отнеситесь рационально к процессу поиска нового офиса!

Просто ответьте на 3 вопроса, и наши специалисты сами предложат оптимальные варианты под ваш бюджет

.