8.2
Смотреть все фото
БЕЗ КОМИССИИ ID: 1126298 Рейтинг7.5 КлассB
Бизнес-центр «Пост Плаза»

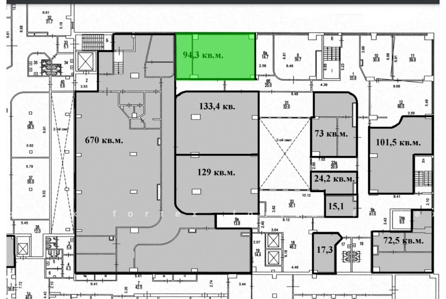
Аренда офиса 1026 м²

Москва, Большая Почтовая улица, 26В с2

Электрозаводская → 664 м
~ 7 мин
Арендная плата в месяц 1 829 700 ₽ 21 400 ₽/м² в год С учётом НДС

Презентация по предложению

Собираете информацию? Получите подробную презентацию в удобном формате!

Площадь 1 026 м²
Состояние Готово к въезду
Планировка Смешанная
Этаж 2

Описание

Преимущества
  • Класс B
  • Пешком от метро
  • Кондиционирование и вентиляция
  • Свой паркинг
  • Несколько провайдеров связи
  • Развитая инфраструктура
Сдается в долгосрочную прямую аренду офисный блок класса B общей площадью 1026 кв. метров в недавно отреконструированном бизнес-центре "Пост Плаза".

Москва, ЦАО, Большая Почтовая улица, 26В с2

Удобная локация здания:
- Автомобиль: близость транспортных магистралей, таких как улица Стромынка, Третье Транспортное Кольцо, Большая Черкизовская улица, Русаковская улица и других.
- Возможность аренды парковочных мест.
- Ближайшее метро: от метро "Электрозаводская" всего 8 мин пешком

Офис класса B:
- Помещение готово к въезду
- Вентиляция: Приточно-вытяжная вентиляция
- Кондиционирование: центральное
- Круглосуточная охрана и видеонаблюдение
- Развитая инфраструктура внутри здания

Возможность заключения контракта в соответствии с 44ФЗ по госзакупкам.

Если данное предложение подходит Вашему запросу:

1. Получите презентацию в течение 10 минут в Whatsapp или на почту с фотографиями и планировкой, чтобы обсудить данный вариант с коллегами или переслать руководству. Для этого позвоните по телефону, указанному в объявлении.
2. Мы готовы ответить на любые Ваши вопросы о помещении и коммерческих условиях аренды.
3. Покажем помещение в удобное для Вас время с менеджером в здании, при необходимости подготовим виртуальный тур.

Звоните нам в любое время. По будням мы сможем ответить на Ваши вопросы до 19:00. В выходные или вечернее время мы передадим Ваш контакт нашему менеджеру по аренде.

Коммерческие условия

Арендная плата 1 512 500 ₽
Ставка арендной платы 21 400 ₽ м²/год
Эксплуатационные расходы Включены в ставку
Налоги С учётом НДС
Тип договора Прямая аренда
Срок договора от 11 месяцев
Размер платежей 1 месяц
Обеспечительный платеж 2 месяц
Статус Сдан

О бизнес-центре

Класс B
Этажность 6
Лифты Есть
Общая площадь 13 118 м²
Год постройки 1982
Паркинг Наземный
Вентиляция приточно-вытяжная
Кондиционирование центральное
Телекоммуникации Интернет/Телефония

Расположение

Подробная презентацию по предложению

Собираете информацию? Получите подробную презентацию в удобном формате, чтобы обсудить вариант с коллегами или переслать руководству!

Похожие предложения в других зданиях

БЕЗ КОМИССИИ ID: 8834 Рейтинг7.5 КлассB+

Москва, Большая Семеновская улица, 32 с1

Электрозаводская → 377 м
~ 4 мин
Арендная плата в месяц 1 750 000 ₽ 21 000 ₽/м² в год С учётом НДС
Характеристики 1 000 м² 8 этаж Готово к въезду
Преимущества
  • Класс B+
  • Пешком от метро
  • Кондиционирование и вентиляция
  • Свой паркинг
  • Развитая инфраструктура

Собственник сдает в долгосрочную прямую аренду помещение под офис класса B+ площадью 1000 кв.м в недавно отреконструированном бизнес-центре "Республиканский"... подробнее

Презентация по предложению

Собираете информацию? Получите подробную презентацию в удобном формате!

БЕЗ КОМИССИИ ID: 1317557 Рейтинг7.0 КлассB

Москва, Переведеновский переулок, 13 с6

Бауманская → 1.34 км
~ 13 мин
Арендная плата в месяц 2 102 100 ₽ 24 300 ₽/м² в год С учётом НДС
Характеристики 1 040 м² 1 этаж Готово к въезду
Преимущества
  • Класс B
  • Пешком от метро
  • Кондиционирование и вентиляция
  • Свой паркинг

Предлагаем в долгосрочную аренду офисное помещение класса B общей площадью 1040 кв.м в бизнес-центре... подробнее

Презентация по предложению

Собираете информацию? Получите подробную презентацию в удобном формате!

БЕЗ КОМИССИИ ID: 1312683 Рейтинг6.6 КлассB

Москва, Переведеновский переулок, 13 с16

Бауманская → 1.38 км
~ 14 мин
Арендная плата в месяц 2 156 674 ₽ 24 300 ₽/м² в год С учётом НДС
Характеристики 1 067 м² 1 этаж Готово к въезду
Преимущества
  • Класс B
  • Пешком от метро
  • Кондиционирование и вентиляция
  • Свой паркинг
  • Развитая инфраструктура

Предлагаем в прямую аренду помещение под офис класса B общей площадью 1067 кв.м в историческом бизнес-центре "Станция"... подробнее

Презентация по предложению

Собираете информацию? Получите подробную презентацию в удобном формате!

ВОЗМОЖНО ОСВОБОЖДЕНИЕ ID: 72509 Рейтинг4.5 КлассB

Москва, 2-й Ирининский переулок, 3

Бауманская → 842 м
~ 8 мин
Арендная плата в месяц 1 916 667 ₽ 23 000 ₽/м² в год С учётом НДС
Характеристики 1 000 м² 1 - 2 этаж Готово к въезду
Преимущества
  • Класс B
  • Пешком от метро

Сдаем в прямую аренду офисный блок класса B общей площадью 1000 квадр. метров в бизнес-центре... подробнее

Презентация по предложению

Собираете информацию? Получите подробную презентацию в удобном формате!

БЕЗ КОМИССИИ ID: 161840 Рейтинг4.3 КлассB

Москва, Электрозаводская улица, 20

Электрозаводская → 954 м
~ 10 мин
Арендная плата в месяц 2 068 733 ₽ 21 700 ₽/м² в год С учётом НДС
Характеристики 1 144 м² 1 - 3 этаж Готово к въезду
Преимущества
  • Класс B
  • Пешком от метро
  • Кондиционирование и вентиляция
  • Развитая инфраструктура

Предлагаем в долгосрочную аренду офис класса B площадью 1144 квадр. метров в историческом бизнес-центре... подробнее

Презентация по предложению

Собираете информацию? Получите подробную презентацию в удобном формате!

Посмотреть все похожие предложения
Отнеситесь рационально к процессу поиска нового офиса!

Просто ответьте на 3 вопроса, и наши специалисты сами предложат оптимальные варианты под ваш бюджет

.