8.2
Смотреть все фото
БЕЗ КОМИССИИ ID: 302068 Рейтинг8.1 КлассА
Бизнес-центр «Premium: West»

Аренда офиса 2000 м²

Москва, Можайское шоссе, вл165Б

Славянский бульвар → 9.27 км
~ 37 мин
Арендная плата в месяц 2 500 000 ₽ 15 000 ₽/м² в год С учётом НДС

Презентация по предложению

Собираете информацию? Получите подробную презентацию в удобном формате!

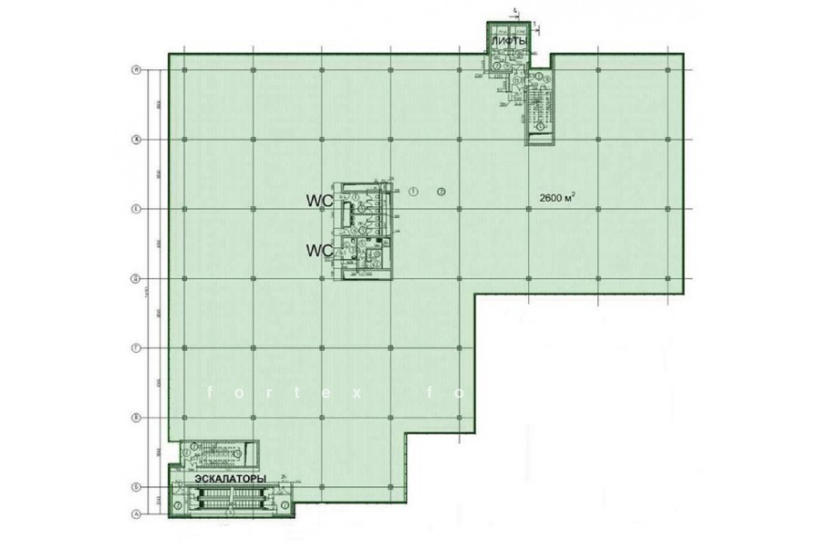
Площадь 2 000 м²
Состояние Готово к въезду
Планировка Открытая
Этаж 3

Описание

Преимущества
  • Класс А
  • Кондиционирование и вентиляция
  • Свой паркинг
  • Развитая инфраструктура
Предлагаем в долгосрочную аренду офис класса А общей площадью 2000 квадр. метров в бизнес-центре "Premium: West".

Москва, Подмосковье, Можайское шоссе, вл165Б

Характеристики местоположения:
- Возможность аренды парковочных мест.
- Ближайшее метро: метро "Славянский бульвар", далее городской транспорт до здания

Офис класса А:
- Помещение готово к въезду
- Вентиляция: Приточно-вытяжная вентиляция
- Кондиционирование: центральное
- Презентабельный центральный рецепшн
- Круглосуточная охрана и видеонаблюдение
- Развитая инфраструктура внутри здания

Возможность заключения контракта в соответствии с 44ФЗ по госзакупкам.

Если данное предложение подходит Вашему запросу:

1. Мы подготовили презентацию с информацией о помещении, фотографиями и планировкой, чтобы Вы могли поделиться ей с коллегами или руководством. Попросите об этом нашего менеджера по телефону в объявлении.
2. Задайте любые вопросы менеджеру по телефону, готовы обсуждать любые предложения по финансовым условиям договора аренды.
3. Оперативно организуем просмотр помещения, договоримся на любое удобное время, подготовим виртуальный тур.

Вы можете позвонить нам в любое время. Мы ответим на Ваши вопросы по будням до 19:00, а поздно вечером или в выходные сможем передать Ваш контакт нашему менеджеру.

Коммерческие условия

Арендная плата 2 500 000 ₽
Ставка арендной платы 15 000 ₽ м²/год
Эксплуатационные расходы Включены в ставку
Налоги С учётом НДС
Тип договора Прямая аренда
Срок договора от 11 месяцев
Размер платежей 1 месяц
Обеспечительный платеж 2 месяц
Статус Сдан

О бизнес-центре

Класс А
Этажность 8
Лифты Есть
Общая площадь 17 500 м²
Год постройки 2012
Паркинг Наземный
Вентиляция приточно-вытяжная
Кондиционирование центральное
Телекоммуникации Интернет/Телефония

Расположение

Подробная презентацию по предложению

Собираете информацию? Получите подробную презентацию в удобном формате, чтобы обсудить вариант с коллегами или переслать руководству!

Похожие предложения в других зданиях

БЕЗ КОМИССИИ ID: 480974 Рейтинг9.3 КлассА

Сколково, улица Николы Теслы, 1 с1

Тропарево → 12.12 км
~ 18 мин
Арендная плата в месяц 2 661 917 ₽ 17 000 ₽/м² в год С учётом НДС
Характеристики 1 879 м² 3 этаж Отделка под арендатора
Преимущества
  • Класс А
  • Новое строительство
  • Кондиционирование и вентиляция
  • Свой паркинг

Предлагается в долгосрочную прямую аренду офис класса А площадью 1879 квадратных метров в современном бизнес-центре "Стратос"... подробнее

Презентация по предложению

Собираете информацию? Получите подробную презентацию в удобном формате!

БЕЗ КОМИССИИ ID: 302069 Рейтинг8.1 КлассА

Москва, Можайское шоссе, вл165Б

Славянский бульвар → 9.27 км
~ 37 мин
Арендная плата в месяц 2 875 000 ₽ 15 000 ₽/м² в год С учётом НДС
Характеристики 2 300 м² 3 этаж Готово к въезду
Преимущества
  • Класс А
  • Кондиционирование и вентиляция
  • Свой паркинг
  • Развитая инфраструктура

Предлагается в долгосрочную аренду офис класса А общей площадью 2300 кв.м в бизнес-центре "Premium: West"... подробнее

Презентация по предложению

Собираете информацию? Получите подробную презентацию в удобном формате!

Посмотреть все похожие предложения
Отнеситесь рационально к процессу поиска нового офиса!

Просто ответьте на 3 вопроса, и наши специалисты сами предложат оптимальные варианты под ваш бюджет

.