8.2
Смотреть все фото
БЕЗ КОМИССИИ ID: 302069 Рейтинг8.1 КлассА
Бизнес-центр «Premium: West»

Аренда офиса 2300 м²

Москва, Можайское шоссе, вл165Б

Славянский бульвар → 9.27 км
~ 37 мин
Арендная плата в месяц 2 875 000 ₽ 15 000 ₽/м² в год С учётом НДС

Презентация по предложению

Собираете информацию? Получите подробную презентацию в удобном формате!

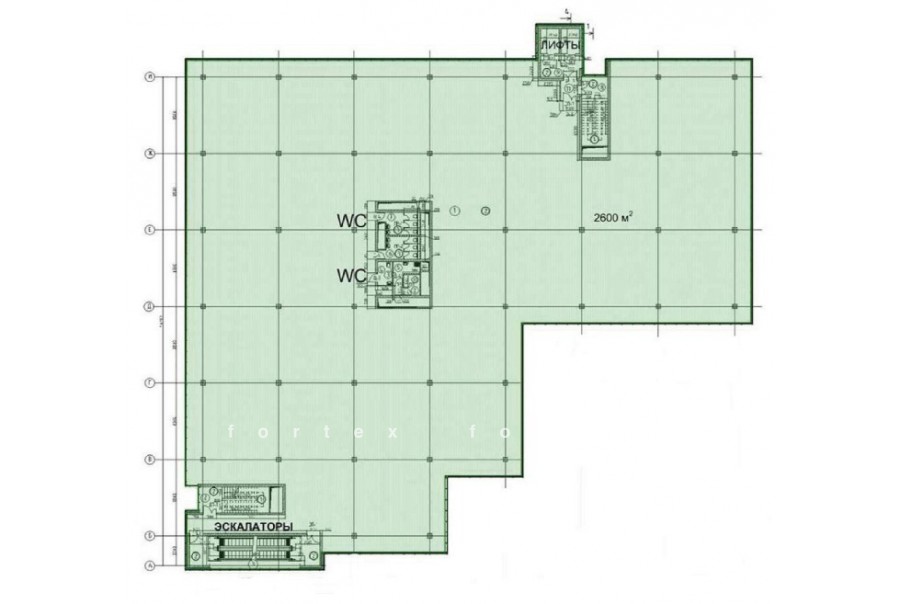
Площадь 2 300 м²
Состояние Готово к въезду
Планировка Открытая
Этаж 3

Описание

Преимущества
  • Класс А
  • Кондиционирование и вентиляция
  • Свой паркинг
  • Развитая инфраструктура
Предлагается в долгосрочную аренду офис класса А общей площадью 2300 кв.м в бизнес-центре "Premium: West".

Москва, Подмосковье, Можайское шоссе, вл165Б

Характеристики местоположения:
- Возможность аренды парковочных мест.
- Ближайшее метро: метро "Славянский бульвар", далее городской транспорт до здания

Офис класса А:
- Помещение с отделкой, готово к въезду
- Вентиляция: Приточно-вытяжная вентиляция
- Кондиционирование: центральное
- Презентабельный центральный рецепшн
- Круглосуточная охрана и видеонаблюдение
- Развитая инфраструктура внутри здания

Возможность заключения контракта в соответствии с 44ФЗ по госзакупкам.

Что еще можно узнать о предложении:

1. Получите презентацию в течение 10 минут в Whatsapp или на почту с фотографиями и планировкой, чтобы обсудить данный вариант с коллегами или переслать руководству. Для этого позвоните по телефону, указанному в объявлении.
2. Мы готовы ответить на любые Ваши вопросы о помещении и коммерческих условиях аренды.
3. Оперативно организуем просмотр помещения, договоримся на любое удобное время, подготовим виртуальный тур.

Звоните нам в любое время. По будням мы сможем ответить на Ваши вопросы до 19:00. В выходные или вечернее время мы передадим Ваш контакт нашему менеджеру по аренде.

Коммерческие условия

Арендная плата 2 875 000 ₽
Ставка арендной платы 15 000 ₽ м²/год
Эксплуатационные расходы Включены в ставку
Налоги С учётом НДС
Тип договора Прямая аренда
Срок договора от 11 месяцев
Размер платежей 1 месяц
Обеспечительный платеж 2 месяц
Статус Сдан

О бизнес-центре

Класс А
Этажность 8
Лифты Есть
Общая площадь 17 500 м²
Год постройки 2012
Паркинг Наземный
Вентиляция приточно-вытяжная
Кондиционирование центральное
Телекоммуникации Интернет/Телефония

Расположение

Подробная презентацию по предложению

Собираете информацию? Получите подробную презентацию в удобном формате, чтобы обсудить вариант с коллегами или переслать руководству!

Похожие предложения в других зданиях

БЕЗ КОМИССИИ ID: 965502 Рейтинг8.1 КлассB+

Москва, Очаковское шоссе, 34

Озёрная → 4.49 км
~ 15 мин
Арендная плата в месяц 3 599 750 ₽ 16 500 ₽/м² в год С учётом НДС
Характеристики 2 618 м² 8 этаж Под отделку
Преимущества
  • Класс B+
  • Кондиционирование и вентиляция
  • Свой паркинг
  • Несколько провайдеров связи

Сдаем в долгосрочную прямую аренду офис класса B+ площадью 2618 квадр. метров в бизнес-центре "West Park"... подробнее

Презентация по предложению

Собираете информацию? Получите подробную презентацию в удобном формате!

БЕЗ КОМИССИИ ID: 233778 Рейтинг8.1 КлассА

Москва, Можайское шоссе, вл165Б

Славянский бульвар → 9.27 км
~ 37 мин
Арендная плата в месяц 3 250 000 ₽ 15 000 ₽/м² в год С учётом НДС
Характеристики 2 600 м² 6 этаж Готово к въезду
Преимущества
  • Класс А
  • Кондиционирование и вентиляция
  • Свой паркинг
  • Развитая инфраструктура

Сдается в прямую аренду помещение под офис класса А общей площадью 2600 квадр. метров в бизнес-центре "Premium: West"... подробнее

Презентация по предложению

Собираете информацию? Получите подробную презентацию в удобном формате!

БЕЗ КОМИССИИ ID: 302068 Рейтинг8.1 КлассА

Москва, Можайское шоссе, вл165Б

Славянский бульвар → 9.27 км
~ 37 мин
Арендная плата в месяц 2 500 000 ₽ 15 000 ₽/м² в год С учётом НДС
Характеристики 2 000 м² 3 этаж Готово к въезду
Преимущества
  • Класс А
  • Кондиционирование и вентиляция
  • Свой паркинг
  • Развитая инфраструктура

Предлагаем в долгосрочную аренду офис класса А общей площадью 2000 квадр. метров в бизнес-центре "Premium: West"... подробнее

Презентация по предложению

Собираете информацию? Получите подробную презентацию в удобном формате!

Посмотреть все похожие предложения
Отнеситесь рационально к процессу поиска нового офиса!

Просто ответьте на 3 вопроса, и наши специалисты сами предложат оптимальные варианты под ваш бюджет

.