8.2
Смотреть все фото
БЕЗ КОМИССИИ ID: 115090 Рейтинг8.5 КлассА
Бизнес-центр «Саввинский»

Аренда офиса 200 м²

Москва, Большой Саввинский переулок, 11

Киевская → 1.47 км
~ 15 мин
Арендная плата в месяц 1 423 300 ₽ 85 400 ₽/м² в год С учётом НДС

Презентация по предложению

Собираете информацию? Получите подробную презентацию в удобном формате!

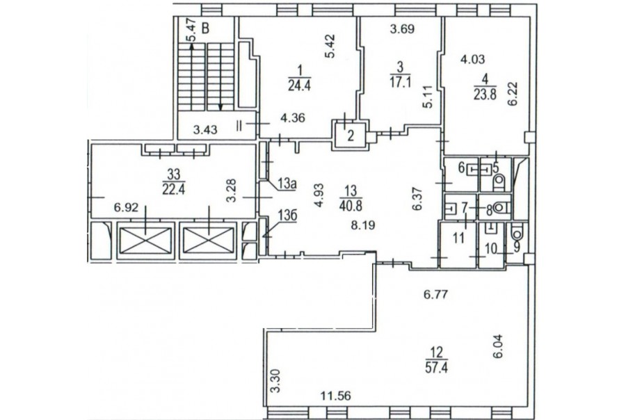
Площадь 200 м²
Состояние Готово к въезду
Планировка Кабинетная
Этаж 4

Описание

Преимущества
  • Класс А
  • Пешком от метро
  • Кондиционирование и вентиляция
  • Свой паркинг
  • Развитая инфраструктура
Предлагаем в прямую аренду офисный блок класса А общей площадью 200 кв. метров в бизнес-центре "Саввинский".

Москва, ЦАО, Большой Саввинский переулок, 11

Удобная локация здания:
- Возможность аренды парковочных мест.
- Ближайшее метро: от метро "Киевская" всего 15 мин пешком

Офис класса А:
- Помещение с отделкой, готово к въезду
- Вентиляция: Приточно-вытяжная вентиляция
- Кондиционирование: центральное
- Круглосуточная охрана и видеонаблюдение
- Развитая инфраструктура внутри здания


Если предложение предварительно Вам подходит:

1. Мы подготовили презентацию с информацией о помещении, фотографиями и планировкой, чтобы Вы могли поделиться ей с коллегами или руководством. Попросите об этом нашего менеджера по телефону в объявлении.
2. Задайте любые вопросы менеджеру по телефону, готовы обсуждать любые предложения по финансовым условиям договора аренды.
3. Проводим показы ежедневно, договоримся на удобное для Вас время. Можем организовать виртуальный тур по офисному блоку.

Вы можете позвонить нам в любое время. Мы ответим на Ваши вопросы по будням до 19:00, а поздно вечером или в выходные зафиксируем Ваш контакт и перезвоним в рабочее время.

Коммерческие условия

Арендная плата 696 670 ₽
Ставка арендной платы 85 400 ₽ м²/год
Эксплуатационные расходы Включены в ставку
Налоги С учётом НДС
Тип договора Прямая аренда
Срок договора Долгосрочный
Размер платежей 1 месяц
Обеспечительный платеж 3 месяц
Статус Сдан

О бизнес-центре

Класс А
Этажность 9
Лифты Есть
Общая площадь 6 924 м²
Год постройки 2007
Паркинг Подземный
Вентиляция приточно-вытяжная
Кондиционирование центральное
Телекоммуникации Интернет/Телефония

Расположение

Подробная презентацию по предложению

Собираете информацию? Получите подробную презентацию в удобном формате, чтобы обсудить вариант с коллегами или переслать руководству!

Похожие предложения в других зданиях

БЕЗ КОМИССИИ ID: 1379664 Рейтинг7.9 КлассB

Москва, Малая Пироговская улица, 14

Спортивная → 685 м
~ 7 мин
Арендная плата в месяц 1 706 982 ₽ 96 200 ₽/м² в год С учётом НДС
Характеристики 213 м² 2 - 4 этаж Готово к въезду
Преимущества
  • Класс B
  • Пешком от метро
  • Кондиционирование и вентиляция
  • Свой паркинг
  • Несколько провайдеров связи

Предлагается в прямую аренду офисное помещение класса B общей площадью 213 кв. метров в бизнес-центре "Элберт плейс"... подробнее

Презентация по предложению

Собираете информацию? Получите подробную презентацию в удобном формате!

БЕЗ КОМИССИИ ID: 1323509 Рейтинг8.7 КлассB

Москва, Трубецкая улица, 12

Фрунзенская → 647 м
~ 6 мин
Арендная плата в месяц 1 200 000 ₽ 83 200 ₽/м² в год Упрощённая система налогообложения
Характеристики 173 м² 1 - 2 этаж Под отделку
Преимущества
  • Класс B
  • Пешком от метро
  • Кондиционирование и вентиляция

Предлагается в долгосрочную аренду офисный блок класса B площадью 173 квадратных метров в жилом комплексе... подробнее

Презентация по предложению

Собираете информацию? Получите подробную презентацию в удобном формате!

БЕЗ КОМИССИИ ID: 1375484 Рейтинг7.1 КлассB

Москва, улица Хамовнический Вал, 36 с2

Лужники → 506 м
~ 5 мин
Арендная плата в месяц 1 500 001 ₽ 83 700 ₽/м² в год Упрощённая система налогообложения
Характеристики 215 м² 1 - 2 этаж Готово к въезду
Преимущества
  • Класс B
  • Пешком от метро

Предлагается в долгосрочную прямую аренду офисное помещение класса B площадью 215 кв.м в жилом комплексе... подробнее

Презентация по предложению

Собираете информацию? Получите подробную презентацию в удобном формате!

ВОЗМОЖНО ОСВОБОЖДЕНИЕ ID: 1181189 Рейтинг8.6 КлассА

Москва, набережная Тараса Шевченко, 23А

Выставочная → 474 м
~ 6 мин
Арендная плата в месяц 1 374 550 ₽ 74 300 ₽/м² в год С учётом НДС
Характеристики 222 м² 3 этаж Готово к въезду
Преимущества
  • Класс А
  • Пешком от метро
  • Кондиционирование и вентиляция
  • Развитая инфраструктура

Собственник сдает в прямую аренду офисный блок класса А общей площадью 222 квадратных метров в бизнес-центре "Башня 2000"... подробнее

>

Виртуальный тур

Презентация по предложению

Собираете информацию? Получите подробную презентацию в удобном формате!

БЕЗ КОМИССИИ ID: 413158 Рейтинг8.6 КлассА

Москва, набережная Тараса Шевченко, 23А

Выставочная → 474 м
~ 6 мин
Арендная плата в месяц 1 343 592 ₽ 74 300 ₽/м² в год С учётом НДС
Характеристики 217 м² 3 этаж Готово к въезду
Преимущества
  • Класс А
  • Пешком от метро
  • Кондиционирование и вентиляция
  • Развитая инфраструктура

Сдается в долгосрочную прямую аренду офисное помещение класса А общей площадью 217 кв.м в бизнес-центре "Башня 2000"... подробнее

>

Виртуальный тур

Презентация по предложению

Собираете информацию? Получите подробную презентацию в удобном формате!

Посмотреть все похожие предложения
Отнеситесь рационально к процессу поиска нового офиса!

Просто ответьте на 3 вопроса, и наши специалисты сами предложат оптимальные варианты под ваш бюджет

.