8.2

Виртуальный тур

Смотреть все фото
БЕЗ КОМИССИИ ID: 1192400 Рейтинг7.9 КлассB
Бизнес-центр «Шаболовка 31Г»

Аренда офиса 304 м²

Москва, улица Шаболовка, 31Г

Шаболовская → 328 м
~ 3 мин
Арендная плата в месяц 613 100 ₽ 24 200 ₽/м² в год С учётом НДС

Презентация по предложению

Собираете информацию? Получите подробную презентацию в удобном формате!

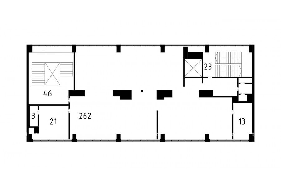
Площадь 304 м²
Состояние Готово к въезду
Планировка Смешанная
Этаж 5

Описание

Преимущества
  • Класс B
  • Пешком от метро
  • Кондиционирование и вентиляция
  • Свой паркинг
  • Несколько провайдеров связи
  • Развитая инфраструктура
Предлагаем в долгосрочную прямую аренду офис класса B общей площадью 304 квадратных метров в недавно отреконструированном бизнес-центре.

Москва, ЮАО, улица Шаболовка, 31Г

Удобное расположение здания для всех видов транспорта:
- Автомобиль: близость транспортных магистралей, таких как Ленинский проспект и других.
- Возможность аренды парковочных мест.
- Ближайшее метро: от метро "Шаболовская" всего 3 мин пешком

Офис класса B:
- Помещение с отделкой, готово к въезду
- Вентиляция: Приточно-вытяжная вентиляция
- Кондиционирование: центральное
- Круглосуточная охрана и видеонаблюдение
- Развитая инфраструктура внутри здания


Если предложение предварительно Вам подходит:

1. Мы подготовили презентацию с информацией о помещении, фотографиями и планировкой, чтобы Вы могли поделиться ей с коллегами или руководством. Попросите об этом нашего менеджера по телефону в объявлении.
2. Мы готовы ответить на любые Ваши вопросы о помещении и коммерческих условиях аренды.
3.

Вы можете позвонить нам в любое время. Мы ответим на Ваши вопросы по будням до 19:00, а поздно вечером или в выходные сможем передать Ваш контакт нашему менеджеру.

Коммерческие условия

Арендная плата 557 330 ₽
Ставка арендной платы 24 200 ₽ м²/год
Эксплуатационные расходы Включены в ставку
Налоги С учётом НДС
Тип договора Прямая аренда
Срок договора от 11 месяцев
Размер платежей 1 месяц
Обеспечительный платеж 1 месяц
Статус Сдан

О бизнес-центре

Класс B
Этажность 9
Лифты Есть
Общая площадь 95 216 м²
Паркинг Наземный
Вентиляция приточно-вытяжная
Кондиционирование центральное
Телекоммуникации Интернет/Телефония

Расположение

Подробная презентацию по предложению

Собираете информацию? Получите подробную презентацию в удобном формате, чтобы обсудить вариант с коллегами или переслать руководству!

Похожие предложения в других зданиях

БЕЗ КОМИССИИ ID: 78072 Рейтинг6.1 КлассB+

Москва, улица Шаболовка, 12

Шаболовская → 546 м
~ 5 мин
Арендная плата в месяц 507 500 ₽ 21 000 ₽/м² в год С учётом НДС
Характеристики 290 м² 1 - 2 этаж Готово к въезду
Преимущества
  • Класс B+
  • Пешком от метро
  • Кондиционирование и вентиляция

Предлагаем в долгосрочную аренду офисный блок класса B+ общей площадью 290 кв.м в историческом бизнес-центре... подробнее

Презентация по предложению

Собираете информацию? Получите подробную презентацию в удобном формате!

БЕЗ КОМИССИИ ID: 1245386 Рейтинг7.5 КлассB

Москва, Донская улица, 13

Шаболовская → 807 м
~ 8 мин
Арендная плата в месяц 600 000 ₽ 24 000 ₽/м² в год С учётом НДС
Характеристики 300 м² 2 этаж Готово к въезду
Преимущества
  • Класс B
  • Пешком от метро
  • Кондиционирование и вентиляция
  • Свой паркинг

Сдаем в прямую аренду помещение под офис класса B площадью 300 квадратных метров в бизнес-центре... подробнее

>

Виртуальный тур

Презентация по предложению

Собираете информацию? Получите подробную презентацию в удобном формате!

БЕЗ КОМИССИИ ID: 287630 Рейтинг4.8 КлассB

Москва, улица Шаболовка, 34 с5

Шаболовская → 554 м
~ 6 мин
Арендная плата в месяц 520 000 ₽ 20 800 ₽/м² в год С учётом НДС
Характеристики 300 м² 1 этаж Готово к въезду
Преимущества
  • Класс B
  • Пешком от метро
  • Развитая инфраструктура

Сдается в прямую аренду офисное помещение класса B общей площадью 300 квадр. метров в историческом бизнес-центре... подробнее

Презентация по предложению

Собираете информацию? Получите подробную презентацию в удобном формате!

БЕЗ КОМИССИИ ID: 233041 Рейтинг6.1 КлассB

Москва, Ленинский проспект, 11 к2

Шаболовская → 656 м
~ 7 мин
Арендная плата в месяц 600 000 ₽ 24 000 ₽/м² в год С учётом НДС
Характеристики 300 м² 2 - 3 этаж Отделка под арендатора
Преимущества
  • Класс B
  • Пешком от метро
  • Кондиционирование и вентиляция
  • Свой паркинг

Предлагается в долгосрочную аренду помещение под офис класса B площадью 300 кв.м в историческом бизнес-центре... подробнее

Презентация по предложению

Собираете информацию? Получите подробную презентацию в удобном формате!

БЕЗ КОМИССИИ ID: 1300248 Рейтинг8.1 КлассB+

Москва, улица Лестева, 8 с1

Шаболовская → 923 м
~ 9 мин
Арендная плата в месяц 732 270 ₽ 27 700 ₽/м² в год С учётом НДС
Характеристики 317 м² 3 - 4 этаж Готово к въезду
Преимущества
  • Класс B+
  • Пешком от метро
  • Кондиционирование и вентиляция
  • Свой паркинг

Предлагаем в долгосрочную аренду офисный блок класса B+ общей площадью 317 кв.м в историческом бизнес-центре... подробнее

Презентация по предложению

Собираете информацию? Получите подробную презентацию в удобном формате!

Посмотреть все похожие предложения
Отнеситесь рационально к процессу поиска нового офиса!

Просто ответьте на 3 вопроса, и наши специалисты сами предложат оптимальные варианты под ваш бюджет

.