8.2
Смотреть все фото
БЕЗ КОМИССИИ ID: 1326356 Рейтинг7.0 КлассА
Бизнес-центр «SK-Royal»

Аренда офиса 81 м²

Москва, Дмитровское шоссе, 163А

Алтуфьево → 4.42 км
~ 23 мин
Арендная плата в месяц 166 000 ₽ 24 600 ₽/м² в год С учётом НДС

Презентация по предложению

Собираете информацию? Получите подробную презентацию в удобном формате!

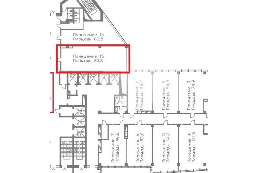
Площадь 81 м²
Состояние Готово к въезду
Планировка Открытая
Этаж 7

Описание

Преимущества
  • Класс А
  • Кондиционирование и вентиляция
  • Развитая инфраструктура
Предлагаем в долгосрочную прямую аренду офисное помещение класса А общей площадью 81 кв.м в бизнес-центре "SK-Royal".

Москва, СВАО, Дмитровское шоссе, 163А

Характеристики местоположения:
- Ближайшее метро: метро "Алтуфьево", далее городской транспорт до здания

Офис класса А:
- Офис с отделкой, полностью готов к аренде
- Вентиляция: Приточно-вытяжная вентиляция
- Кондиционирование: центральное
- Презентабельный центральный ресепшн
- Круглосуточная охрана и видеонаблюдение
- Развитая инфраструктура внутри здания


Что еще можно узнать о предложении:

1. Мы подготовили презентацию с информацией о помещении, фотографиями и планировкой, чтобы Вы могли поделиться ей с коллегами или руководством. Попросите об этом нашего менеджера по телефону в объявлении.
2. Мы готовы ответить на любые Ваши вопросы о помещении и коммерческих условиях аренды.
3. Покажем помещение в удобное для Вас время с менеджером в здании, при необходимости подготовим виртуальный тур.

Вы можете позвонить нам в любое время. Мы ответим на Ваши вопросы по будням до 19:00, а поздно вечером или в выходные зафиксируем Ваш контакт и перезвоним в рабочее время.

Коммерческие условия

Арендная плата 166 050 ₽
Ставка арендной платы 24 600 ₽ м²/год
Эксплуатационные расходы Включены в ставку
Налоги С учётом НДС
Тип договора Прямая аренда
Срок договора от 11 месяцев
Размер платежей 1 месяц
Обеспечительный платеж 2 месяц
Статус Свободен

О бизнес-центре

Класс А
Этажность 25
Лифты Есть
Общая площадь 22 000 м²
Паркинг Стихийный
Вентиляция приточно-вытяжная
Кондиционирование центральное
Телекоммуникации Интернет/Телефония

Расположение

Подробная презентацию по предложению

Собираете информацию? Получите подробную презентацию в удобном формате, чтобы обсудить вариант с коллегами или переслать руководству!

Похожие предложения в других зданиях

БЕЗ КОМИССИИ ID: 1382248 Рейтинг7.7 КлассB+

Москва, улица Пришвина, 8

Бибирево → 815 м
~ 8 мин
Арендная плата в месяц 161 250 ₽ 22 500 ₽/м² в год С учётом НДС
Характеристики 86 м² 3 этаж Готово к въезду
Преимущества
  • Класс B+
  • Пешком от метро
  • Кондиционирование и вентиляция
  • Свой паркинг

Предлагается в долгосрочную аренду офисное помещение класса B+ площадью 86 кв.м в бизнес-центре... подробнее

Презентация по предложению

Собираете информацию? Получите подробную презентацию в удобном формате!

БЕЗ КОМИССИИ ID: 1379705 Рейтинг7.7 КлассB+

Москва, улица Пришвина, 8

Бибирево → 815 м
~ 8 мин
Арендная плата в месяц 146 250 ₽ 22 500 ₽/м² в год С учётом НДС
Характеристики 78 м² 6 этаж Готово к въезду
Преимущества
  • Класс B+
  • Пешком от метро
  • Кондиционирование и вентиляция
  • Свой паркинг

Сдается в долгосрочную аренду офисное помещение класса B+ площадью 78 кв.м в бизнес-центре... подробнее

Презентация по предложению

Собираете информацию? Получите подробную презентацию в удобном формате!

БЕЗ КОМИССИИ ID: 1377570 Рейтинг7.3 КлассB

Москва, Чермянский проезд, 7

Медведково → 1.97 км
~ 20 мин
Арендная плата в месяц 155 750 ₽ 21 000 ₽/м² в год С учётом НДС
Характеристики 89 м² 2 этаж Готово к въезду
Преимущества
  • Класс B
  • Пешком от метро
  • Кондиционирование и вентиляция
  • Свой паркинг
  • Несколько провайдеров связи
  • Развитая инфраструктура

Предлагаем в долгосрочную аренду офисное помещение класса B площадью 89 квадр. метров в бизнес-центре "Чермянский"... подробнее

Презентация по предложению

Собираете информацию? Получите подробную презентацию в удобном формате!

БЕЗ КОМИССИИ ID: 1329055 Рейтинг7.3 КлассB

Москва, Чермянский проезд, 7

Медведково → 1.97 км
~ 20 мин
Арендная плата в месяц 147 000 ₽ 21 000 ₽/м² в год С учётом НДС
Характеристики 84 м² 3 этаж Готово к въезду
Преимущества
  • Класс B
  • Пешком от метро
  • Кондиционирование и вентиляция
  • Свой паркинг
  • Несколько провайдеров связи
  • Развитая инфраструктура

Сдается в долгосрочную аренду офисный блок класса B площадью 84 квадратных метров в бизнес-центре "Чермянский"... подробнее

Презентация по предложению

Собираете информацию? Получите подробную презентацию в удобном формате!

Посмотреть все похожие предложения
Отнеситесь рационально к процессу поиска нового офиса!

Просто ответьте на 3 вопроса, и наши специалисты сами предложат оптимальные варианты под ваш бюджет

.