8.2

Виртуальный тур

Смотреть все фото
БЕЗ КОМИССИИ ID: 1319701 Рейтинг8.0 КлассB+
Бизнес-центр «Сокол Плейс»

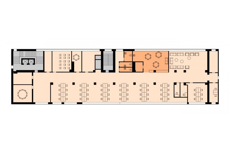
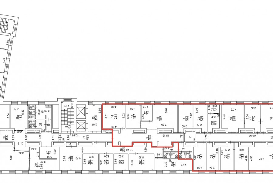
Аренда офиса 613 м²

Москва, Чапаевский переулок, 14

Сокол → 1.02 км
~ 10 мин
Арендная плата в месяц 1 941 200 ₽ 38 000 ₽/м² в год С учётом НДС

Презентация по предложению

Собираете информацию? Получите подробную презентацию в удобном формате!

Площадь 613 м²
Состояние Готово к въезду
Планировка Смешанная
Этаж 6

Описание

Преимущества
  • Класс B+
  • Пешком от метро
  • Кондиционирование и вентиляция
  • Свой паркинг
  • Несколько провайдеров связи
  • Развитая инфраструктура
Предлагается в долгосрочную аренду помещение под офис класса B+ площадью 613 кв. метров в бизнес-центре "Сокол Плейс".

Москва, САО, Чапаевский переулок, 14

Удобная локация здания:
- Автомобиль: близость транспортных магистралей, таких как Ленинградский проспект, Волоколамское шоссе, Ленинградское шоссе и других.
- Возможность аренды парковочных мест.
- Ближайшее метро: от метро "Сокол" всего 10 мин пешком

Офис класса B+:
- Помещение готово к въезду
- Вентиляция: Приточно-вытяжная вентиляция
- Кондиционирование: центральное
- Круглосуточная охрана и видеонаблюдение
- Развитая инфраструктура внутри здания

Возможность заключения контракта в соответствии с 44ФЗ по госзакупкам.

Если данное предложение подходит Вашему запросу:

1. Мы подготовили презентацию с информацией о помещении, фотографиями и планировкой, чтобы Вы могли поделиться ей с коллегами или руководством. Попросите об этом нашего менеджера по телефону в объявлении.
2. Задайте любые вопросы менеджеру по телефону, готовы обсуждать любые предложения по финансовым условиям договора аренды.
3.

Вы можете позвонить нам в любое время. Мы ответим на Ваши вопросы по будням до 19:00, а поздно вечером или в выходные зафиксируем Ваш контакт и перезвоним в рабочее время.

Коммерческие условия

Арендная плата 1 941 170 ₽
Ставка арендной платы 38 000 ₽ м²/год
Эксплуатационные расходы Включены в ставку
Налоги С учётом НДС
Тип договора Субаренда
Срок договора Долгосрочный
Размер платежей 1 месяц
Обеспечительный платеж 2 месяц
Статус Свободен

О бизнес-центре

Класс B+
Этажность 6
Лифты Есть
Общая площадь 6 000 м²
Год постройки 1994
Паркинг Наземный
Вентиляция приточно-вытяжная
Кондиционирование центральное
Телекоммуникации Интернет/Телефония

Расположение

Подробная презентацию по предложению

Собираете информацию? Получите подробную презентацию в удобном формате, чтобы обсудить вариант с коллегами или переслать руководству!

Похожие предложения в других зданиях

БЕЗ КОМИССИИ ID: 287319 Рейтинг9.1 КлассА

Москва, улица Викторенко, 5 с1

Аэропорт → 191 м
~ 2 мин
Арендная плата в месяц 1 633 525 ₽ 36 100 ₽/м² в год С учётом НДС
Характеристики 543 м² 5 этаж Готово к въезду
Преимущества
  • Класс А
  • Пешком от метро
  • Кондиционирование и вентиляция
  • Свой паркинг
  • Несколько провайдеров связи
  • Развитая инфраструктура

Предлагается в долгосрочную прямую аренду офисное помещение класса А площадью 543 квадр. метров в бизнес-центре "Виктори Плаза"... подробнее

Презентация по предложению

Собираете информацию? Получите подробную презентацию в удобном формате!

БЕЗ КОМИССИИ ID: 1318541 Рейтинг8.3 КлассB+

Москва, Ленинградский проспект, 47 с2

Аэропорт → 321 м
~ 3 мин
Арендная плата в месяц 2 090 000 ₽ 40 000 ₽/м² в год С учётом НДС
Характеристики 627 м² 3 этаж Готово к въезду
Преимущества
  • Класс B+
  • Пешком от метро
  • Кондиционирование и вентиляция
  • Свой паркинг
  • Развитая инфраструктура

Предлагается в прямую аренду офисное помещение класса B+ площадью 627 квадратных метров в бизнес-центре "Авион"... подробнее

>

Виртуальный тур

Презентация по предложению

Собираете информацию? Получите подробную презентацию в удобном формате!

БЕЗ КОМИССИИ ID: 1314283 Рейтинг8.3 КлассB+

Москва, Ленинградский проспект, 47 с2

Аэропорт → 321 м
~ 3 мин
Арендная плата в месяц 1 963 333 ₽ 40 000 ₽/м² в год С учётом НДС
Характеристики 589 м² 4 этаж Готово к въезду
Преимущества
  • Класс B+
  • Пешком от метро
  • Кондиционирование и вентиляция
  • Свой паркинг
  • Развитая инфраструктура

Сдается в долгосрочную аренду офис класса B+ общей площадью 589 квадратных метров в бизнес-центре "Авион"... подробнее

>

Виртуальный тур

Презентация по предложению

Собираете информацию? Получите подробную презентацию в удобном формате!

БЕЗ КОМИССИИ ID: 1321843 Рейтинг8.3 КлассB+

Москва, Ленинградский проспект, 47 с2

Аэропорт → 321 м
~ 3 мин
Арендная плата в месяц 1 800 000 ₽ 40 000 ₽/м² в год С учётом НДС
Характеристики 540 м² 3 этаж Готово к въезду
Преимущества
  • Класс B+
  • Пешком от метро
  • Кондиционирование и вентиляция
  • Свой паркинг
  • Развитая инфраструктура

Предлагаем в прямую аренду помещение под офис класса B+ площадью 540 квадр. метров в бизнес-центре "Авион"... подробнее

>

Виртуальный тур

Презентация по предложению

Собираете информацию? Получите подробную презентацию в удобном формате!

БЕЗ КОМИССИИ ID: 1319207 Рейтинг8.3 КлассB+

Москва, Ленинградский проспект, 47 с2

Аэропорт → 321 м
~ 3 мин
Арендная плата в месяц 1 793 333 ₽ 40 000 ₽/м² в год С учётом НДС
Характеристики 538 м² 2 этаж Готово к въезду
Преимущества
  • Класс B+
  • Пешком от метро
  • Кондиционирование и вентиляция
  • Свой паркинг
  • Развитая инфраструктура

Предлагаем в долгосрочную прямую аренду помещение под офис класса B+ общей площадью 538 кв.м в бизнес-центре "Авион"... подробнее

>

Виртуальный тур

Презентация по предложению

Собираете информацию? Получите подробную презентацию в удобном формате!

Посмотреть все похожие предложения
Отнеситесь рационально к процессу поиска нового офиса!

Просто ответьте на 3 вопроса, и наши специалисты сами предложат оптимальные варианты под ваш бюджет

.