8.2
Смотреть все фото
БЕЗ КОМИССИИ ID: 326343 Рейтинг7.7 КлассB
Бизнес-центр «Стрелецкий»

Аренда офиса 1287 м²

Москва, улица Большая Молчановка, 30/7 с2

Смоленская → 946 м
~ 9 мин
Арендная плата в месяц 3 324 700 ₽ 31 000 ₽/м² в год С учётом НДС

Презентация по предложению

Собираете информацию? Получите подробную презентацию в удобном формате!

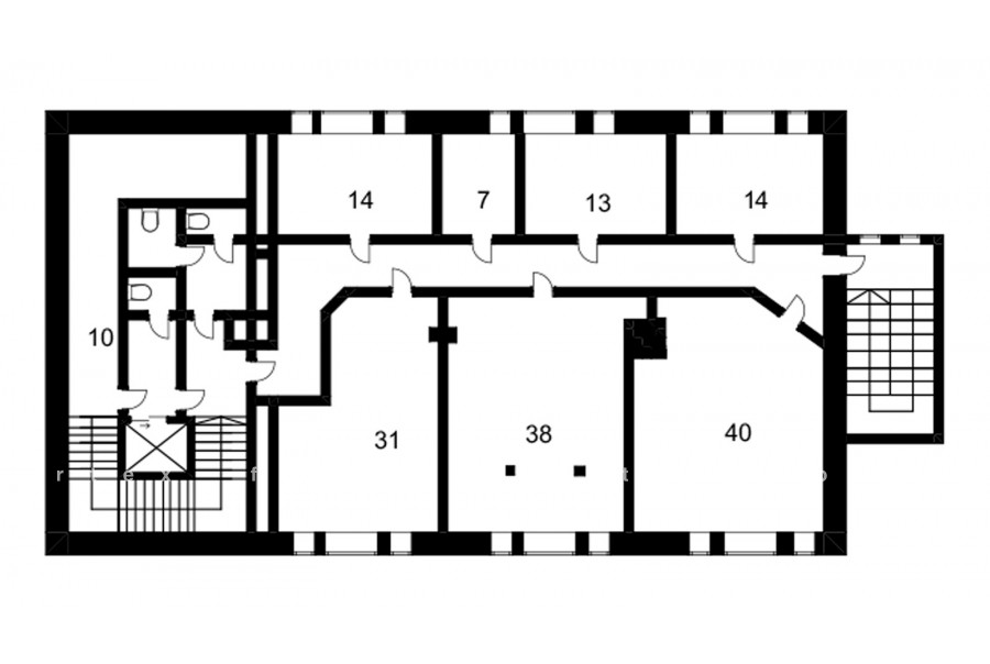
Площадь 1 287 м²
Состояние Готово к въезду
Планировка Кабинетная
Этаж -1 - 4

Описание

Преимущества
  • Класс B
  • Пешком от метро
  • Кондиционирование и вентиляция
  • Свой паркинг
  • Несколько провайдеров связи
Предлагаем в прямую аренду офис класса B площадью 1287 кв. метров в бизнес-центре "Стрелецкий".

Москва, ЦАО, улица Большая Молчановка, 30 Удобное расположение в пределах Садового кольца:
- Возможность аренды парковочных мест.
- Ближайшее метро: от метро "Смоленская" всего 10 мин пешком

Офис класса B:
- Офис с отделкой, полностью готов к аренде
- Вентиляция: Приточно-вытяжная вентиляция
- Кондиционирование: центральное

Возможность заключения контракта в соответствии с 44ФЗ по госзакупкам.

Что еще можно узнать о предложении:

1. Мы отправим Вам подробную презентацию с планировкой и фотографиями в течение 10 минут после звонка, чтобы Вы могли поделиться информацией с руководством или с коллегами.
2. Задайте любые вопросы менеджеру по телефону, готовы обсуждать любые предложения по финансовым условиям договора аренды.
3. Оперативно организуем просмотр помещения, договоримся на любое удобное время, подготовим виртуальный тур.

Звоните нам в любое время. По будням мы сможем ответить на Ваши вопросы до 19:00. В выходные или вечернее время мы передадим Ваш контакт нашему менеджеру по аренде.

Коммерческие условия

Арендная плата 3 574 750 ₽
Ставка арендной платы 31 000 ₽ м²/год
Эксплуатационные расходы Включены в ставку
Налоги С учётом НДС
Тип договора Прямая аренда
Срок договора Долгосрочный
Размер платежей 1 месяц
Обеспечительный платеж 1 месяц
Статус Сдан

О бизнес-центре

Класс B
Этажность 4
Лифты Есть
Общая площадь 1 282 м²
Паркинг Наземный
Вентиляция приточно-вытяжная
Кондиционирование центральное
Телекоммуникации Интернет/Телефония

Расположение

Подробная презентацию по предложению

Собираете информацию? Получите подробную презентацию в удобном формате, чтобы обсудить вариант с коллегами или переслать руководству!

Похожие предложения в других зданиях

БЕЗ КОМИССИИ ID: 122593 Рейтинг5.5 КлассB+

Москва, Трубниковский переулок, 6

Смоленская → 533 м
~ 5 мин
Арендная плата в месяц 4 200 000 ₽ 35 000 ₽/м² в год С учётом НДС
Характеристики 1 440 м² 1 - 4 этаж Под отделку
Преимущества
  • Класс B+
  • Пешком от метро
  • Кондиционирование и вентиляция

Предлагаем в долгосрочную аренду офис класса B+ общей площадью 1440 квадратных метров в бизнес-центре... подробнее

Презентация по предложению

Собираете информацию? Получите подробную презентацию в удобном формате!

БЕЗ КОМИССИИ ID: 251007 Рейтинг7.5 КлассB+

Москва, Композиторская улица, 17

Смоленская → 532 м
~ 5 мин
Арендная плата в месяц 3 712 917 ₽ 35 000 ₽/м² в год С учётом НДС
Характеристики 1 273 м² 4 - 6 этаж Отделка под арендатора
Преимущества
  • Класс B+
  • Пешком от метро
  • Кондиционирование и вентиляция
  • Свой паркинг
  • Развитая инфраструктура

Сдаем в прямую аренду офис класса B+ общей площадью 1273 кв. метров в бизнес-центре... подробнее

Презентация по предложению

Собираете информацию? Получите подробную презентацию в удобном формате!

ВОЗМОЖНО ОСВОБОЖДЕНИЕ ID: 457445 Рейтинг8.2 КлассB+

Москва, Новинский бульвар, 3 с1

Смоленская → 278 м
~ 3 мин
Арендная плата в месяц 3 316 250 ₽ 35 000 ₽/м² в год С учётом НДС
Характеристики 1 137 м² 4 - 5 этаж Готово к въезду
Преимущества
  • Класс B+
  • Пешком от метро
  • Кондиционирование и вентиляция
  • Свой паркинг
  • Несколько провайдеров связи

Предлагается в прямую аренду офис класса B+ общей площадью 1137 кв. метров в бизнес-центре... подробнее

Презентация по предложению

Собираете информацию? Получите подробную презентацию в удобном формате!

БЕЗ КОМИССИИ ID: 5797 Рейтинг7.4 КлассB

Москва, Филипповский переулок, 13 с1

Арбатская → 552 м
~ 6 мин
Арендная плата в месяц 3 500 000 ₽ 35 000 ₽/м² в год С учётом НДС
Характеристики 1 200 м² 2 этаж Готово к въезду
Преимущества
  • Класс B
  • Пешком от метро
  • Кондиционирование и вентиляция
  • Свой паркинг
  • Несколько провайдеров связи

Предлагается в долгосрочную прямую аренду офис класса B площадью 1200 кв.м в историческом бизнес-центре "Филипповское подворье"... подробнее

Презентация по предложению

Собираете информацию? Получите подробную презентацию в удобном формате!

БЕЗ КОМИССИИ ID: 1126259 Рейтинг7.4 КлассB

Москва, Леонтьевский переулок, 2А с2

Арбатская → 916 м
~ 9 мин
Арендная плата в месяц 3 442 500 ₽ 30 000 ₽/м² в год С учётом НДС
Характеристики 1 377 м² -1 - 3 этаж Готово к въезду
Преимущества
  • Класс B
  • Пешком от метро
  • Кондиционирование и вентиляция
  • Свой паркинг

Сдаем в долгосрочную аренду офисный блок класса B площадью 1377 кв. метров в бизнес-центре... подробнее

Презентация по предложению

Собираете информацию? Получите подробную презентацию в удобном формате!

Посмотреть все похожие предложения
Отнеситесь рационально к процессу поиска нового офиса!

Просто ответьте на 3 вопроса, и наши специалисты сами предложат оптимальные варианты под ваш бюджет

.