8.2
Смотреть все фото
БЕЗ КОМИССИИ ID: 1318063 Рейтинг4.8 КлассB
Бизнес-центр «Техпром»

Аренда офиса 607 м²

Москва, Вольная улица, 35

Соколиная Гора → 1.44 км
~ 14 мин
Арендная плата в месяц 1 211 700 ₽ 24 000 ₽/м² в год С учётом НДС

Презентация по предложению

Собираете информацию? Получите подробную презентацию в удобном формате!

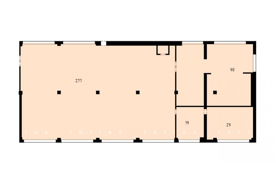
Площадь 607 м²
Состояние Готово к въезду
Планировка Смешанная
Этаж 3

Описание

Преимущества
  • Класс B
  • Пешком от метро
  • Кондиционирование и вентиляция
  • Свой паркинг
  • Несколько провайдеров связи
Предлагается в долгосрочную прямую аренду офисное помещение класса B общей площадью 607 квадратных метров в недавно отреконструированном бизнес-центре "Техпром".

Москва, ВАО, Вольная улица, 35

Удобная локация здания:
- Возможность аренды парковочных мест.
- Ближайшее метро: от метро "Соколиная Гора" всего 8 мин транспортом

Офис класса B:
- Помещение с отделкой, готово к въезду
- Круглосуточная охрана и видеонаблюдение

Возможность заключения контракта в соответствии с 44ФЗ по госзакупкам.

Если данное предложение подходит Вашему запросу:

1. Мы отправим Вам подробную презентацию с планировкой и фотографиями в течение 10 минут после звонка, чтобы Вы могли поделиться информацией с руководством или с коллегами.
2. Ответим на любые Ваши вопросы, готовы обсуждать любые предложения по коммерческим условиям аренды помещения.
3. Проводим показы ежедневно, договоримся на удобное для Вас время. Можем организовать виртуальный тур по офисному блоку.

Вы можете позвонить нам в любое время. Мы ответим на Ваши вопросы по будням до 19:00, а поздно вечером или в выходные зафиксируем Ваш контакт и перезвоним в рабочее время.

Коммерческие условия

Арендная плата 1 154 010 ₽
Ставка арендной платы 24 000 ₽ м²/год
Эксплуатационные расходы Включены в ставку
Налоги С учётом НДС
Тип договора Прямая аренда
Срок договора от 11 месяцев
Размер платежей 1 месяц
Обеспечительный платеж 1 месяц
Статус Сдан

О бизнес-центре

Класс B
Этажность 5
Лифты Есть
Общая площадь 7 927 м²
Год постройки 1978
Паркинг Наземный
Вентиляция естественная
Кондиционирование отсутствует
Телекоммуникации Интернет/Телефония

Расположение

Подробная презентацию по предложению

Собираете информацию? Получите подробную презентацию в удобном формате, чтобы обсудить вариант с коллегами или переслать руководству!

Похожие предложения в других зданиях

БЕЗ КОМИССИИ ID: 1268045 Рейтинг9.1 КлассА

Москва, Семёновская площадь, 1А

Семеновская → 153 м
~ 2 мин
Арендная плата в месяц 1 356 667 ₽ 27 500 ₽/м² в год С учётом НДС
Характеристики 592 м² 26 этаж Готово к въезду
Преимущества
  • Класс А
  • Пешком от метро
  • Кондиционирование и вентиляция
  • Свой паркинг
  • Развитая инфраструктура

Предлагается в долгосрочную прямую аренду помещение под офис класса А площадью 592 кв.м в бизнес-центре "Соколиная Гора"... подробнее

>

Виртуальный тур

Презентация по предложению

Собираете информацию? Получите подробную презентацию в удобном формате!

БЕЗ КОМИССИИ ID: 1280709 Рейтинг7.3 КлассB

Москва, Малая Семёновская улица, 9 с1

Электрозаводская → 443 м
~ 4 мин
Арендная плата в месяц 1 324 950 ₽ 24 200 ₽/м² в год С учётом НДС
Характеристики 657 м² 1 этаж Готово к въезду
Преимущества
  • Класс B
  • Пешком от метро
  • Кондиционирование и вентиляция
  • Свой паркинг
  • Несколько провайдеров связи

Предлагаем в прямую аренду офисное помещение класса B площадью 657 кв. метров в недавно отреконструированном бизнес-центре "На Семеновской"... подробнее

>

Виртуальный тур

Презентация по предложению

Собираете информацию? Получите подробную презентацию в удобном формате!

БЕЗ КОМИССИИ ID: 1280707 Рейтинг7.3 КлассB

Москва, Малая Семёновская улица, 9 с1

Электрозаводская → 443 м
~ 4 мин
Арендная плата в месяц 1 074 608 ₽ 20 900 ₽/м² в год С учётом НДС
Характеристики 617 м² -1 этаж Готово к въезду
Преимущества
  • Класс B
  • Пешком от метро
  • Кондиционирование и вентиляция
  • Свой паркинг
  • Несколько провайдеров связи

Предлагается в прямую аренду офисное помещение класса B площадью 617 квадр. метров в недавно отреконструированном бизнес-центре "На Семеновской"... подробнее

>

Виртуальный тур

Презентация по предложению

Собираете информацию? Получите подробную презентацию в удобном формате!

БЕЗ КОМИССИИ ID: 165089 Рейтинг4.3 КлассB

Москва, Электрозаводская улица, 20

Электрозаводская → 954 м
~ 10 мин
Арендная плата в месяц 1 265 833 ₽ 21 700 ₽/м² в год С учётом НДС
Характеристики 700 м² 1 - 2 этаж Готово к въезду
Преимущества
  • Класс B
  • Пешком от метро
  • Кондиционирование и вентиляция
  • Развитая инфраструктура

Сдаем в долгосрочную аренду помещение под офис класса B общей площадью 700 кв. метров в историческом бизнес-центре... подробнее

Презентация по предложению

Собираете информацию? Получите подробную презентацию в удобном формате!

БЕЗ КОМИССИИ ID: 1379826 Рейтинг8.0 КлассB

Москва, шоссе Энтузиастов, 31 с39

Шоссе Энтузиастов → 65 м
~ 1 мин
Арендная плата в месяц 1 212 270 ₽ 23 800 ₽/м² в год С учётом НДС
Характеристики 612 м² 2 - 4 этаж Готово к въезду
Преимущества
  • Класс B
  • Пешком от метро
  • Кондиционирование и вентиляция
  • Свой паркинг

Предлагаем в долгосрочную аренду офис класса B площадью 612 кв.м в Офисно-торговом центре... подробнее

Презентация по предложению

Собираете информацию? Получите подробную презентацию в удобном формате!

Посмотреть все похожие предложения
Отнеситесь рационально к процессу поиска нового офиса!

Просто ответьте на 3 вопроса, и наши специалисты сами предложат оптимальные варианты под ваш бюджет

.