8.2
Смотреть все фото
БЕЗ КОМИССИИ ID: 1311947 Рейтинг8.4 КлассB+

Москва, Холодильный переулок, 3

Тульская → 261 м
~ 3 мин
Стоимость 85.49 млн ₽ 515 000 ₽/м²

Презентация по предложению

Собираете информацию? Получите подробную презентацию в удобном формате!

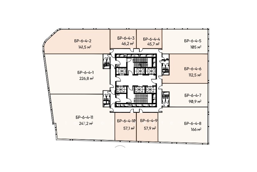
Площадь 166 м²
Состояние Под отделку
Планировка Открытая
Этаж 6

Описание

Преимущества
  • Класс B+
  • Пешком от метро
  • Кондиционирование и вентиляция
  • Свой паркинг
  • Развитая инфраструктура
В продаже офисный блок общей площадью 166 квадратных метров в бизнес-центре "Товарищество Рябовской мануфактуры".

Помещение можно адаптировать под любой бизнес благодаря функциональной планировке - идеальный баланс комфорта и экономической выгоды. Оптимальное решение для стабильного бизнеса или выгодных инвестиций.

Офис класса B+:
- Офис в состоянии shell & core
- Вентиляция: Приточно-вытяжная вентиляция
- Кондиционирование: сплит-системы

О офисном центре:
Москва, ЮАО, Холодильный переулок, 3

Удобное расположение здания для всех видов транспорта:
- Автомобиль: близость транспортных магистралей, таких как Севастопольский проспект, Варшавское шоссе, Третье Транспортное Кольцо и других.
- Возможность аренды парковочных мест.
- Ближайшее метро: буквально 3 мин пешком от метро "Тульская"



Что еще можно узнать о предложении:

1. Мы отправим Вам подробную презентацию с планировкой и фотографиями в течение 10 минут после звонка, чтобы Вы могли поделиться информацией с руководством или с коллегами.
2. Ответим на любые Ваши вопросы, готовы обсуждать любые предложения по коммерческим условиям продажи помещения.

Звоните нам в любое время. По будням мы сможем ответить на Ваши вопросы до 19:00. В выходные или вечернее время мы передадим Ваш контакт нашему менеджеру.

О бизнес-центре

Класс B+
Этажность 13
Лифты Нет
Общая площадь 24 000 м²
Год постройки 1990
Паркинг Наземный
Вентиляция приточно-вытяжная
Кондиционирование сплит-системы
Телекоммуникации Интернет/Телефония

Расположение

Подробная презентацию по предложению

Собираете информацию? Получите подробную презентацию в удобном формате, чтобы обсудить вариант с коллегами или переслать руководству!

Похожие предложения в других зданиях

БЕЗ КОМИССИИ ID: 1305796 Рейтинг9.4 КлассB

Москва, Большая Тульская улица, 19

Тульская → 196 м
~ 2 мин
Стоимость 5 600 000 000 ₽ 350 000 ₽/м²
Характеристики 16 000 м² -1 - 6 этаж Готово к въезду
Преимущества
  • Класс B
  • Пешком от метро
  • Кондиционирование и вентиляция

Продается офис площадью 16000 квадратных метров в бизнес-центре. .. подробнее

Презентация по предложению

Собираете информацию? Получите подробную презентацию в удобном формате!

БЕЗ КОМИССИИ ID: 1330004 Рейтинг5.7 КлассB

Москва, Павловская улица, 18 с2

Тульская → 449 м
~ 4 мин
Стоимость 1 085 000 010 ₽ 257 400 ₽/м²
Характеристики 4 215 м² -1 - 5 этаж Готово к въезду
Преимущества
  • Класс B
  • Пешком от метро
  • Кондиционирование и вентиляция
  • Свой паркинг

Продается офисный блок общей площадью 4215 кв.м в бизнес-центре. .. подробнее

Презентация по предложению

Собираете информацию? Получите подробную презентацию в удобном формате!

БЕЗ КОМИССИИ ID: 1326798 Рейтинг5.7 КлассB

Москва, Павловская улица, 18 с2

Тульская → 449 м
~ 4 мин
Стоимость 1 080 001 020 ₽ 256 200 ₽/м²
Характеристики 4 215 м² -1 - 6 этаж Готово к въезду
Преимущества
  • Класс B
  • Пешком от метро
  • Кондиционирование и вентиляция
  • Свой паркинг

Продается офисное помещение площадью 4215 кв. метров в бизнес-центре. .. подробнее

Презентация по предложению

Собираете информацию? Получите подробную презентацию в удобном формате!

БЕЗ КОМИССИИ ID: 1330005 Рейтинг5.7 КлассB

Москва, Павловская улица, 18 с2

Тульская → 449 м
~ 4 мин
Стоимость 245 000 140 ₽ 318 200 ₽/м²
Характеристики 770 м² 3 этаж Готово к въезду
Преимущества
  • Класс B
  • Пешком от метро
  • Кондиционирование и вентиляция
  • Свой паркинг

Продается офис площадью 770 квадратных метров в бизнес-центре. .. подробнее

Презентация по предложению

Собираете информацию? Получите подробную презентацию в удобном формате!

БЕЗ КОМИССИИ ID: 1327202 Рейтинг8.5 КлассB+

Москва, Варшавское шоссе, 1 с6

Тульская → 832 м
~ 8 мин
Стоимость 120 640 000 ₽ 520 000 ₽/м²
Характеристики 232 м² 3 этаж Готово к въезду
Преимущества
  • Класс B+
  • Пешком от метро
  • Кондиционирование и вентиляция
  • Свой паркинг
  • Развитая инфраструктура

В продаже офис общей площадью 232 квадратных метров в бизнес-центре "W Plaza 2". .. подробнее

Презентация по предложению

Собираете информацию? Получите подробную презентацию в удобном формате!

Посмотреть все похожие предложения
Отнеситесь рационально к процессу поиска нового офиса!

Просто ответьте на 3 вопроса, и наши специалисты сами предложат оптимальные варианты под ваш бюджет

.