8.2
Смотреть все фото
БЕЗ КОМИССИИ ID: 252884 Рейтинг5.4 КлассB
Бизнес-центр «Успенский 16 с1»

Аренда офиса 1668 м²

Москва, Успенский переулок, 16 с1

Чеховская → 555 м
~ 6 мин
Арендная плата в месяц 3 794 800 ₽ 27 300 ₽/м² в год С учётом НДС

Презентация по предложению

Собираете информацию? Получите подробную презентацию в удобном формате!

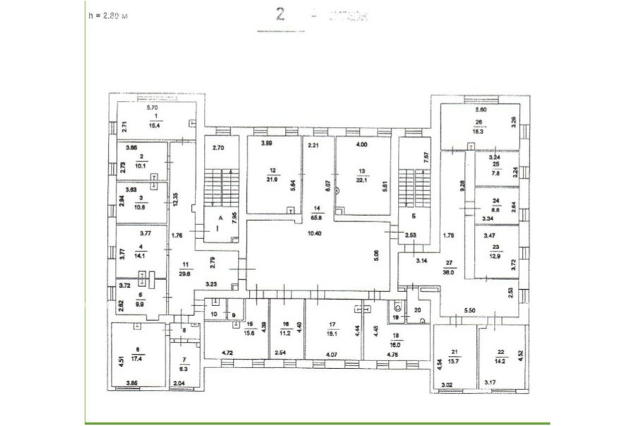
Площадь 1 668 м²
Состояние Под отделку
Планировка Кабинетная
Этаж -1 - 3

Описание

Преимущества
  • Класс B
  • Пешком от метро
  • Кондиционирование и вентиляция
  • Несколько провайдеров связи
Сдаем в долгосрочную аренду офис класса B площадью 1668 кв. метров в историческом бизнес-центре.

Москва, ЦАО, Успенский переулок, 16 с1

Удобное расположение в пределах Садового кольца:
- Ближайшее метро: от метро "Чеховская" всего 9 мин пешком

Офис класса B:
- Офис в состоянии shell & core
- Вентиляция: Приточно-вытяжная вентиляция
- Кондиционирование: центральное

Возможность заключения контракта в соответствии с 44ФЗ по госзакупкам.

Что еще можно узнать о предложении:

1. Мы подготовили презентацию с информацией о помещении, фотографиями и планировкой, чтобы Вы могли поделиться ей с коллегами или руководством. Попросите об этом нашего менеджера по телефону в объявлении.
2. Мы готовы ответить на любые Ваши вопросы о помещении и коммерческих условиях аренды.
3. Покажем помещение в удобное для Вас время с менеджером в здании, при необходимости подготовим виртуальный тур.

Звоните нам в любое время. По будням мы сможем ответить на Ваши вопросы до 19:00. В выходные или вечернее время мы передадим Ваш контакт нашему менеджеру по аренде.

Коммерческие условия

Арендная плата 3 614 140 ₽
Ставка арендной платы 27 300 ₽ м²/год
Эксплуатационные расходы Включены в ставку
Налоги С учётом НДС
Тип договора Прямая аренда
Срок договора от 11 месяцев
Размер платежей 1 месяц
Обеспечительный платеж 1 месяц
Статус Сдан

О бизнес-центре

Класс B
Этажность 3
Лифты Нет
Общая площадь 1 668 м²
Год постройки 1952
Паркинг Стихийный
Вентиляция приточно-вытяжная
Кондиционирование центральное
Телекоммуникации Интернет/Телефония

Расположение

Подробная презентацию по предложению

Собираете информацию? Получите подробную презентацию в удобном формате, чтобы обсудить вариант с коллегами или переслать руководству!

Похожие предложения в других зданиях

БЕЗ КОМИССИИ ID: 72569 Рейтинг6.9 КлассB+

Москва, Настасьинский переулок, 7

Пушкинская → 389 м
~ 4 мин
Арендная плата в месяц 4 670 833 ₽ 29 500 ₽/м² в год С учётом НДС
Характеристики 1 900 м² 1 - 4 этаж Под отделку
Преимущества
  • Класс B+
  • Пешком от метро
  • Кондиционирование и вентиляция

Предлагается в долгосрочную прямую аренду помещение под офис класса B+ общей площадью 1900 кв. метров в бизнес-центре... подробнее

Презентация по предложению

Собираете информацию? Получите подробную презентацию в удобном формате!

БЕЗ КОМИССИИ ID: 72566 Рейтинг6.9 КлассB+

Москва, Настасьинский переулок, 7

Пушкинская → 389 м
~ 4 мин
Арендная плата в месяц 3 687 500 ₽ 29 500 ₽/м² в год С учётом НДС
Характеристики 1 500 м² 1 - 3 этаж Под отделку
Преимущества
  • Класс B+
  • Пешком от метро
  • Кондиционирование и вентиляция

Сдается в долгосрочную прямую аренду офис класса B+ общей площадью 1500 кв.м в бизнес-центре... подробнее

Презентация по предложению

Собираете информацию? Получите подробную презентацию в удобном формате!

БЕЗ КОМИССИИ ID: 181730 Рейтинг9.1 КлассА

Москва, Тверская улица, 22А

Маяковская → 456 м
~ 5 мин
Арендная плата в месяц 3 322 917 ₽ 27 500 ₽/м² в год С учётом НДС
Характеристики 1 450 м² 3 этаж Готово к въезду
Преимущества
  • Класс А
  • Пешком от метро
  • Кондиционирование и вентиляция
  • Свой паркинг
  • Несколько провайдеров связи

Предлагаем в долгосрочную аренду офисный блок класса А общей площадью 1450 квадр. метров в бизнес-центре "Саммит"... подробнее

Презентация по предложению

Собираете информацию? Получите подробную презентацию в удобном формате!

БЕЗ КОМИССИИ ID: 53222 Рейтинг7.8 КлассB

Москва, Цветной бульвар, 25 с5

Цветной бульвар → 268 м
~ 3 мин
Арендная плата в месяц 3 200 000 ₽ 24 000 ₽/м² в год С учётом НДС
Характеристики 1 600 м² 1 - 4 этаж Готово к въезду
Преимущества
  • Класс B
  • Пешком от метро
  • Кондиционирование и вентиляция
  • Свой паркинг

Сдается в долгосрочную аренду помещение под офис класса B общей площадью 1600 квадратных метров в бизнес-центре... подробнее

Презентация по предложению

Собираете информацию? Получите подробную презентацию в удобном формате!

БЕЗ КОМИССИИ ID: 209159 Рейтинг8.0 КлассB

Москва, Цветной бульвар, 21 с2

Цветной бульвар → 89 м
~ 1 мин
Арендная плата в месяц 3 750 000 ₽ 30 000 ₽/м² в год С учётом НДС
Характеристики 1 500 м² 2 - 4 этаж Под отделку
Преимущества
  • Класс B
  • Пешком от метро
  • Кондиционирование и вентиляция

Предлагаем в долгосрочную аренду офисное помещение класса B общей площадью 1500 кв. метров в историческом недавно отреконструированном бизнес-центре... подробнее

Презентация по предложению

Собираете информацию? Получите подробную презентацию в удобном формате!

Посмотреть все похожие предложения
Отнеситесь рационально к процессу поиска нового офиса!

Просто ответьте на 3 вопроса, и наши специалисты сами предложат оптимальные варианты под ваш бюджет

.