8.2
Смотреть все фото
БЕЗ КОМИССИИ ID: 299193 Рейтинг8.9 КлассА
Бизнес-центр «Водный»

Аренда офиса 390 м²

Москва, Головинское шоссе, 5 к1

Водный стадион → 540 м
~ 5 мин
Арендная плата в месяц 1 267 500 ₽ 39 000 ₽/м² в год С учётом НДС

Презентация по предложению

Собираете информацию? Получите подробную презентацию в удобном формате!

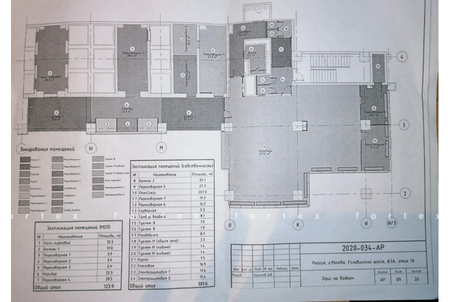
Площадь 390 м²
Состояние Готово к въезду
Планировка Открытая
Этаж 2

Описание

Преимущества
  • Класс А
  • Пешком от метро
  • Кондиционирование и вентиляция
  • Несколько провайдеров связи
Сдается в долгосрочную прямую аренду офисный блок класса А площадью 390 квадр. метров в бизнес-центре "Водный".

Москва, САО, Головинское шоссе, 5 к1

Удобное расположение здания для всех видов транспорта:
- Автомобиль: близость транспортных магистралей, таких как Ленинградское шоссе и других.
- Возможность аренды парковочных мест.
- Ближайшее метро: от метро "Водный стадион" всего 5 мин пешком

Офис класса А:
- Офис с отделкой, полностью готов к аренде
- Вентиляция: Приточно-вытяжная вентиляция
- Кондиционирование: центральное
- Презентабельный центральный ресепшн
- Круглосуточная охрана и видеонаблюдение


Что еще можно узнать о предложении:

1. Мы отправим Вам подробную презентацию с планировкой и фотографиями в течение 10 минут после звонка, чтобы Вы могли поделиться информацией с руководством или с коллегами.
2. Мы готовы ответить на любые Ваши вопросы о помещении и коммерческих условиях аренды.
3. Проводим показы ежедневно, договоримся на удобное для Вас время. Можем организовать виртуальный тур по офисному блоку.

Звоните нам в любое время. По будням мы сможем ответить на Ваши вопросы до 19:00. В выходные или вечернее время мы передадим Ваш контакт нашему менеджеру по аренде.

Коммерческие условия

Арендная плата 910 000 ₽
Ставка арендной платы 39 000 ₽ м²/год
Эксплуатационные расходы Включены в ставку
Налоги С учётом НДС
Тип договора Прямая аренда
Срок договора от 11 месяцев
Размер платежей 2 месяц
Обеспечительный платеж 1 месяц
Статус Сдан

О бизнес-центре

Класс А
Этажность 28
Лифты Есть
Общая площадь 52 335 м²
Год постройки 2013
Паркинг Наземный и подземный
Вентиляция приточно-вытяжная
Кондиционирование центральное
Телекоммуникации Интернет/Телефония

Расположение

Подробная презентацию по предложению

Собираете информацию? Получите подробную презентацию в удобном формате, чтобы обсудить вариант с коллегами или переслать руководству!

Похожие предложения в других зданиях

БЕЗ КОМИССИИ ID: 1322727 Рейтинг7.0 КлассB

Москва, Смольная улица, 2

Водный стадион → 1.08 км
~ 11 мин
Арендная плата в месяц 1 100 407 ₽ 38 700 ₽/м² в год С учётом НДС
Характеристики 341 м² 3 этаж Готово к въезду
Преимущества
  • Класс B
  • Пешком от метро
  • Кондиционирование и вентиляция
  • Развитая инфраструктура

Предлагается в долгосрочную прямую аренду офис класса B общей площадью 341 кв. метров в бизнес-центре... подробнее

>

Виртуальный тур

Презентация по предложению

Собираете информацию? Получите подробную презентацию в удобном формате!

БЕЗ КОМИССИИ ID: 1325112 Рейтинг9.0 КлассB

Москва, Щукинская улица, 42

Щукинская → 160 м
~ 2 мин
Арендная плата в месяц 1 249 990 ₽ 35 700 ₽/м² в год С учётом НДС
Характеристики 420 м² 3 этаж Готово к въезду
Преимущества
  • Класс B
  • Пешком от метро
  • Кондиционирование и вентиляция
  • Свой паркинг
  • Развитая инфраструктура

Предлагается в долгосрочную прямую аренду офис класса B общей площадью 420 кв. метров в Офисно-торговом центре "Щука"... подробнее

Презентация по предложению

Собираете информацию? Получите подробную презентацию в удобном формате!

Посмотреть все похожие предложения
Отнеситесь рационально к процессу поиска нового офиса!

Просто ответьте на 3 вопроса, и наши специалисты сами предложат оптимальные варианты под ваш бюджет

.