8.2
Смотреть все фото
БЕЗ КОМИССИИ ID: 1251958 Рейтинг7.1 КлассB

Москва, Воронцовский парк, 5

Новаторская → 886 м
~ 9 мин
Арендная плата в месяц 935 000 ₽ 36 900 ₽/м² в год С учётом НДС

Презентация по предложению

Собираете информацию? Получите подробную презентацию в удобном формате!

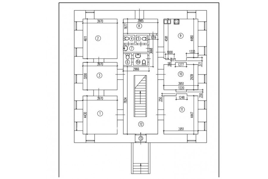
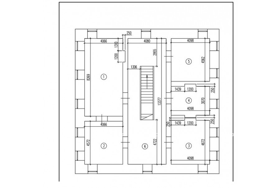
Площадь 304 м²
Состояние Готово к въезду
Планировка Кабинетная
Этаж 1 - 2

Описание

Преимущества
  • Класс B
  • Пешком от метро
  • Кондиционирование и вентиляция
Собственник сдает в долгосрочную прямую аренду здание под офис класса B общей площадью 304 кв.м.

Москва, ЮЗАО, Воронцовский парк, 5

Удобная локация здания:
- Автомобиль: близость транспортных магистралей, таких как Проспект Вернадского, Профсоюзная улица, Ленинский проспект и других.
- Ближайшее метро: от метро "Новаторская" всего 9 мин пешком

Офис класса B:
- Помещение с отделкой, готово к въезду
- Кондиционирование: сплит-системы


Что еще можно узнать о предложении:

1. Мы подготовили презентацию с информацией о помещении, фотографиями и планировкой, чтобы Вы могли поделиться ей с коллегами или руководством. Попросите об этом нашего менеджера по телефону в объявлении.
2. Мы готовы ответить на любые Ваши вопросы о помещении и коммерческих условиях аренды.
3. Оперативно организуем просмотр помещения, договоримся на любое удобное время, подготовим виртуальный тур.

Вы можете позвонить нам в любое время. Мы ответим на Ваши вопросы по будням до 19:00, а поздно вечером или в выходные зафиксируем Ваш контакт и перезвоним в рабочее время.

Коммерческие условия

Арендная плата 850 010 ₽
Ставка арендной платы 36 900 ₽ м²/год
Эксплуатационные расходы Включены в ставку
Налоги С учётом НДС
Тип договора Прямая аренда
Срок договора Долгосрочный
Размер платежей 1 месяц
Обеспечительный платеж 1 месяц
Статус Сдан

О бизнес-центре

Класс B
Этажность 2
Лифты Нет
Общая площадь 304 м²
Год постройки 1780
Паркинг Наземный
Вентиляция естественная
Кондиционирование сплит-системы
Телекоммуникации Интернет/Телефония

Расположение

Подробная презентацию по предложению

Собираете информацию? Получите подробную презентацию в удобном формате, чтобы обсудить вариант с коллегами или переслать руководству!

Похожие предложения в других зданиях

ВОЗМОЖНО ОСВОБОЖДЕНИЕ ID: 1079486 Рейтинг8.6 КлассА

Москва, улица Академика Пилюгина, 22

Новаторская → 1.09 км
~ 11 мин
Арендная плата в месяц 1 130 875 ₽ 41 500 ₽/м² в год С учётом НДС
Характеристики 327 м² 3 этаж Готово к въезду
Преимущества
  • Класс А
  • Пешком от метро
  • Кондиционирование и вентиляция
  • Свой паркинг

Предлагается в долгосрочную аренду офис класса А площадью 327 кв. метров в новом бизнес-центре "Алгоритм"... подробнее

>

Виртуальный тур

Презентация по предложению

Собираете информацию? Получите подробную презентацию в удобном формате!

БЕЗ КОМИССИИ ID: 1264766 Рейтинг9.0 КлассА

Москва, улица Удальцова, 1А

Новаторская → 313 м
~ 3 мин
Арендная плата в месяц 860 750 ₽ 33 000 ₽/м² в год С учётом НДС
Характеристики 313 м² 2 этаж Готово к въезду
Преимущества
  • Класс А
  • Пешком от метро
  • Кондиционирование и вентиляция
  • Свой паркинг
  • Развитая инфраструктура

Сдается в долгосрочную аренду помещение под офис класса А площадью 313 кв.м в бизнес-центре "Удальцова Плаза"... подробнее

>

Виртуальный тур

Презентация по предложению

Собираете информацию? Получите подробную презентацию в удобном формате!

БЕЗ КОМИССИИ ID: 1264770 Рейтинг9.0 КлассА

Москва, улица Удальцова, 1А

Новаторская → 313 м
~ 3 мин
Арендная плата в месяц 770 000 ₽ 33 000 ₽/м² в год С учётом НДС
Характеристики 280 м² 8 этаж Готово к въезду
Преимущества
  • Класс А
  • Пешком от метро
  • Кондиционирование и вентиляция
  • Свой паркинг
  • Развитая инфраструктура

Предлагаем в долгосрочную прямую аренду офис класса А общей площадью 280 квадр. метров в бизнес-центре "Удальцова Плаза"... подробнее

>

Виртуальный тур

Презентация по предложению

Собираете информацию? Получите подробную презентацию в удобном формате!

БЕЗ КОМИССИИ ID: 1327096 Рейтинг9.1 КлассB+

Москва, Профсоюзная улица, 65 к1

Калужская → 309 м
~ 3 мин
Арендная плата в месяц 1 234 742 ₽ 42 700 ₽/м² в год С учётом НДС
Характеристики 347 м² 4 этаж Готово к въезду
Преимущества
  • Класс B+
  • Пешком от метро
  • Кондиционирование и вентиляция
  • Свой паркинг
  • Несколько провайдеров связи
  • Развитая инфраструктура

Сдается в прямую аренду офис класса B+ площадью 347 квадратных метров в бизнес-центре "Лотте"... подробнее

Презентация по предложению

Собираете информацию? Получите подробную презентацию в удобном формате!

БЕЗ КОМИССИИ ID: 1377803 Рейтинг9.1 КлассB+

Москва, Профсоюзная улица, 65 к1

Калужская → 309 м
~ 3 мин
Арендная плата в месяц 1 218 780 ₽ 43 900 ₽/м² в год С учётом НДС
Характеристики 333 м² 2 этаж Готово к въезду
Преимущества
  • Класс B+
  • Пешком от метро
  • Кондиционирование и вентиляция
  • Свой паркинг
  • Несколько провайдеров связи
  • Развитая инфраструктура

Предлагается в долгосрочную прямую аренду офисное помещение класса B+ общей площадью 333 кв.м в бизнес-центре "Лотте"... подробнее

Презентация по предложению

Собираете информацию? Получите подробную презентацию в удобном формате!

Посмотреть все похожие предложения
Отнеситесь рационально к процессу поиска нового офиса!

Просто ответьте на 3 вопроса, и наши специалисты сами предложат оптимальные варианты под ваш бюджет

.